Large garden, flexible layout and village location with clear refurbishment potential.
Very large 1/3-acre mature garden with stream at boundary
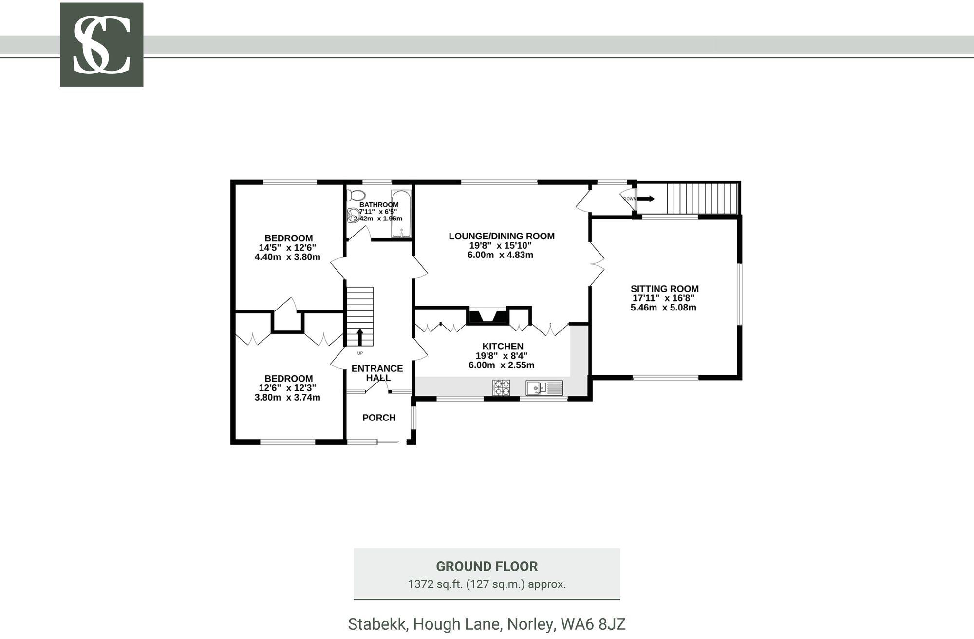
Stabekk is a spacious four-bedroom detached house set on a very large, lush 1/3-acre plot in the heart of Norley. The property offers generous living space (approximately 2,498 sq ft in total) arranged over a traditional layout that floods with natural light and retains mid-20th-century character, including chalet-style ceilings and a 1970s fireplace. Wide hallways, a large porch and multiple reception rooms create flexible family-focused circulation and everyday practicality.
The mature garden is a standout feature — tiered lawns, established shrub borders, specimen trees, a hidden greenhouse and a tributary stream at the far boundary provide a private, child-friendly outdoor environment. Practical features include driveway parking and a two-car garage, a utility room with plumbing for appliances and useful built-in storage throughout. Fast broadband and low local crime support modern family needs, while the primary school, village shop, pub, playground and green spaces are all within an easy stroll.
Stabekk suits families seeking village life with scope to add personal value. The home retains a retro charm and offers clear development and refurbishment potential; some areas will benefit from updating to suit contemporary tastes. Buyers should note council tax is relatively high and the listing indicates equipment and services have not been tested. Overall, this is a characterful, well‑proportioned home on a rare, substantial plot — ideal to refresh, extend or simply enjoy as-is for immediate village living.
5 bedroom detached house for sale in Ashton Road, Norley, WA6 — £1,050,000 • 5 bed • 4 bath • 2805 ft²
5 bedroom detached house for sale in Northwich Road, Cranage, Knutsford, WA16 — £1,300,000 • 5 bed • 3 bath • 2652 ft²
4 bedroom detached house for sale in Exceptional modern masterpiece in Norley with breathtaking views, WA6 — £1,250,000 • 4 bed • 3 bath • 3348 ft²
5 bedroom detached house for sale in One of a kind Norley family home with large plot, WA6 — £1,250,000 • 5 bed • 3 bath • 2439 ft²
4 bedroom detached house for sale in Period property nestled within secluded mature grounds of almost half an acre, CW9 — £700,000 • 4 bed • 3 bath • 2277 ft²
7 bedroom detached house for sale in Norley, Frodsham, WA6 — £2,000,000 • 7 bed • 7 bath • 5500 ft²


























































































































































