Chain-free three-bedroom semi with driveway, garage and private garden..
Three large first-floor bedrooms, well proportioned
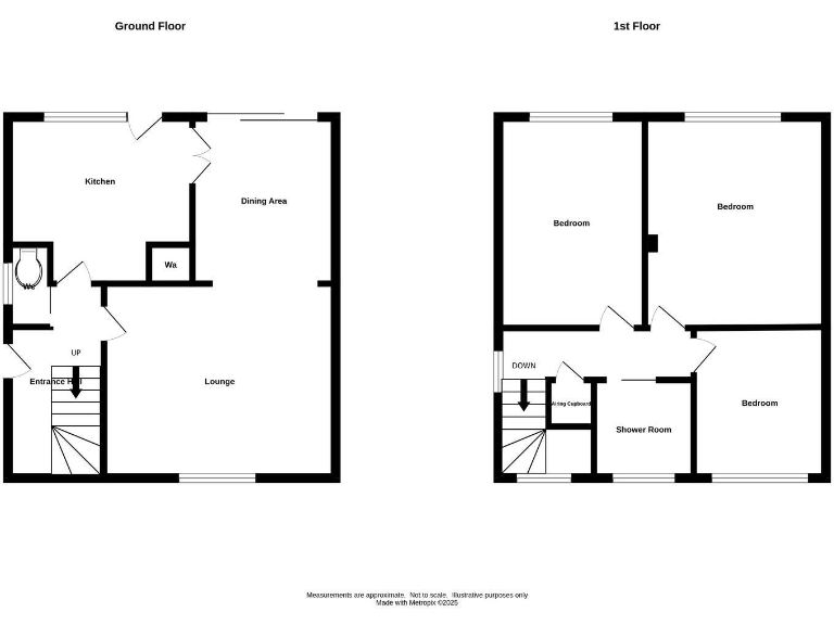
Set on a quiet close within easy reach of Russells Hall Hospital and several well-rated schools, this three-bedroom semi-detached house offers a practical family layout and immediate move-in potential. The home has two reception rooms plus a fitted kitchen, making daily living and entertaining straightforward. Outside there's a lengthy tarmac driveway, single garage and a well-kept rear garden with patio and lawn.
The property is chain-free and freehold, which helps speed a purchase. The bedrooms are generous for the size and the sitting and dining rooms are well proportioned, so families or first-time buyers can settle in quickly. Broadband and mobile coverage are strong and the council tax band is low, keeping running costs modest in some areas.
Buyers should note this is an older, traditionally built house (c.1967–75) with electric storage heating rather than gas central heating; heating costs can be higher and the EPC is rated D. The area sits within a more deprived local classification, which may be important for some purchasers. The property appears well maintained externally but offers clear potential for cosmetic updating and energy improvements.
Overall this is a practical, ready-to-live-in home in a popular residential neighbourhood that will appeal to families and first-time buyers wanting space, parking and a private garden, with scope to improve energy performance and modernise internally over time.
3 bedroom semi-detached house for sale in Chelmar Drive, Pensnett, Brierley Hill, DY5 4QH, DY5 — £145,000 • 3 bed • 1 bath • 693 ft²
3 bedroom semi-detached house for sale in Ashenhurst Road, Russells Hall, Dudley, DY1 2HX, DY1 — £215,000 • 3 bed • 1 bath • 861 ft²
3 bedroom semi-detached house for sale in Church Street, PENSNETT, Brierley Hill., DY5 — £170,000 • 3 bed • 1 bath • 629 ft²
3 bedroom semi-detached house for sale in Queen Street, Pensnett, Brierley Hill, DY5 4HA, DY5 — £200,000 • 3 bed • 1 bath • 793 ft²
3 bedroom semi-detached house for sale in Kestrel Road, RUSSELLS HALL, Dudley., DY1 — £210,000 • 3 bed • 1 bath • 958 ft²
3 bedroom semi-detached house for sale in Tiled House Lane, Brierley Hill, DY5 4LT, DY5 — £245,000 • 3 bed • 1 bath • 1012 ft²














































































