Chain-free three-bed semi with parking and private garden near stations.
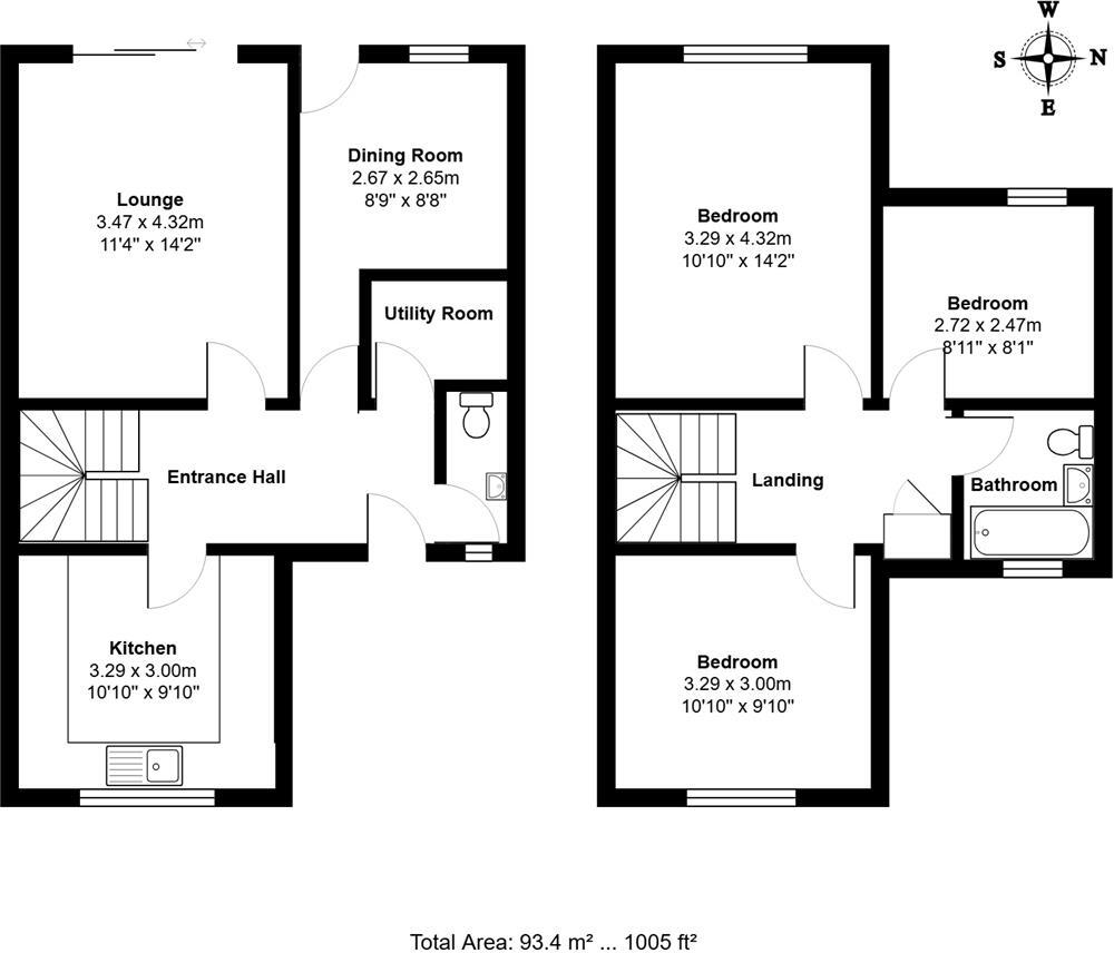
- Three bedrooms with two bathrooms, suitable for family life
- Two reception rooms plus separate utility for practical living
- Off-street parking for two vehicles; fenced rear garden with patio
- Views over open fields to the rear; decent plot size
- Chain free and freehold, approx 1,005 sq ft (traditional layout)
- Sealed double glazing, mains gas boiler, Hive smart heating
- Built c.1976–82; opportunities to modernise kitchen/bathroom
- Slow broadband and average mobile signal may affect home working
Set quietly on Foxglove Avenue with open field views, this three-bedroom semi-detached house suits families seeking space and practical living. The ground floor offers two reception rooms and a utility room, while the rear garden and patio provide a private outside area for children or weekend barbecues. The property is offered chain free, making a quick move possible.
Built in the late 1970s and extending to about 1,005 sq ft, the home has sealed unit double glazing, mains gas central heating with a Smart Hive controller, and a gas boiler in a kitchen cupboard. There are two bathrooms and off-street parking for two vehicles — useful for commuters and families with more than one car. Local schools rated Good are within easy reach and Needham Market station provides rail links to Ipswich and London.
Practical drawbacks to note: broadband speeds are reported as slow and mobile signal is average, which may affect home working. The house is an average-sized layout from the late 1970s and presents straightforward opportunities to modernise fixtures or update decor to personal taste. Overall, this is a sensible, low-risk family home in a very affluent, low-crime area with countryside aspects and convenient transport links.
3 bedroom semi-detached house for sale in Highlands Close, Needham Market, Ipswich, IP6 — £250,000 • 3 bed • 1 bath • 1000 ft²
3 bedroom semi-detached house for sale in Morris Way, IP6 — £250,000 • 3 bed • 1 bath • 910 ft²
3 bedroom semi-detached house for sale in Jackson Way, IP6 — £285,000 • 3 bed • 1 bath • 797 ft²
2 bedroom semi-detached house for sale in Anderson Close, Needham Market, Ipswich, IP6 — £250,000 • 2 bed • 1 bath • 679 ft²
3 bedroom semi-detached house for sale in Steggall Close, Needham Market, IP6 — £250,000 • 3 bed • 1 bath • 901 ft²
3 bedroom semi-detached house for sale in Stowmarket Road, Needham Market, Ipswich, Suffolk, IP6 — £375,000 • 3 bed • 2 bath • 936 ft²


























































































