Compact, refurbished flat with private garden and excellent SW18 location.
No onward chain — immediate sale possible
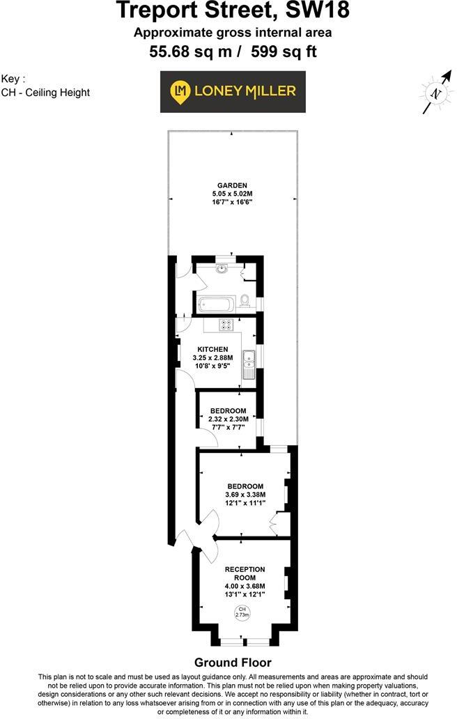
Set on a well-regarded residential street in SW18, this chain-free two-bedroom garden flat offers a straightforward entry into London ownership. The living room benefits from high ceilings and large windows, and the fitted kitchen/breakfast room opens onto a private rear garden — useful extra outdoor space for summer entertaining. Both kitchen and sitting room show recent contemporary renovation, ready to move into.
At around 599 sq ft the apartment is compact and best suited to a first-time buyer or couple who value location over large rooms. The building dates from the early 20th century and has solid brick walls with internal insulation; double glazing was fitted before 2002. Heating is by mains-gas boiler and radiators, and flooding risk is low.
Practical points to note: the property is leasehold with 104 years remaining and a moderate council tax band. Photos have been virtually staged to illustrate the layout. The area is well served by shops, eateries and transport links to Wandsworth, Earlsfield and Southfields, and several ‘Good’ local primary and secondary schools are nearby.
This flat delivers a low-hassle purchase thanks to no onward chain and recent cosmetic work, but its smaller footprint and leasehold tenure are important considerations for buyers prioritising space or long-term ownership costs.
2 bedroom flat for sale in Aslett Street, London, SW18 — £550,000 • 2 bed • 1 bath • 764 ft²
2 bedroom flat for sale in Longfield Street, London, SW18 — £535,000 • 2 bed • 1 bath • 550 ft²
3 bedroom flat for sale in Borrodaile Road, Wandsworth, SW18 — £475,000 • 3 bed • 2 bath • 873 ft²
2 bedroom flat for sale in Replingham Road, Southfields, London, SW18 — £500,000 • 2 bed • 1 bath • 684 ft²
2 bedroom flat for sale in Westdean Close, London, SW18 — £325,000 • 2 bed • 1 bath • 517 ft²
2 bedroom flat for sale in Steerforth Street, Earlsfield, London, SW18 — £585,000 • 2 bed • 1 bath • 536 ft²


























