Quiet tree-lined setting with extension opportunity near seafront.
Two double bedrooms with sizeable 24' lounge/diner
45' secluded rear garden with patio, lawn and shed
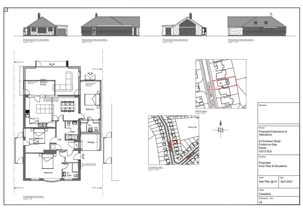
Approved planning permission for side and rear extensions
Garage, car port and off-street parking for multiple vehicles
Requires modernisation throughout; cosmetic and system updates likely
EPC rating E — consider energy improvement costs
Slow broadband speeds in area may affect remote working
Short walk to seafront, Greensward, shops and mainline station
Set on a quiet, tree-lined road inside Frinton’s desirable 'Gates', this two double-bedroom freehold home offers immediate comfort with clear scope for improvement. The bungalow has a generous 24' lounge/diner, a bright kitchen with a vaulted Velux, a conservatory and a secluded 45' rear garden — ideal for private outdoor enjoyment. Off-street parking, a car port and a garage add practical convenience for cars and storage.
Approved planning permission (21/00952/FUL) exists for side and rear extensions, making this property a strong candidate for those seeking to increase living space and future value. The layout and plot size suit buyers wanting single-storey living with potential to modernise and personalise throughout. The location is particularly convenient: a short walk to Connaught Avenue shops, the Greensward, the seafront and the mainline station.
The property does require renovation and updating; cosmetic and potentially kitchen and bathroom improvements are needed to bring it to modern standards. EPC rating E reflects current energy efficiency and should be considered when budgeting. Broadband speeds are slow locally, which may affect home working unless upgraded.
Overall this home will appeal to buyers seeking a peaceful seaside setting with extension potential, downsizers wanting single-level living, or investors prepared to refurbish. Early viewing is recommended to appreciate the plot, layout and the scope offered by the approved planning permission.
2 bedroom detached house for sale in Graces Walk, Frinton, CO13 — £400,000 • 2 bed • 1 bath • 743 ft²
3 bedroom detached bungalow for sale in Easton Way, Frinton-On-Sea, CO13 — £430,000 • 3 bed • 1 bath • 792 ft²
2 bedroom detached bungalow for sale in Easton Way, Frinton-On-Sea, CO13 — £450,000 • 2 bed • 2 bath • 922 ft²
2 bedroom detached bungalow for sale in The Close, Frinton-On-Sea, CO13 — £415,000 • 2 bed • 1 bath • 759 ft²
3 bedroom detached bungalow for sale in Warley Way, Frinton-0n-Sea, CO13 — £550,000 • 3 bed • 2 bath • 1637 ft²
2 bedroom detached bungalow for sale in Ferndown Road, Frinton-on-sea, CO13 — £340,000 • 2 bed • 1 bath






































































