SL4 4PW - 2 bedroom terraced house for sale in Stirling Close, Windso…

View on Property Piper

2 bedroom terraced house for sale in Stirling Close, Windsor, SL4

Summary - 11, STIRLING CLOSE, WINDSOR SL4 4PW

2 bed 1 bath Terraced

**Standout Features:**
- **Two double bedrooms** with spacious living areas
- Located in the **desirable Stirling Close** area, near Windsor town center
- **Freehold** tenure with **no onward chain**
- Includes a **garage for off-street parking**
- **Potential for extension** and modern renovation

**Key Details:**
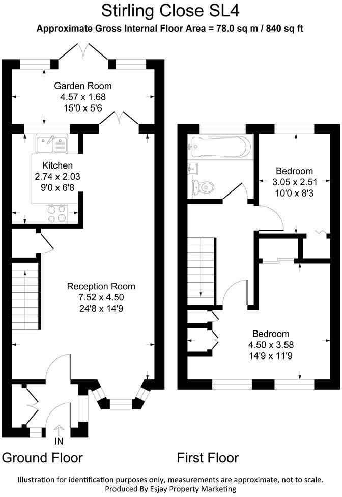
- Area: 840 sq ft (approx. 78.0 sq m)
- Renovation Status: **Requires updating**
- Garden space included
- **Affluent neighborhood** with good schools nearby
- Fast broadband and excellent mobile signal

This charming two-bedroom mid-terrace house in the sought-after Stirling Close area offers a fantastic opportunity for families or first-time buyers to create their dream home. Just a stone’s throw from Windsor town center and local amenities, you'll enjoy the blend of convenience and community feel. The spacious living room and a compact yet functional kitchen provide an inviting backdrop, while the rear garden ensures ample outdoor space for relaxation or play.

While the property does require modernization, its solid structure and potential for extension make it a blank canvas for your personal touch. With vacant possession and no onward chain, you can make this house your home without delay. The inclusion of a garage adds further appeal, offering valuable off-street parking and additional storage. Don't miss out on the chance to invest in an area known for its excellent schools and amenities—this property is sure to attract attention!

Property Details

Brochure Descriptions

Image Descriptions

Floorplan Description

Rooms

Textual Property Features

Detected Visual Features

EPC Details

Nearby Schools

Nearest Bars And Restaurants

,,,,}

Nearest General Shops

,,}

Nearest Grocery shops

,,}

Nearest Supermarkets

,,}

Nearest Religious buildings

,,}

Nearest Medical buildings

,,,}

Nearest Airports

,}

Nearest Leisure Facilities

,,,,}

Nearest Tourist attractions

,,}

Nearest Train stations

,,,,}

Nearest Bus stations and stops

,,,,}

Nearest Hotels

,,}

Tags

Local Market Stats

AirBnB Data

Similar Properties

Meta

High Res Images

Compatible Images

Low res Images

Thumbnails

Raw Images

High Res Floorplan Images

Compatible Floorplan Images

Low res Floorplan Images

FloorplanImages Thumbnail

Raw Floorplan Images