Chain-free renovation project with garden and strong commuter links to central London.
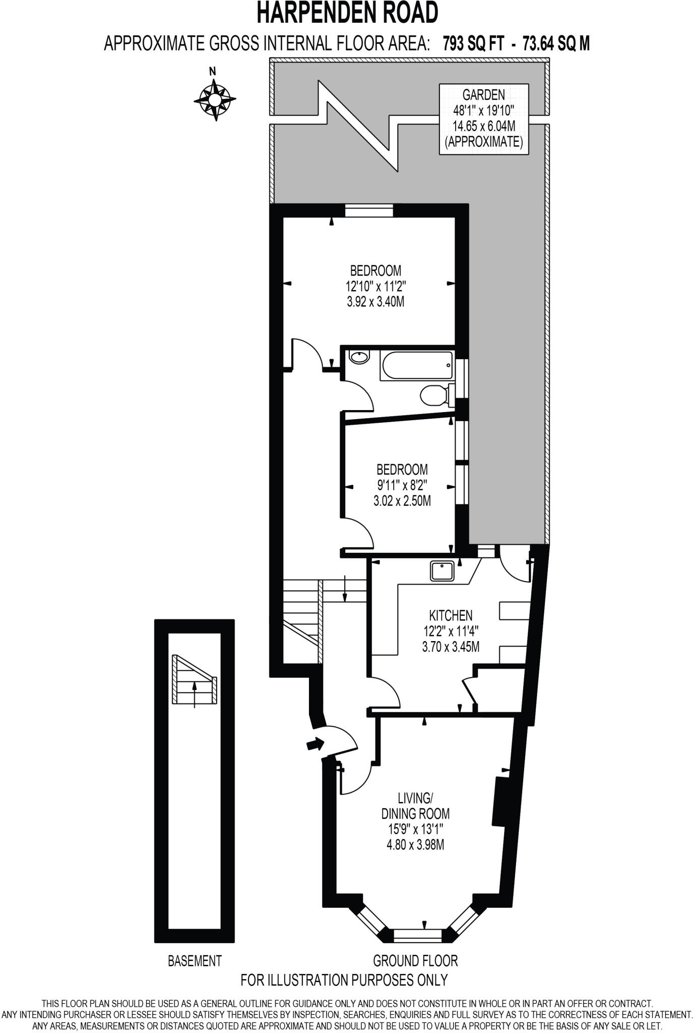
- Chain‑free two-bedroom Victorian garden flat
- Private rear garden for outdoor use
- Approximately 793 sq ft — average sized
- Requires full modernisation throughout
- Solid brick walls; likely no insulation
- EPC rating D; upgrade advised
- Leasehold tenure — check lease length and costs
- Local area records higher crime levels
A two‑bed Victorian garden flat on a popular West Norwood road, offered chain-free and ready for renovation. The flat sits in an attractive end‑terrace building and retains period features such as high ceilings and bay windows; a private garden provides outdoor space for entertaining or relaxation.
Practical details suit commuters: West Norwood station offers direct services to Victoria and London Bridge, and the area has fast broadband and excellent mobile signal. Nearby amenities include independent cafés, shops, a cinema/library complex and easy access to green spaces such as Brockwell Park. Several well-rated local primary and secondary schools add family appeal.
The property requires full modernisation throughout — expect updating to kitchen, bathroom and finishes. It has solid brick walls with no assumed cavity insulation, mains gas central heating, double glazing fitted post‑2002 and an EPC rating of D. Tenure is leasehold; prospective buyers should confirm lease length and related costs.
This apartment will suit buyers looking for a renovation project with period character and good transport links, or investors seeking to add value in a popular South London neighbourhood. Be aware of high neighbourhood crime levels and factor refurbishment costs into offers.
2 bedroom apartment for sale in Elmcourt Road, Tulse Hill, SE27 — £375,000 • 2 bed • 1 bath • 516 ft²
2 bedroom apartment for sale in Ulverstone Road, West Norwood, SE27 — £475,000 • 2 bed • 1 bath • 782 ft²
2 bedroom apartment for sale in Wolfington Road, West Norwood, London, SE27 — £600,000 • 2 bed • 1 bath • 932 ft²
2 bedroom apartment for sale in Wolfington Road, West Norwood, London, SE27 — £450,000 • 2 bed • 1 bath • 845 ft²
2 bedroom flat for sale in Ulverstone Road, West Norwood, London, SE27 — £525,000 • 2 bed • 1 bath • 682 ft²
2 bedroom flat for sale in Thornlaw Road, West Norwood, London, SE27 — £485,000 • 2 bed • 1 bath • 680 ft²






































