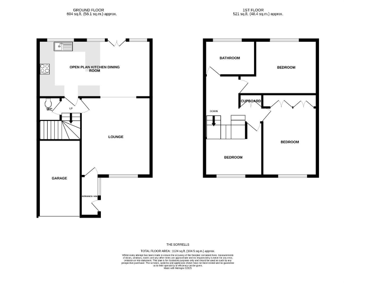
Modern three-bedroom semi-detached layout with open-plan kitchen/diner
A modern three-bedroom semi-detached home arranged over two floors, well suited to growing families or professionals seeking ready-to-move-in accommodation. The ground floor offers a long open-plan kitchen/dining area with integrated appliances and a comfortable lounge, while a downstairs WC adds everyday convenience.
Outside, the property benefits from off-street parking, an attached single garage and a low-maintenance rear garden laid to artificial grass — easy to manage and ideal for child- or pet-friendly outdoor time. The garage offers clear potential to be converted into a home office, extra reception room or fourth bedroom, subject to planning permission.
Practical details include mains gas central heating, double glazing and freehold tenure. Local amenities, a park and Corringham High Street are within easy reach, and Arthur Bugler Primary School is approximately 0.6 miles away, making the location appealing for families. Broadband speeds and mobile signal are strong and the area records very low crime.
Notable limitations are the small plot size and the compact family bathroom; measurements show the bathroom is relatively modest. The garage conversion requires planning approval and any buyer should confirm the age and condition of glazing and services, as installation dates are unknown. Council tax sits at a moderate level.
3 bedroom detached house for sale in The Sorrells, Stanford-le-Hope, SS17 — £450,000 • 3 bed • 1 bath • 1140 ft²
3 bedroom semi-detached house for sale in Rodings Avenue, Stanford-Le-Hope, Essex, SS17 — £395,000 • 3 bed • 1 bath • 897 ft²
3 bedroom semi-detached house for sale in Southend Road, Stanford-Le-Hope, Essex, SS17 — £375,000 • 3 bed • 1 bath • 834 ft²
3 bedroom semi-detached house for sale in Corringham Road, Corringham, SS17 — £310,000 • 3 bed • 1 bath • 605 ft²
3 bedroom semi-detached house for sale in Capel Close, Stanford-Le-Hope, SS17 — £400,000 • 3 bed • 1 bath • 1001 ft²
3 bedroom terraced house for sale in Blythe Road, Stanford-Le-Hope, Essex, SS17 — £350,000 • 3 bed • 1 bath • 871 ft²






































































































