TW18 1ET - 3 bedroom semidetached house for sale in Nursery Gardens, S…

View on Property Piper

3 bedroom semi-detached house for sale in Nursery Gardens, Staines-upon-Thames, TW18

Summary - 56 NURSERY GARDENS STAINES-UPON-THAMES TW18 1ET

3 bed 1 bath Semi-Detached

**Standout Features:**
- Extended three-bedroom semi-detached house
- Well-presented throughout with modern living spaces
- Spacious lounge, modern kitchen/diner, and family room
- Large, secluded rear garden ideal for families
- Off-street parking plus garage for added convenience
- Low crime area with excellent mobile and fast broadband signals
- Close proximity to local shops, schools, and Staines town centre

**Potential Downsides:**
- Exterior could use maintenance and updates
- Plot size is small, so limited outdoor expansion possibilities without encroaching on the garden

Discover this charming three-bedroom semi-detached home nestled in a desirable road in Staines-upon-Thames. Offering a harmonious blend of modern comfort and practical living, the property features a spacious lounge, contemporary kitchen/diner, and a family room that together create an inviting atmosphere. The three well-sized bedrooms are complemented by a sleek bathroom, making this home perfect for families.

Step outside to a large, secluded rear garden, a rare find that promises enjoyable outdoor moments. With off-street parking and a garage, convenience is at your doorstep. Families will appreciate the proximity to quality schools, parks, and essential amenities, all while enjoying the tranquility of a low-crime neighborhood.

This property presents an excellent opportunity for those seeking a family-friendly home with future renovation potential. The current average condition allows for personal touches over time, making this property not just a house, but a canvas for your dream living space. Act quickly—homes in this coveted area don't last long!

Property Details

Brochure Descriptions

Image Descriptions

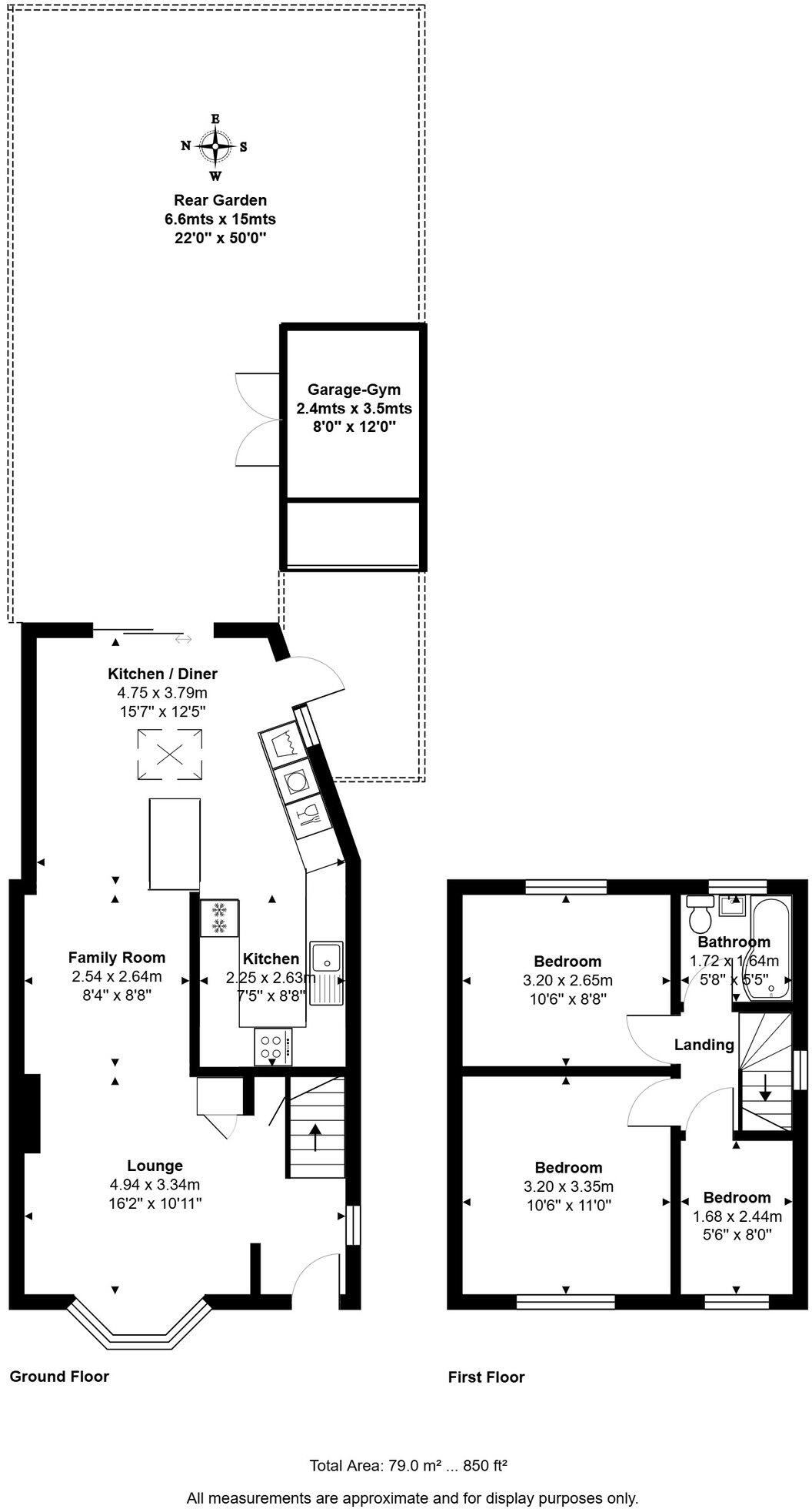
Floorplan Description

Rooms

Textual Property Features

Detected Visual Features

Nearby Schools

Nearest Bars And Restaurants

,,,,}

Nearest General Shops

,,}

Nearest Grocery shops

,,}

Nearest Supermarkets

,,}

Nearest Religious buildings

,,}

Nearest Medical buildings

,,,}

Nearest Airports

,}

Nearest Leisure Facilities

,,,,}

Nearest Tourist attractions

,,}

Nearest Train stations

,,,,}

Nearest Bus stations and stops

,,,,}

Nearest Hotels

,,}

Tags

Local Market Stats

AirBnB Data

Similar Properties

Meta

High Res Images

Compatible Images

Low res Images

Thumbnails

Raw Images

High Res Floorplan Images

Compatible Floorplan Images

Low res Floorplan Images

FloorplanImages Thumbnail

Raw Floorplan Images