Three-storey Victorian terrace with loft conversion and refurbishment potential, close to schools and city centre.
Victorian mid-terrace with bay window and period features
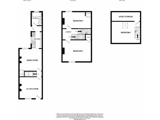
A red-brick Victorian mid-terrace with original character and practical later additions, this three-storey home offers scope for modernisation and immediate occupation. The loft conversion provides flexible third-bedroom space, while two reception rooms retain period features such as a bay window, fireplace and cornicing—appealing to buyers who value character and space in a compact footprint.
Set within easy walking distance of Hamilton Primary School and Colchester city centre, the location is strong for families and commuters. The property is freehold and chain-free, so completion can be straightforward. On-street permit parking is available nearby and mobile and broadband connectivity are both excellent.
Practical considerations: the house requires updating throughout and the cavity walls are assumed to have no insulation, so energy efficiency could be improved. There is a single bathroom and a small rear garden with side access—good for light outside use but limited for larger landscaping projects. The area has a higher-than-average local crime level, which buyers should weigh against the convenience of nearby schools, shops and transport links.
This home suits buyers seeking a period property to personalise—families wanting proximity to schools and the city, or investors aiming to add value through refurbishment and energy upgrades. With solid bones and classic architectural appeal, the house offers clear renovation potential and immediate availability.
3 bedroom terraced house for sale in Canterbury Road, Colchester, Essex. , CO2 — £295,000 • 3 bed • 2 bath • 841 ft²
3 bedroom semi-detached house for sale in Errington Road, Colchester, Essex, CO3 — £425,000 • 3 bed • 1 bath • 1400 ft²
3 bedroom semi-detached house for sale in Maldon Road, Colchester, Essex, CO3 — £415,000 • 3 bed • 1 bath • 948 ft²
3 bedroom semi-detached house for sale in Gray Road, Colchester, CO3 — £500,000 • 3 bed • 2 bath • 1174 ft²
3 bedroom end of terrace house for sale in Pownall Crescent, Colchester, CO2 — £290,000 • 3 bed • 1 bath
3 bedroom terraced house for sale in Bourne Road, Colchester, CO2 — £240,000 • 3 bed • 1 bath • 765 ft²






































































