Modern energy‑efficient family home with huge plot and field views in coastal Snettisham..
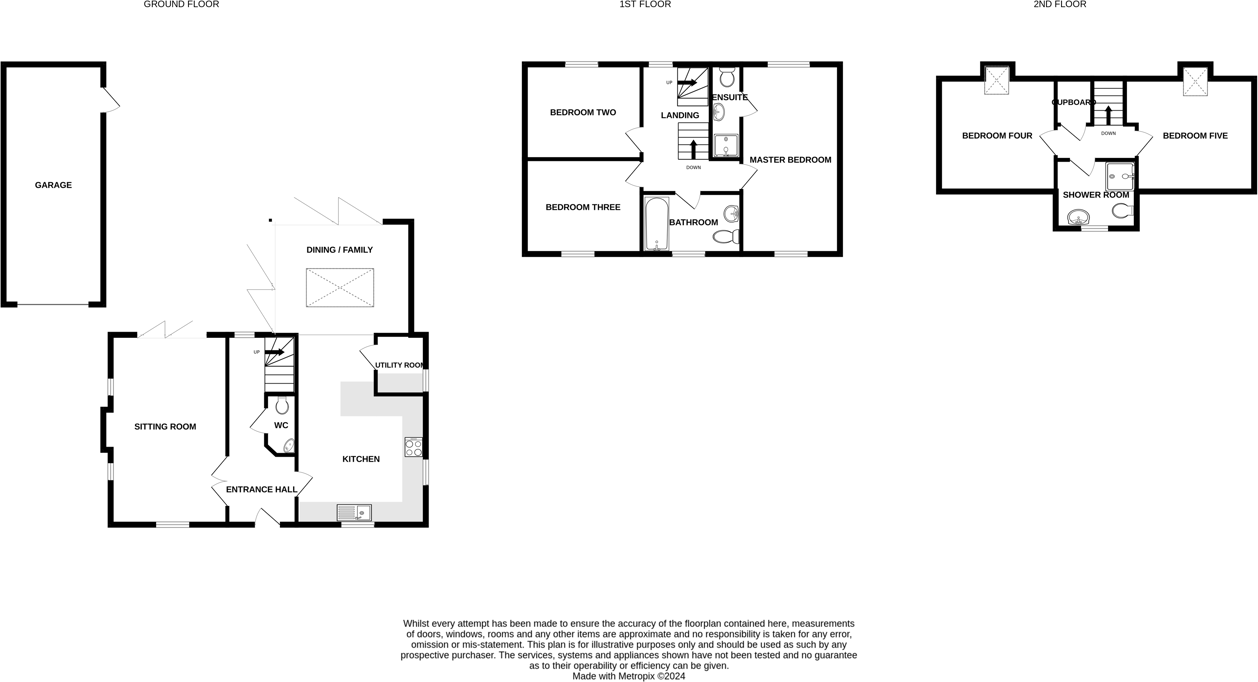
Five bedrooms across three floors with en‑suite to master
Set in the peaceful village of Snettisham, this recently completed five‑bedroom detached house offers contemporary family living across three floors. High‑quality finishes — lime‑washed oak flooring, quartz worktops and a fitted modern kitchen — combine with practical touches such as a utility room, en‑suite to the master and a single garage. Air‑source heat pump with underfloor heating provides efficient electric heating and an EPC B rating.
The house sits on a very large plot and enjoys open field views to the rear, a rare advantage in this quiet hamlet setting. Broadband speeds are fast and mobile signal is excellent, while local schools are rated Good, making the location family‑friendly. There is no flooding risk and recorded local crime levels are very low.
Be aware the advertised internal area is modest (about 797 sqft) for a five‑bedroom property — the layout is compact and uses three floors, so some rooms are smaller and there are multiple stair flights. Council tax band is not specified. The property was constructed between 2007–2011 and has double glazing and cavity insulation installed.
This home will suit buyers seeking a modern, energy‑efficient family house in a rural village with strong local amenities and schooling. It also presents opportunity for buyers who prioritise outdoor space and views over expansive internal living areas.
3 bedroom detached house for sale in Home Farm Close, Snettisham, King's Lynn, PE31 — £519,950 • 3 bed • 2 bath • 797 ft²
3 bedroom detached house for sale in Home Farm Close, Snettisham, King's Lynn, PE31 — £535,000 • 3 bed • 2 bath
3 bedroom detached bungalow for sale in Willowmead Close, Snettisham, King's Lynn, PE31 — £400,000 • 3 bed • 2 bath • 531 ft²
3 bedroom semi-detached house for sale in Tapping Close, Snettisham, PE31 — £340,000 • 3 bed • 2 bath • 880 ft²
4 bedroom detached house for sale in The Old Coal Yard, Snettisham, King's Lynn, PE31 — £425,000 • 4 bed • 2 bath • 1368 ft²
3 bedroom semi-detached house for sale in Chestnut Road, Snettisham, PE31 — £290,000 • 3 bed • 1 bath • 818 ft²


































































































