PL25 4SU - 3 bed spacious period family home in Eastbourne Road, PL25…

View on Property Piper

3 bedroom detached house for sale in Eastbourne Road, St. Austell, PL25

Summary - 73 EASTBOURNE ROAD ST. AUSTELL PL25 4SU

3 bed 2 bath Detached

Large, chain-free detached home with attic and gated parking near St Austell town centre.
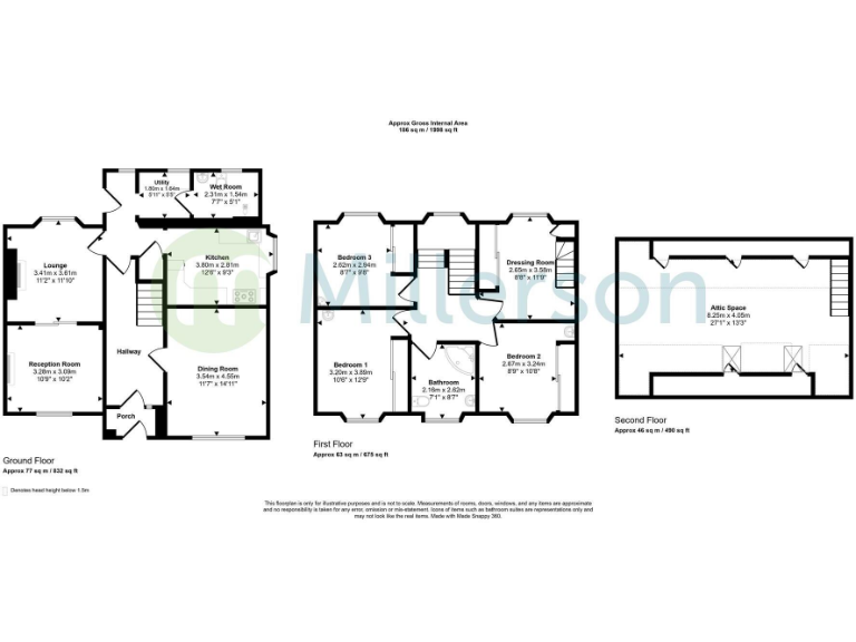
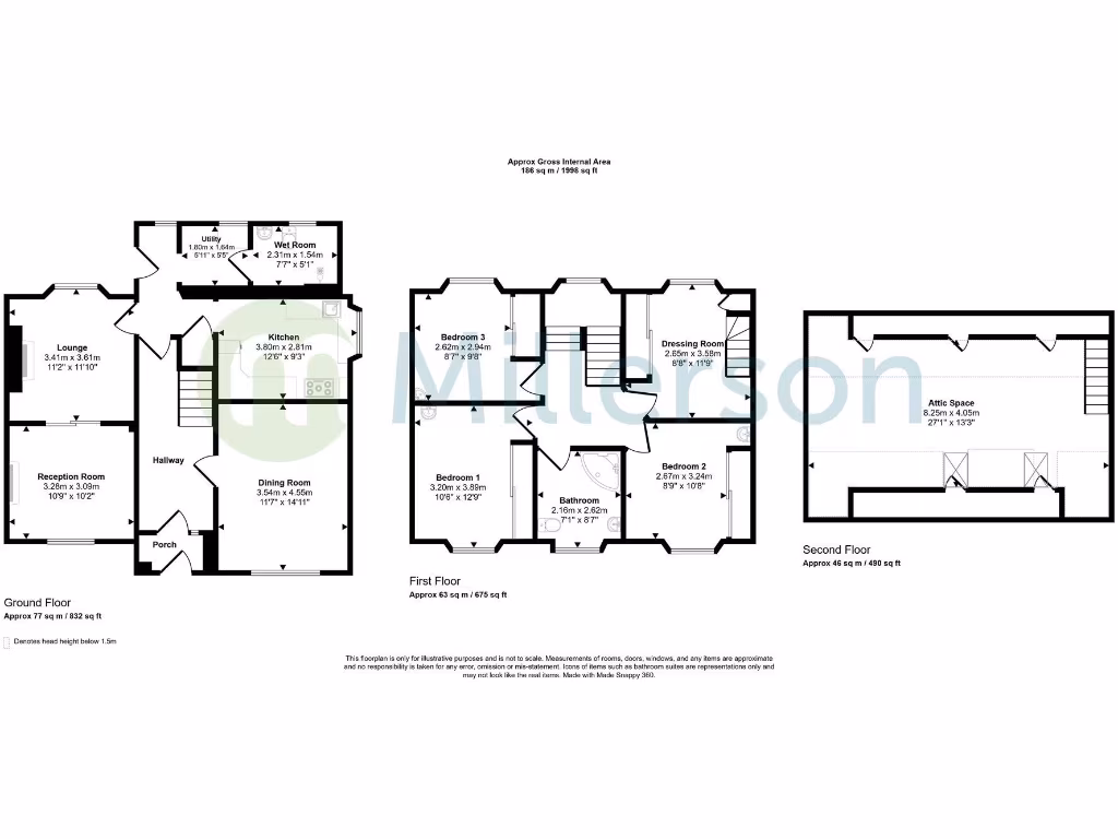
Three double bedrooms plus converted attic room with good headroom
Three reception rooms offering flexible family living spaces
Chain free sale — vacant possession possible on completion
Gated off-street parking and multiple outbuildings for storage or conversion
Connected to mains gas, water, electricity; FTTP broadband available
Solid brick construction c.1900s; likely no wall insulation
Area rated very deprived; local crime levels above average
Requires some modernisation and energy-efficiency upgrades
A generous three-bedroom detached family home arranged over three levels, offered chain free and well-placed for St Austell town centre amenities. The house combines period character — stone fireplace, oak stair and a wood-burning stove — with practical additions such as a fitted kitchen, utility, wet room and converted attic providing flexible living or guest accommodation.

Practical strengths include gated off-street parking, several outbuildings and a large timber workshop with conversion potential (subject to consents). The property is connected to mains gas, water, electricity and drainage, benefits from FTTP broadband and sits in Council Tax Band D. There is excellent mobile signal and no identified flood risk.

Notable drawbacks are the age and construction: built c.1900–1929 with assumed solid brick walls and no known cavity insulation, so upgrading thermal performance may be needed. The area scores as very deprived with above-average local crime rates — factors buyers should weigh for long-term comfort and security. Some rooms and finishes show scope for modernisation rather than full refurbishment.

This house will suit a family needing space and flexibility, or an investor looking for rental potential in a central town location. Buyers should commission a survey to confirm energy/insulation, wiring and any conversion works for the outbuildings or attic.

Property Details

Brochure Descriptions

Image Descriptions

Floorplan Description

Rooms

Textual Property Features

Target Audience

AI Tags

Detected Visual Features

EPC Details

Nearby Schools

Nearest Bars And Restaurants

,,,,}

Nearest General Shops

,,}

Nearest Grocery shops

,,}

Nearest Supermarkets

,,}

Nearest Religious buildings

,,}

Nearest Medical buildings

,,,}

Nearest Leisure Facilities

,,,,}

Nearest Tourist attractions

,,}

Nearest Train stations

,,,,}

Nearest Bus stations and stops

,,,,}

Nearest Hotels

,,}

Tags

Local Market Stats

AirBnB Data

Similar Properties

Meta

High Res Images

Compatible Images

Low res Images

Thumbnails

Raw Images

High Res Floorplan Images

Compatible Floorplan Images

Low res Floorplan Images

FloorplanImages Thumbnail

Raw Floorplan Images