Spacious modern family home with gardens, garage and excellent local schools.
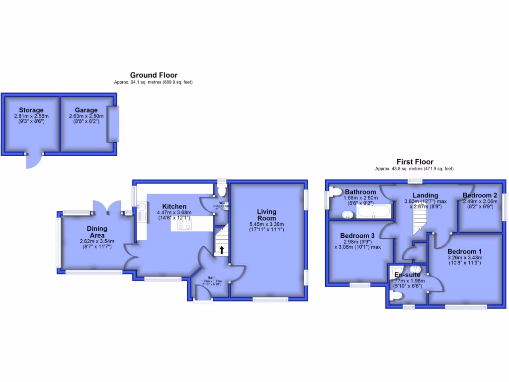
Three-bedroom detached house on sizeable corner plot
Open-plan kitchen/diner with contemporary fitted units and island
Main bedroom with modern en-suite; two further double bedrooms
Wrap-around private garden with decking and conservatory
Large driveway and detached garage providing multiple parking
EPC rating D — potential to improve energy efficiency
Built 1983–1990; some buyers may prefer modernisation works
Double glazing present; installation date unknown
This well-presented three-bedroom detached home sits on a sizeable corner plot in Higher Wheelton, offering spacious family living with wrap-around gardens and a detached garage. The contemporary interior and open-plan kitchen/diner provide flexible living space for everyday family life and entertaining. Conservatory and decking extend living outdoors, ideal for children and alfresco dining.
Upstairs, the main bedroom includes a modern en-suite while two further double bedrooms and a family bathroom provide comfortable accommodation. Practical features include a large driveway with parking for multiple vehicles, mains gas central heating with a boiler and radiators, double glazing (installation date unknown), fast broadband and excellent mobile signal — useful for home-working and streaming.
The village location is peaceful and affluent, close to good-rated local schools, amenities, pubs and direct links to the M61/M65. There is no flood risk and local crime levels are low, making this a sensible choice for families seeking to upsize in a semi-rural setting.
Buyers should note the EPC rating is D and the property dates from the 1980s, so some buyers may wish to update the energy performance and consider longer-term improvements. The home is presented in stylish condition but, as with similar period properties, routine maintenance and potential modernisation may be required to personalise the property further.
5 bedroom detached house for sale in Millbrook Close, Wheelton, Chorley, Lancashire, PR6 — £450,000 • 5 bed • 2 bath • 1750 ft²
3 bedroom detached house for sale in Kenyon Lane, Heapey, Chorley, PR6 — £389,995 • 3 bed • 1 bath • 1390 ft²
3 bedroom link detached house for sale in Millbrook Close, Wheelton, Chorley, Lancashire, PR6 — £270,000 • 3 bed • 1 bath • 1039 ft²
4 bedroom terraced house for sale in Blackburn Road, Higher Wheelton, Chorley, PR6 — £289,995 • 4 bed • 2 bath • 1346 ft²
4 bedroom detached house for sale in Millbrook Close, Wheelton, PR6 — £329,999 • 4 bed • 2 bath • 1365 ft²
4 bedroom detached house for sale in Pear Tree Close, Chorley, PR6 — £749,995 • 4 bed • 3 bath • 1886 ft²










































































































