Bright Victorian five-bedroom with southerly garden and extension potential.
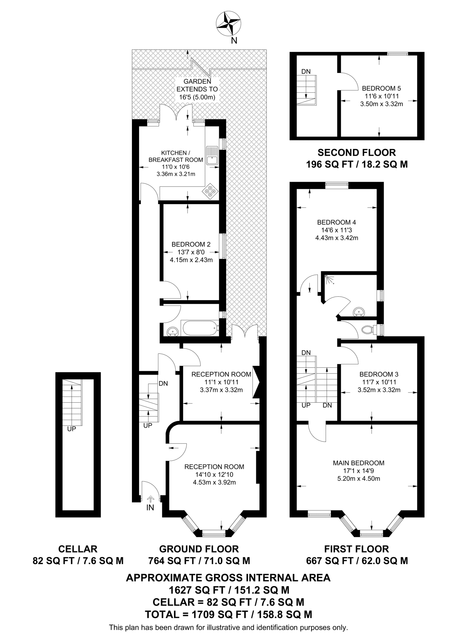
- Five bedrooms across multiple storeys, approx 1,709 sq ft
- Southerly-facing garden, modest size
- Extension potential (STPP) to increase space
- Period features: bay windows, high ceilings, character details
- Dated interior; visible wall cracks and damp staining present
- Solid brick construction likely without wall insulation
- Two bathrooms only for five bedrooms; consider reconfiguration
- Excellent transport, fast broadband, very affluent area
A rare Victorian mid-terrace in the Nightingale Triangle, offered freehold and ready for a family to personalise. The house extends to about 1,709 sq ft across multiple storeys and retains period features such as bay windows and high ceilings, while benefiting from double glazing and mains gas central heating.
The southerly-facing garden and proximity to central Balham, Wandsworth Common and strong local schools are major lifestyle perks. Transport links are convenient with both Tube and Overground services nearby, and digital connectivity is excellent with fast broadband and strong mobile signal.
The property is a blank canvas with extension potential (STPP) for buyers seeking more space or adding value. It does require updating throughout — there are dated interiors, visible wall cracks and signs of damp staining in places — so buyers should factor renovation costs and possible structural investigation into their budgets.
Overall this is a solid opportunity for a growing family or investor who values location, character and future expansion. The small plot size limits garden enlargement, and planning consent is not yet in place, but the house’s scale and setting make it a practical long-term project in a very affluent, low-crime neighbourhood.
4 bedroom terraced house for sale in Airedale Road, London, SW12 — £1,495,000 • 4 bed • 2 bath • 1753 ft²
2 bedroom terraced house for sale in Ravenslea Road,London,SW12 8RT, SW12 — £895,000 • 2 bed • 2 bath • 963 ft²
5 bedroom terraced house for sale in Fernside Road, London, SW12 — £1,750,000 • 5 bed • 2 bath • 2080 ft²
3 bedroom terraced house for sale in Fernside Road, London, SW12 — £1,300,000 • 3 bed • 1 bath • 1456 ft²
4 bedroom terraced house for sale in Gosberton Road, London, SW12 — £1,475,000 • 4 bed • 1 bath • 2050 ft²
5 bedroom terraced house for sale in Gosberton Road, London, SW12 — £1,650,000 • 5 bed • 2 bath • 2110 ft²


















































































































