One-acre freehold plot with full permission for a contemporary five-bedroom barn..
Full planning permission for a five-bedroom Kentish barn (ref. 21/02220/AS)
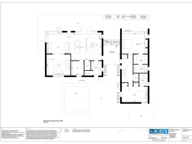
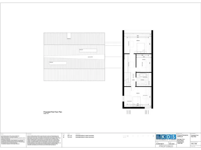
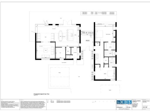
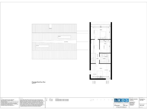
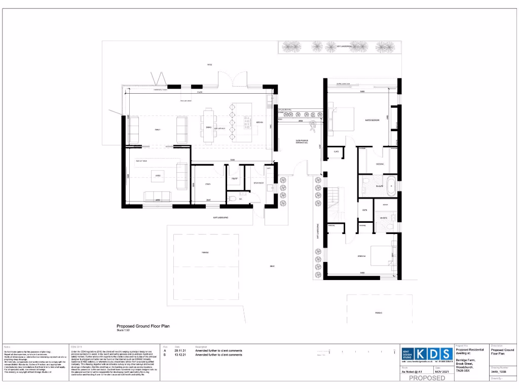
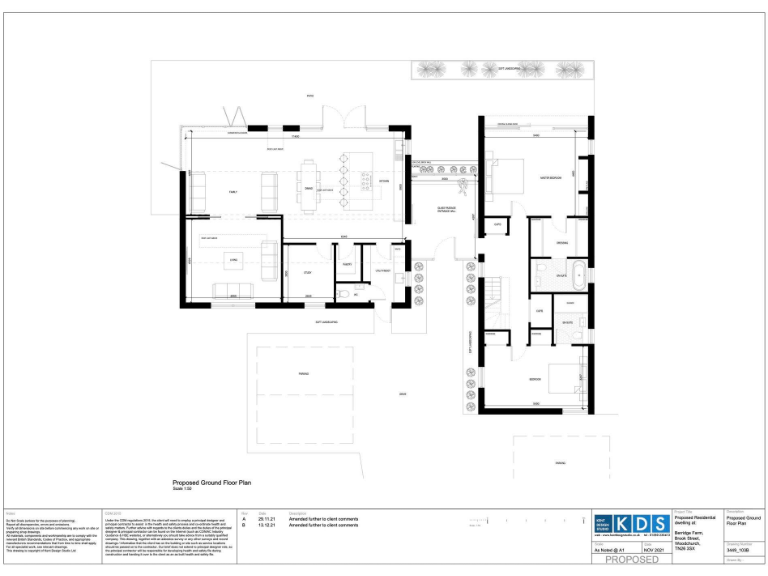
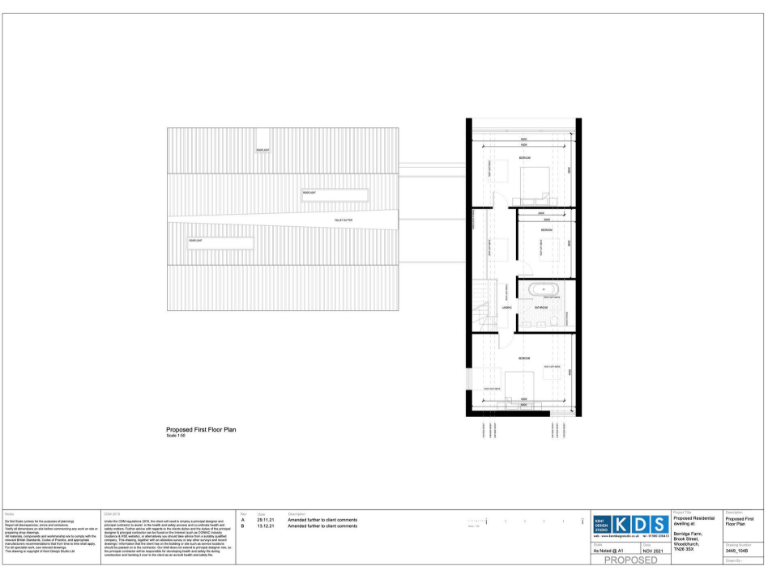
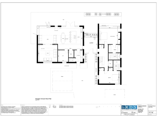
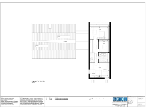
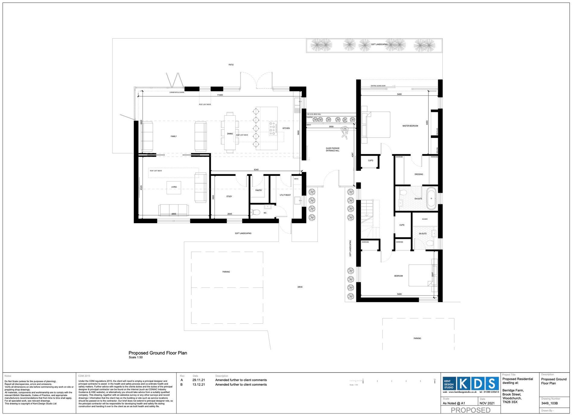
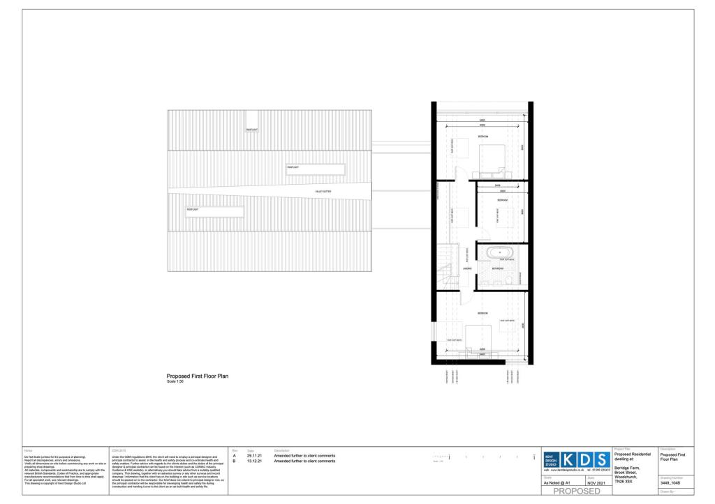
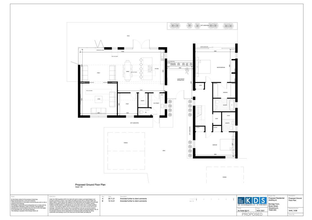
Hawthorn Barn is a rare self-build opportunity in a quiet Wealden setting between Woodchurch and Tenterden. The freehold plot of about one acre has full planning permission (Ashford Borough Council ref. 21/02220/AS) for a contemporary five-bedroom Kentish barn, offering roughly 2,992 sq ft of accommodation across linked single- and two-storey volumes.
The consented design emphasises open-plan living, generous ceiling heights and a strong indoor–outdoor connection: a west-facing terrace, large glazing and formal lawns with an ornamental pond create attractive living and entertaining spaces. The principal ground-floor suite opens directly onto the garden; a separate two-storey wing contains additional bedrooms and family bathrooms.
Practical considerations are straightforward: the plot is freehold and sits in a low flood-risk location with excellent mobile signal. However, broadband speeds are very slow and the completed home would sit in a postcode with relatively high council tax costs — both factors for buyers to consider when budgeting for occupation. The site is currently occupied by a redundant agricultural building that will be replaced under the granted permission.
This opportunity suits buyers seeking to build a substantial family residence in private countryside, or those wanting a bespoke contemporary barn in a mature, secluded garden. The permission and design reduce planning uncertainty, but the build will require detailed contractor pricing and allowance for services, landscaping and any upgrades to connectivity.
5 bedroom detached house for sale in Knowle Road, Brenchley, TN12 — £750,000 • 5 bed • 3 bath • 3500 ft²
Plot for sale in Maytham Road, TN17 — £595,000 • 4 bed • 1 bath • 2890 ft²
5 bedroom detached house for sale in Mundy Bois Road, Egerton , TN27 — £1,100,000 • 5 bed • 3 bath • 2700 ft²
3 bedroom barn conversion for sale in Chickenden Lane, TN12 — £255,000 • 3 bed • 1 bath • 2368 ft²
4 bedroom detached house for sale in Windmill Hill, Brenchley, Tonbridge, Kent, TN12 — £700,000 • 4 bed • 1 bath • 3450 ft²
4 bedroom detached house for sale in Goudhurst Road, Marden, Tonbridge, Kent, TN12 — £425,000 • 4 bed • 3 bath • 2830 ft²










































































































































