**Standout Features:**
- Newly built contemporary farmhouse with traditional stone and slate design.
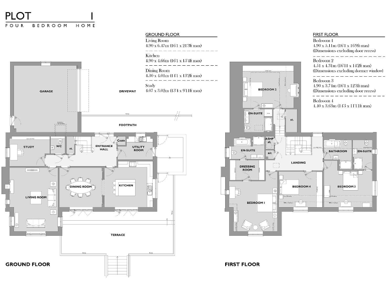
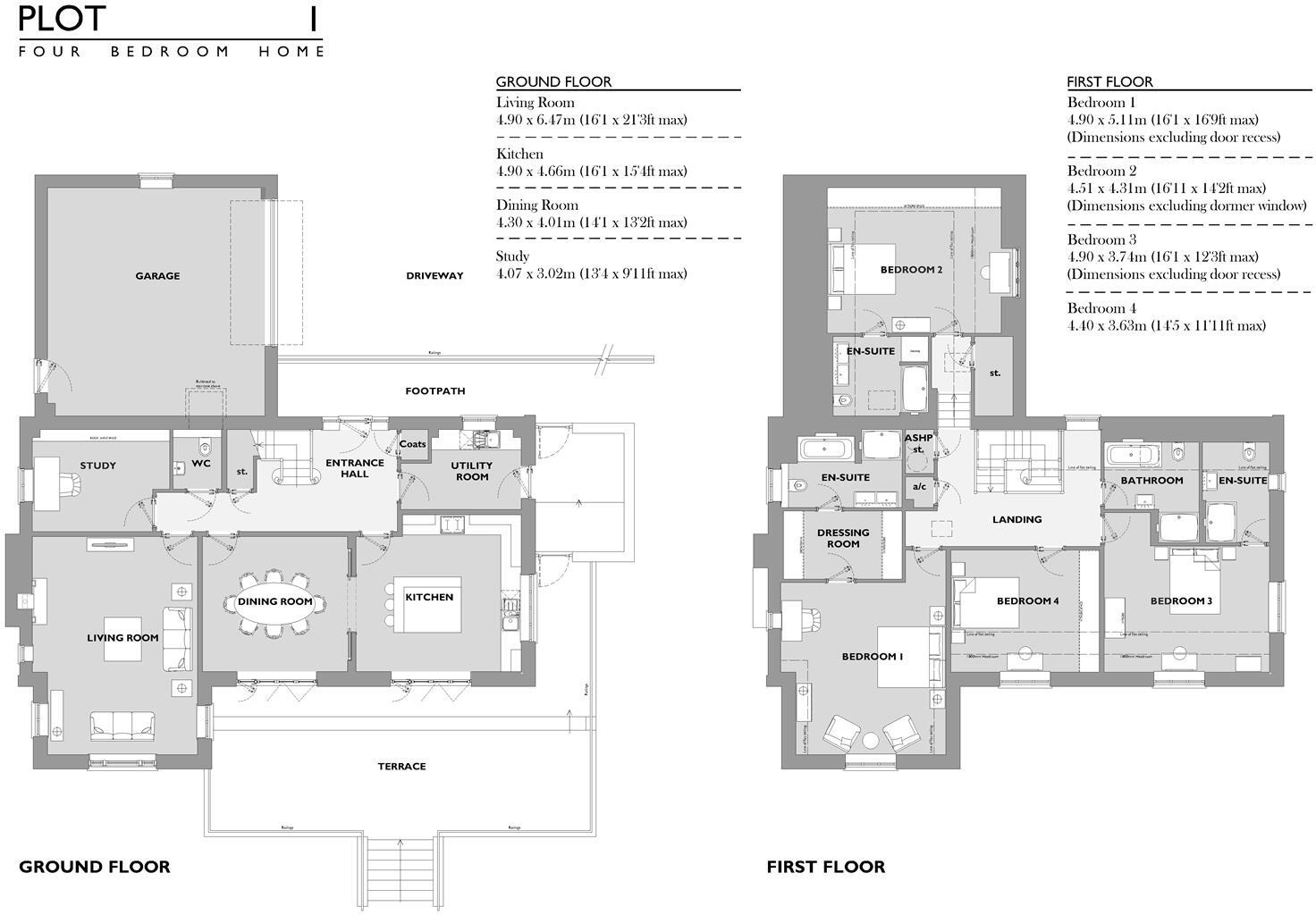
- Spacious layout: 4 bedrooms, 4 bathrooms, and large garage.
- Energy-efficient with PV cells and air source heat pump.
- Expansive gardens with entertaining terrace and stunning countryside views.
- Located in a serene rural village, low crime area, excellent mobile signal, and fast broadband.
**Summary:**
Discover the epitome of modern rural living in this beautifully crafted four-bedroom detached new build, nestled in the picturesque village of Litton Cheney. With its elegant blend of contemporary design and traditional stonework, this home features large bifold doors that seamlessly connect the spacious kitchen and dining area to an inviting terrace—perfect for entertaining while taking in breathtaking views over the Bride Valley.
The thoughtfully designed interior includes a generous living room with a cozy wood-burning stove, a private study, and luxurious ensuite bathrooms for three of the bedrooms, ensuring both comfort and practicality. Built in 2023, the property boasts modern amenities like underfloor heating and energy-efficient systems, while still maintaining a classic farmhouse charm.
With beautifully landscaped gardens surrounding the home, you'll enjoy ample outdoor space for family gatherings or leisure. Located just a short drive from Bridport and the Jurassic Coast, this residence offers both tranquility and accessibility to vibrant community life. Perfect for families, investors, or anyone seeking an idyllic retreat, this property is a rare find that embodies comfort, security, and future potential. Don’t miss out on this exceptional opportunity to call this dream home yours!
4 bedroom detached house for sale in Higher Street, Bridport, DT6 — £825,000 • 4 bed • 3 bath • 1912 ft²
4 bedroom detached house for sale in Foundry Lea, Bridport, DT6 — £525,000 • 4 bed • 2 bath • 916 ft²
4 bedroom detached house for sale in East street Gardens, Beaminster, DT8 — £875,000 • 4 bed • 2 bath • 575 ft²
3 bedroom terraced house for sale in Litton Cheney, Dorset, DT2 — £415,000 • 3 bed • 2 bath • 345 ft²
4 bedroom detached house for sale in Winterborne Whitechurch, Blandford Forum, Dorset, DT11 — £1,000,000 • 4 bed • 3 bath • 3818 ft²
5 bedroom detached house for sale in Litton Cheney, Dorchester, Dorset, DT2 — £1,200,000 • 5 bed • 3 bath • 3964 ft²






















































































