**Standout Features:**
- Two double bedrooms, one bathroom
- Newly renovated with a modern, open-plan kitchen
- Secure entrance and private access
- Generous private garden plus a versatile insulated home office
- Excellent transport links and local schools nearby
- Perfect for young families or first-time buyers
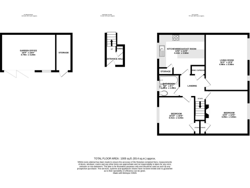
This charming first-floor maisonette offers a harmonious blend of comfort and modern living, ideal for young families or professionals looking for that perfect work-from-home setup. The interior features a spacious entrance hallway leading to a light-filled living and dining area, complemented by a newly fitted kitchen equipped with integral appliances and a stylish breakfast bar. Two generously sized double bedrooms provide ample storage with built-in wardrobes, and the newly retouched family bathroom adds to the home's appeal.
Step outside to discover a fantastic private garden that extends your living space, complete with a brick-built storage area and a functional home office with bi-folding doors—perfect for remote working or creative pursuits. Enjoy the tranquility of a suburban setting while benefiting from convenient access to local schools, amenities, and transport links to St Albans.
While the property is in excellent condition and newly renovated, it's worth noting that as a leasehold property, there is a ground rent of £10 annually. This unique maisonette is a rare find in the market, combining generous living space with versatility. Don't miss the opportunity to make it yours before it’s gone!
2 bedroom apartment for sale in Beresford Road, St. Albans, Hertfordshire, AL1 — £400,000 • 2 bed • 1 bath • 743 ft²
2 bedroom maisonette for sale in Sycamore Drive, Park Street, St. Albans, Hertfordshire, AL2 — £325,000 • 2 bed • 1 bath • 606 ft²
2 bedroom maisonette for sale in Prospect Road, St. Albans, Hertfordshire, AL1 — £375,000 • 2 bed • 1 bath • 772 ft²
2 bedroom maisonette for sale in Trumpington Drive, St. Albans, AL1 2JP, AL1 — £375,000 • 2 bed • 1 bath • 853 ft²
1 bedroom apartment for sale in The Berries, Sandridge, St Albans, Herts, AL4 — £240,000 • 1 bed • 1 bath • 559 ft²
2 bedroom maisonette for sale in Kenton Gardens, St. Albans, Hertfordshire, AL1 — £400,000 • 2 bed • 1 bath • 622 ft²










































































