Low-price auction buy with clear uplift potential for refurbishment-minded buyers.
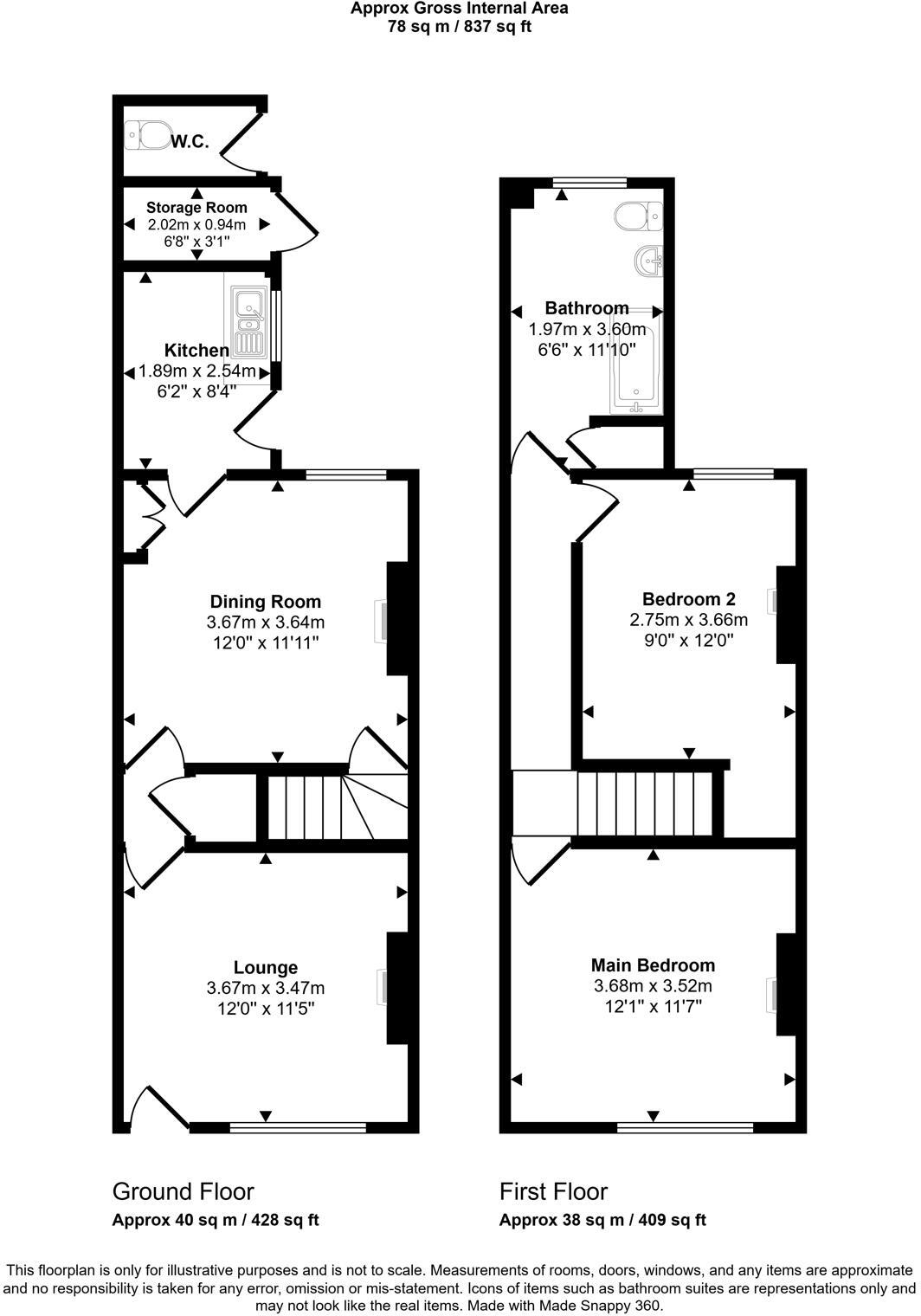
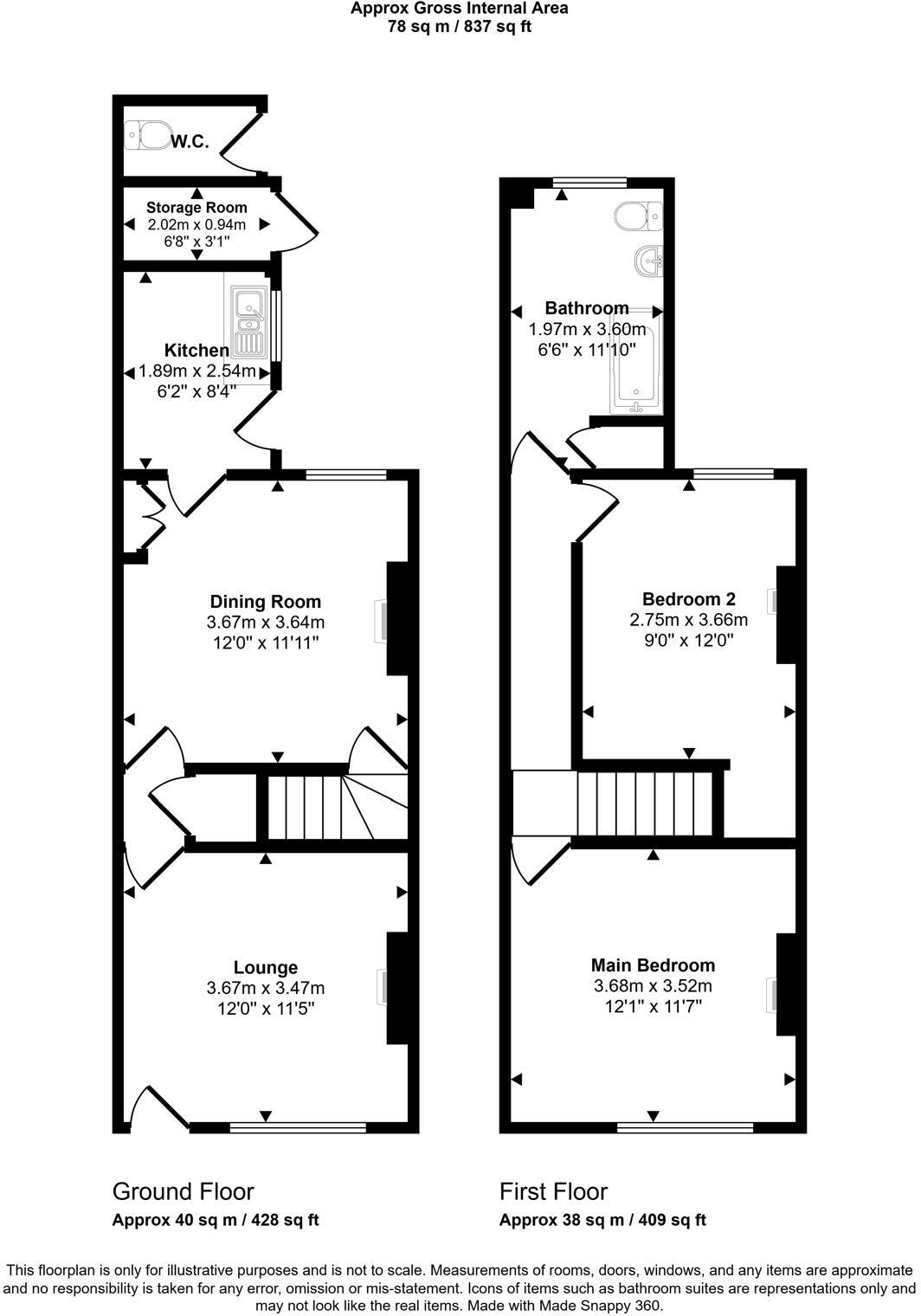
- Freehold Victorian end-terrace, approx. 837 sq ft
- Two bedrooms, lounge, dining room, kitchen, one bathroom
- Vacant and needs renovation; cosmetic and systems work likely
- Small rear garden; potential for rear extension (subject to planning)
- On-street parking only; no off-street parking
- Sold at auction — buyer must follow auction timelines and legal pack
- Located in very deprived area with very high crime rates
- Close to several primary/secondary schools rated Good or Requires Improvement
An end-of-terrace Victorian two-bedroom in Ilkeston offered freehold and sold at auction. The house (approx. 837 sq ft) is vacant and needs renovation, presenting a low entry price and clear scope to add value for a cash buyer or investor. It has a lounge, dining room, kitchen, upstairs bathroom, small rear garden and on-street parking.
The property sits in a very deprived, high-crime area of DE7, so buyers should factor in local challenges and possible security or neighbourhood-improvement costs. There is obvious scope for cosmetic upgrading throughout and potential for rear extensions (subject to planning). Ceiling heights and room proportions are typical for a Victorian terrace; many neighbouring properties are well presented.
This will suit a hands-on investor or buyer experienced with refurbishment in tougher markets — someone looking to buy at a low headline price and add value through repairs, redecorating and permitted development. Confirm legal pack details and budget for renovation work and any safety or security upgrades before bidding.
3 bedroom terraced house for sale in 19a Alvenor Street, Ilkeston, DE7 — £79,000 • 3 bed • 1 bath
2 bedroom terraced house for sale in 77 Shaw Street East, Ilkeston, Derbyshire DE7 5AU, DE7 — £45,000 • 2 bed • 1 bath
2 bedroom semi-detached house for sale in 567 Lower Somercotes, Derbyshire, DE55 — £39,000 • 2 bed • 1 bath • 1104 ft²
3 bedroom terraced house for sale in 266 Nottingham Road, DE7 5BD, DE7 — £94,500 • 3 bed • 1 bath • 746 ft²
2 bedroom terraced house for sale in Albany Street, Ilkeston, Derbyshire, DE7 — £85,000 • 2 bed • 1 bath • 700 ft²
2 bedroom terraced house for sale in Brighton Road, Alvaston, DE24 — £87,500 • 2 bed • 1 bath • 885 ft²










































































