WR4 9PR - 3 bed spacious three bedroom terrace in Worcester, WR4 9PR

View on Property Piper

3 bedroom terraced house for sale in Snowshill Close, Worcester, Worcestershire, WR4 9PR, WR4

Summary - 32 Snowshill Close WR4 9PR

3 bed 1 bath Terraced

Large rooms and garden — ideal for buyers wanting refurbishment potential near good schools..
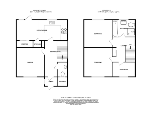
Extremely large overall internal size (approx. 2,235 sq ft)
Three good-sized bedrooms with loft access
Open-plan kitchen/diner plus separate front lounge
Private rear garden, patio, shed and rear access gate
Dated 1970s/1980s interior — needs modernization
Warm-air mains gas heating; double glazing (install date unknown)
Small plot and single bathroom only
High local crime and very deprived surrounding area
A spacious three-bedroom mid-terrace offering substantial internal space and straightforward layout for practical living. The open-plan kitchen/diner and separate lounge create flexible family space, while three good-sized bedrooms and loft access give room to grow. The property is freehold with a private rear garden, external storage and rear gate access.

The house is dated and will benefit from modernization; the kitchen and general decor reflect 1970s/1980s fittings. Heating is by warm-air mains gas and double glazing is present, though installation dates are unknown. Buyers should also note a single bathroom, small plot size and the surrounding area has higher crime and marked deprivation indicators.

Sold via online Secure Sale/auction, this home suits first-time buyers or investors prepared to refurbish. Local schools have good Ofsted ratings and the location has excellent mobile signal, average broadband and no flood risk. The property presents clear scope to add value through targeted updating and cosmetic improvement.

Property Details

Image Descriptions

Floorplan Description

Rooms

Textual Property Features

Target Audience

AI Tags

Detected Visual Features

EPC Details

Nearby Schools

Nearest Bars And Restaurants

,,,,}

Nearest General Shops

,,}

Nearest Grocery shops

,,}

Nearest Supermarkets

,,}

Nearest Religious buildings

,,}

Nearest Medical buildings

,,,}

Nearest Leisure Facilities

,,,,}

Nearest Tourist attractions

,,}

Nearest Train stations

,,,,}

Nearest Bus stations and stops

,,,,}

Nearest Hotels

,,}

Tags

Local Market Stats

Similar Properties

Meta

High Res Images

Compatible Images

Low res Images

Thumbnails

Raw Images

High Res Floorplan Images

Compatible Floorplan Images

Low res Floorplan Images

FloorplanImages Thumbnail

Raw Floorplan Images