Light-filled top-floor bedroom and allocated parking near good schools.
Three floors offering flexible living and a large top-floor bedroom
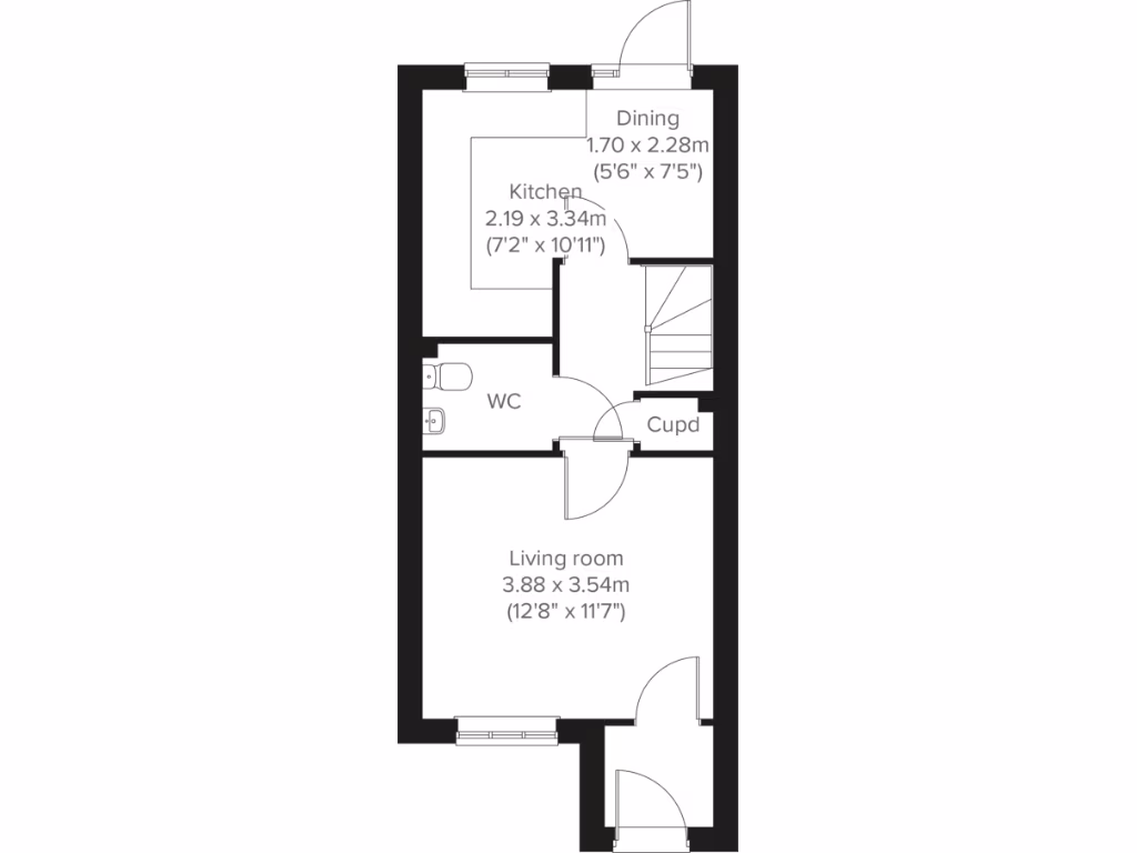
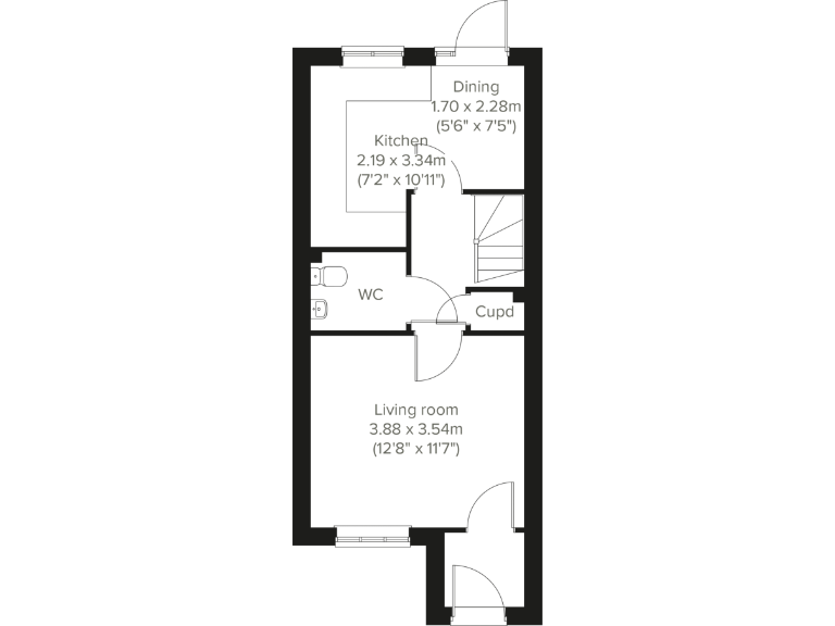
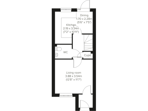
This compact three-bedroom, three-storey terraced house in Kergilliack offers efficient, low-maintenance living close to Falmouth amenities. The layout maximises space: a front-aspect living room, kitchen/diner with outside access and three useful storage cupboards suit day-to-day family life.
The top-floor principal bedroom is notably large and includes a dressing area — ideal as a parents’ retreat, teenage hangout or flexible home office. Allocated off-street parking and a private garden add practical appeal for families who need outdoor space and parking in a city setting.
Practical points to note: the property totals about 653 sq ft and has a single full bathroom plus a downstairs WC, so space is compact compared with larger family homes. Broadband speeds are reported slow, and the council tax band will not be available until after occupation. The house is freehold and energy efficient, making it a straightforward, lower-cost-to-run option for those seeking a modern, manageable home in a very affluent, low-crime area.
3 bedroom end of terrace house for sale in Bickland Water Road,
Kergilliack,
Falmouth,
Cornwall,
TR11 4PB, TR11 — £315,000 • 3 bed • 1 bath • 1148 ft²
3 bedroom detached house for sale in Bickland Water Road,
Kergilliack,
Falmouth,
Cornwall,
TR11 4PB, TR11 — £420,000 • 3 bed • 1 bath • 368 ft²
3 bedroom terraced house for sale in Windsor Terrace, Falmouth, TR11 — £380,000 • 3 bed • 1 bath • 832 ft²
3 bedroom terraced house for sale in Falmouth, TR11 — £275,000 • 3 bed • 1 bath • 828 ft²
3 bedroom house for sale in Glasney Road, Falmouth - Well presented, TR11 — £335,000 • 3 bed • 1 bath • 775 ft²
3 bedroom terraced house for sale in Longfield, Falmouth, TR11 — £295,000 • 3 bed • 1 bath • 861 ft²


































