Period two-bedroom terrace close to Alnwick town centre, ideal for first-time buyers.
Two double bedrooms with feature fireplaces
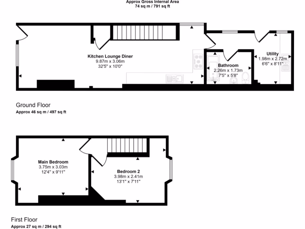
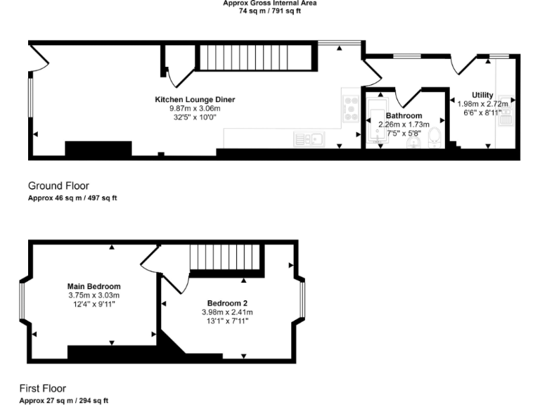
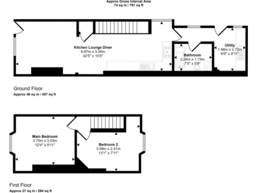
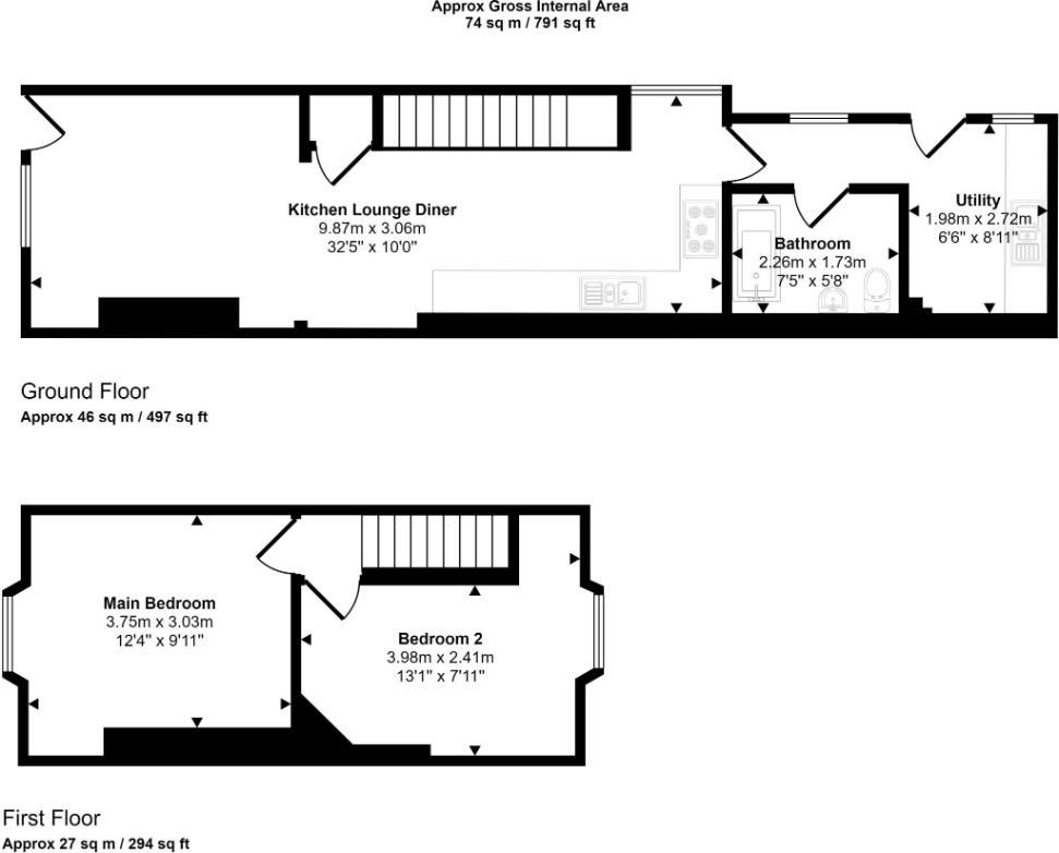
A well-presented two-bedroom mid-terrace in the heart of Alnwick, this stone-built home combines period character with contemporary open-plan living. The ground floor offers a practical open-plan living/kitchen with fitted appliances, understairs storage and a utility room housing the combi gas boiler. Upstairs are two double bedrooms, both with feature fireplaces.
This property suits first-time buyers or investors seeking a compact, central home with good broadband and excellent mobile signal. It's within easy walking distance of shops, schools and leisure facilities, plus quick access to the A1 and Alnmouth station for Newcastle and Edinburgh links.
Important practical points: there is no private garden or off-street parking (on-street only) and the plot is very small. The building is period sandstone/limestone with assumed no wall insulation; some modernization or insulation upgrades may be desirable to improve comfort and running costs. EPC rating C and council tax Band B are provided.
Tenure is freehold with a manageable overall size (about 791 sq ft). For buyers wanting central convenience, character features and a ready-to-live-in layout, this offers good value at the listed price, while those needing outdoor space or a garage should note the lack of external area.
2 bedroom terraced house for sale in Clayport Gardens, Alnwick, NE66 — £130,000 • 2 bed • 1 bath • 613 ft²
4 bedroom terraced house for sale in Bridge Street, Alnwick, NE66 — £240,000 • 4 bed • 1 bath • 1608 ft²
2 bedroom terraced house for sale in Sea View Terrace, Alnwick, NE66 — £165,000 • 2 bed • 1 bath • 829 ft²
3 bedroom terraced house for sale in Dispensary Street, Alnwick, NE66 — £160,000 • 3 bed • 1 bath • 910 ft²
2 bedroom house for sale in Pringles Yard, Alnwick, NE66 — £175,000 • 2 bed • 1 bath • 728 ft²
3 bedroom terraced house for sale in Percy Terrace, Alnwick, Northumberland, NE66 — £380,000 • 3 bed • 1 bath • 623 ft²


















































