SW11 1RL - 3 bedroom apartment for sale in Sangora Road, London, SW11

View on Property Piper

3 bedroom apartment for sale in Sangora Road, London, SW11

Summary - 24, Sangora Road SW11 1RL

3 bed 2 bath Apartment

**Standout Features:**
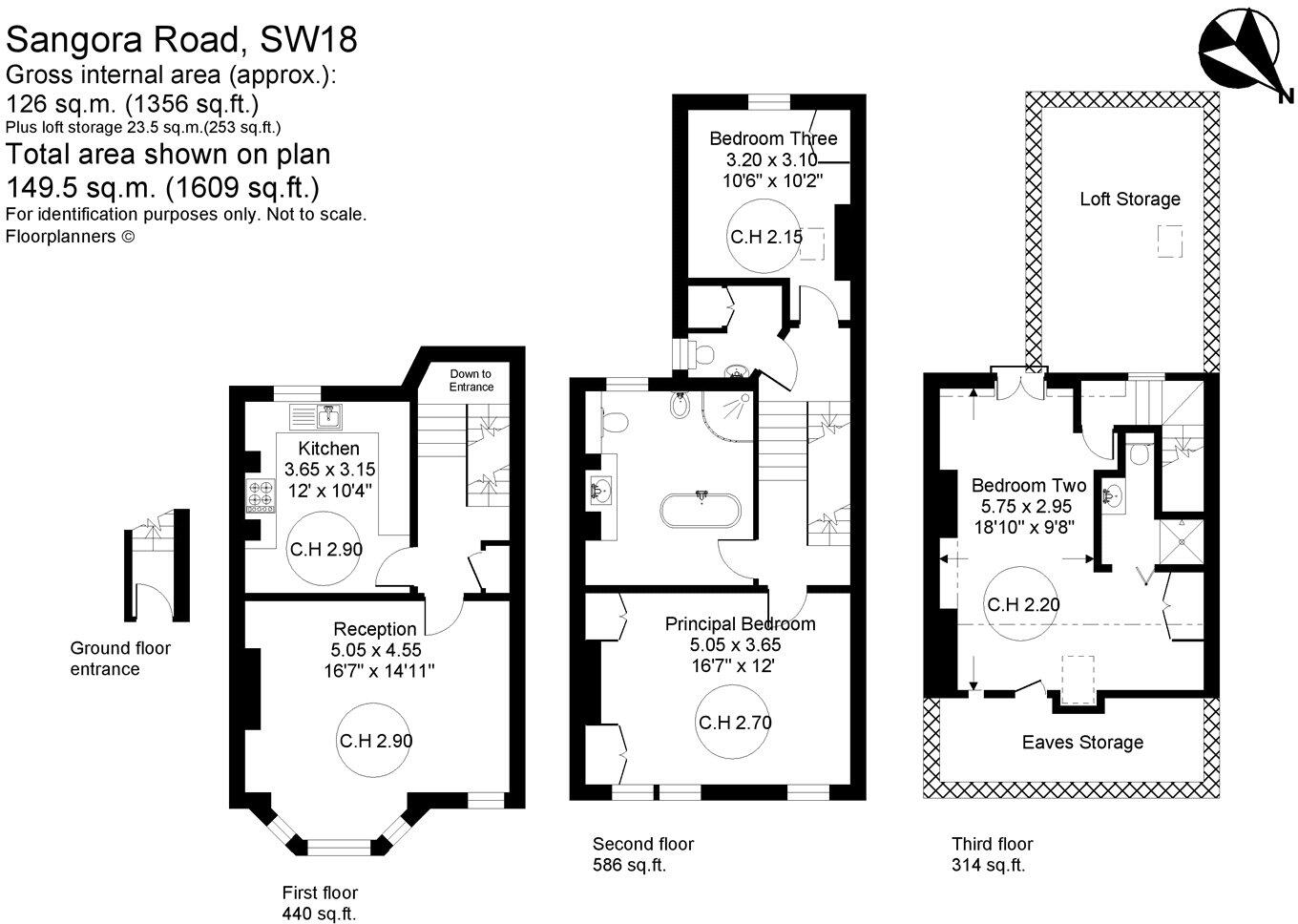
- Spacious 3-bedroom split-level flat (1,356 sq ft)
- Share of freehold with no onward chain
- Beautiful Victorian design with high ceilings and period features
- Generously sized kitchen with ample counter space
- En-suite bathroom in the top-floor bedroom
- Located near Clapham Junction and vibrant local amenities

**Potential Downsides:**
- Above-average crime rate in the area
- No insulation assumed in solid brick walls
- EPC Rating: D, suggesting energy efficiency improvements could be beneficial

Step into a stunningly spacious three-bedroom, two-bathroom apartment that combines period charm with modern conveniences. Located just a short walk from Clapham Junction, this split-level gem stretches across three floors, offering a substantial 1,356 sq ft of beautifully arranged living space. You'll be greeted by a bright, airy reception room with a large bay window, high ceilings, and an elegant marble fireplace, perfect for entertaining or family gatherings.

The property features a large, contemporary kitchen designed for culinary enthusiasts, alongside a principal bedroom adorned with natural light and built-in storage. The versatile second bedroom can easily function as a study, while the expansive loft-style third bedroom provides a cozy retreat, complete with an en-suite bathroom for added privacy.

With a vibrant local scene including shops, bars, and nearby Wandsworth Common just moments away, this residence is ideal for families and young professionals alike. Although it boasts major appeal, potential buyers should consider the above-average crime rate in the vicinity and the absence of wall insulation noted in its construction. With no onward chain, this property presents a unique opportunity to secure a piece of Clapham living. Make this cozy yet expansive home your own!

Property Details

Image Descriptions

Floorplan Description

Rooms

Textual Property Features

Detected Visual Features

EPC Details

Nearby Schools

Nearest Bars And Restaurants

,,,,}

Nearest General Shops

,,}

Nearest Grocery shops

,,}

Nearest Supermarkets

,,}

Nearest Religious buildings

,,}

Nearest Medical buildings

,,,}

Nearest Airports

,,}

Nearest Leisure Facilities

,,,,}

Nearest Tourist attractions

,,}

Nearest Train stations

,,,,}

Nearest Bus stations and stops

,,,,}

Nearest Hotels

,,}

Tags

Local Market Stats

AirBnB Data

Similar Properties

Meta

High Res Images

Compatible Images

Low res Images

Thumbnails

Raw Images

High Res Floorplan Images

Compatible Floorplan Images

Low res Floorplan Images

FloorplanImages Thumbnail

Raw Floorplan Images