Consented 2.5-acre site for a modern four-bedroom family home.
Planning permission for one detached four-bedroom dwelling (ref: 23/01328/FUL)
Site approximately 2.5 acres (STLS) with expansive countryside views
Approved access alterations to Harwich Road included in consent
Freehold tenure with guide price £375,000
Overage clause: 25% uplift for 20 years (from date of sale)
High flood-risk location — specialist drainage and mitigation required
Excellent mobile signal and fast broadband in village setting
Low local crime; affluent, rural community with nearby amenities
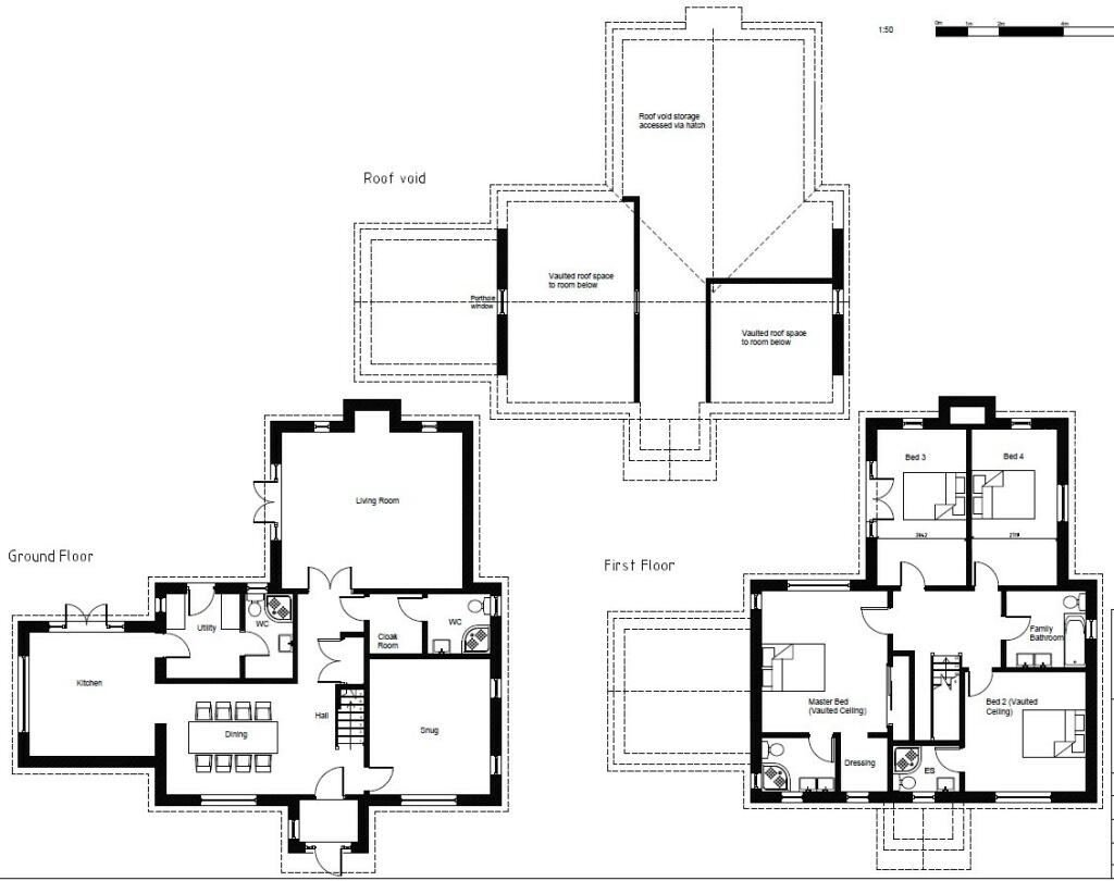
A substantial circa 2.5 acre freehold site with consented planning (ref: 23/01328/FUL) to build a single detached four-bedroom dwelling of about 2,185 sq ft. The plot sits beside Abbey Bottom Farm in the picturesque village of Wix, offering wide open countryside views and a peaceful, rural setting two miles from the Stour Estuary.
This opportunity suits a developer or investor looking to deliver a contemporary family home in an affluent, low-crime village location with excellent mobile signal and fast broadband. Approved alterations to the existing access to the highway are included in the consent, reducing initial highway negotiation work.
Important considerations: the site is sold subject to an overage clause reserving 25% of any uplift in value from change of use or further planning for 20 years. The plot is also in a high flood-risk area; buyers must undertake specialist ground and drainage assessments and factor in flood mitigation measures and related insurance costs.
Offered freehold at a guide price of £375,000, this is a clear planning-led development plot. The legal pack will contain full overage wording and technical details; survey and flood-report commissioning is recommended prior to commitment.
Plot for sale in Primrose Hill, Wrabness, Manningtree, Essex, CO11 — £165,000 • 1 bed • 1 bath • 1214 ft²
Land for sale in Plot H Factory Lane, CO11 — £996,000 • 1 bed • 1 bath
Land for sale in Plot I Factory Lane, CO11 — £720,000 • 1 bed • 1 bath
Plot for sale in Hunters Chase, Ardleigh, CO7 — £300,000 • 1 bed • 1 bath
Light industrial facility for sale in Development Land to the West of Tye Lane, Wivenhoe, Colchester, CO7 7EP, CO7 — POA • 1 bed • 1 bath
Land for sale in Plot F Factory Lane, CO11 — £378,000 • 1 bed • 1 bath • 27443 ft²


























































