Well-connected two-bed coach house with garage — ideal for first-time buyers and investors.
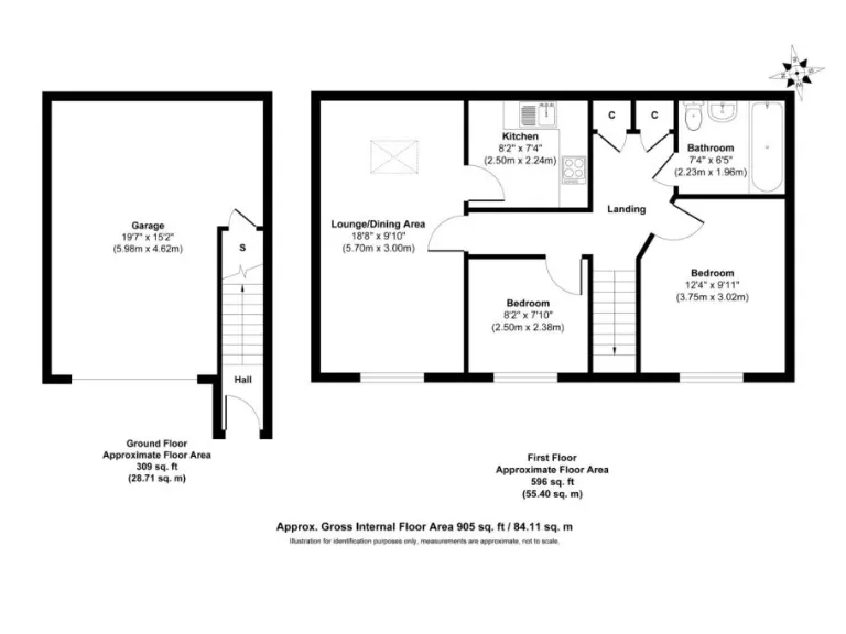
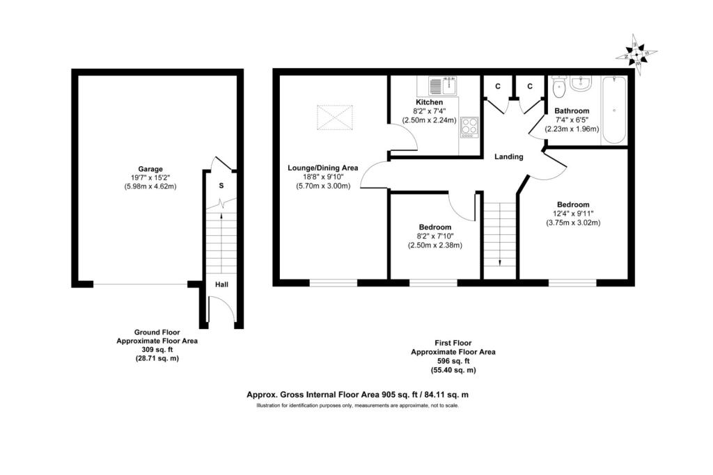
Two-bedroom coach house with separate kitchen and lounge/diner
Set in a quiet cul-de-sac, this well-presented two-bedroom coach house offers compact, modern living with practical benefits. The property’s separate kitchen and lounge/diner keep daily routines organised, while a single garage provides valuable storage or parking. At about 569 sq ft, the layout suits a first-time buyer, small family or buy-to-let investor seeking low-maintenance accommodation.
Location is a clear strength: Waitrose and independent cafés are a short walk away, several bus routes serve Ashford town centre, and Ashford International station reaches London in approximately 38 minutes by high-speed train. Local schools include several rated Good and the Outstanding Highworth Grammar School, adding family appeal.
There are important factual considerations. The flat is leasehold with 105 years remaining; annual service charge averages £1,200 and ground rent is £125. Crime in the immediate area is reported above average, and the overall internal size is modest. EPC is C (75) and there is no flood risk.
Overall, this coach house is best for buyers prioritising connectivity, nearby amenities and low-maintenance living. It offers clear potential for a comfortable first home or a straightforward rental, provided buyers accept the compact footprint, leasehold costs and local crime statistics.
2 bedroom coach house for sale in Paul Harman Close, Ashford, Kent, TN23 — £220,000 • 2 bed • 1 bath • 703 ft²
2 bedroom coach house for sale in Green Mews, Chilmington Green, Ashford, TN23 — £350,000 • 2 bed • 1 bath • 1415 ft²
2 bedroom house for sale in Holt Close, Ashford, TN23 — £230,000 • 2 bed • 1 bath • 560 ft²
2 bedroom house for sale in Coulter Road, Kingsnorth, Ashford, TN23 — £225,000 • 2 bed • 1 bath • 614 ft²
2 bedroom coach house for sale in Nuthatch Drive, Finberry, TN25 — £240,000 • 2 bed • 1 bath • 921 ft²
2 bedroom apartment for sale in Gravelly Field, Ashford, Kent, TN23 — £250,000 • 2 bed • 1 bath • 991 ft²


















































