Waterside living with dramatic industrial interiors and two secure parking spaces.
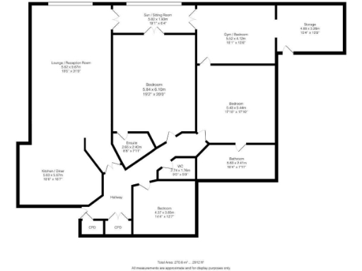
Extensive 2,912 sq ft converted-loft style apartment with high ceilings
Set within the prestigious Colonnades at Albert Dock, this expansive waterside apartment offers dramatic industrial interiors and panoramic dock views. Exposed brickwork, vaulted ceilings and large arched windows create a converted-loft atmosphere across a very large 2,912 sq ft footprint. The layout includes a generous open-plan kitchen, dining and lounge, a sun/sitting room overlooking the water, a gym room and substantial storage.
Practical benefits include two underground parking spaces, lift access, 24-hour concierge and a long lease of approximately 150 years remaining. The seller will contribute one year’s service charge, providing short-term relief from the ongoing maintenance cost. Broadband and mobile signal are strong and the property is not in a flood-risk zone.
Buyers should note important considerations: the advertised details contain conflicting bedroom counts (some notes say three bedrooms, core data lists four), so please verify the exact bedroom configuration. The service charge is high at £1,200 per month (£14,400 per year), reflecting communal services and the concierge. The property is leasehold and located in an area with higher deprivation indices and average crime levels, which may influence long-term resale and rental demand.
This apartment will suit purchasers seeking a statement waterside home or a high-profile investment in Liverpool city centre — those prioritising space, character and secure parking. It also carries ongoing running costs and requires careful budget planning for the high service charge and leasehold considerations.
3 bedroom apartment for sale in The Collonades, Liverpool, L3 — £675,000 • 3 bed • 3 bath • 2250 ft²
3 bedroom apartment for sale in Albert Dock, City Centre, L3 — £600,000 • 3 bed • 3 bath • 1776 ft²
3 bedroom apartment for sale in The Colonnades, Royal Albert Dock, Liverpool., L3 — £595,000 • 3 bed • 2 bath • 1848 ft²
2 bedroom apartment for sale in The Colonnades, Albert Dock, Liverpool, Merseyside, L3 — £300,000 • 2 bed • 2 bath • 2267 ft²
1 bedroom apartment for sale in The Colonnades, Liverpool, L3 — £275,000 • 1 bed • 1 bath • 738 ft²
1 bedroom apartment for sale in The Colonnades, Albert Dock, Liverpool, Merseyside, L3 — £250,000 • 1 bed • 1 bath • 900 ft²


















































































































