B98 8LY - Pub for sale in Beoley Road West, Redditch, B98

View on Property Piper

Pub for sale in Beoley Road West, Redditch, B98

Summary - The Shakespeare Arms The Shakespeare Arms Beoley Road West, Redditch B98 8LY

7 bed 3 bath Pub

Income-producing Victorian pub with planning permission — auction sale, buyer fees apply.
7 rented bedsitting rooms generating c.£42,000 per year
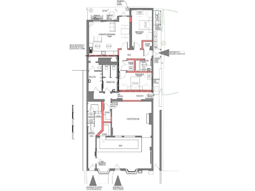
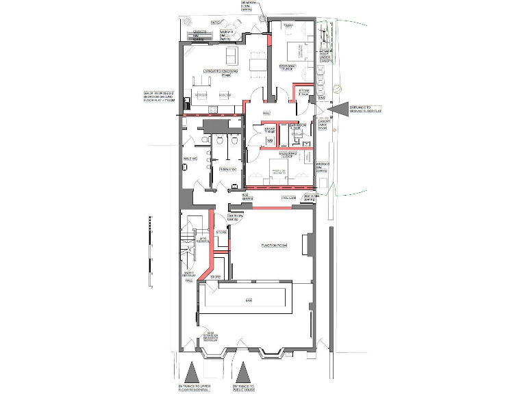
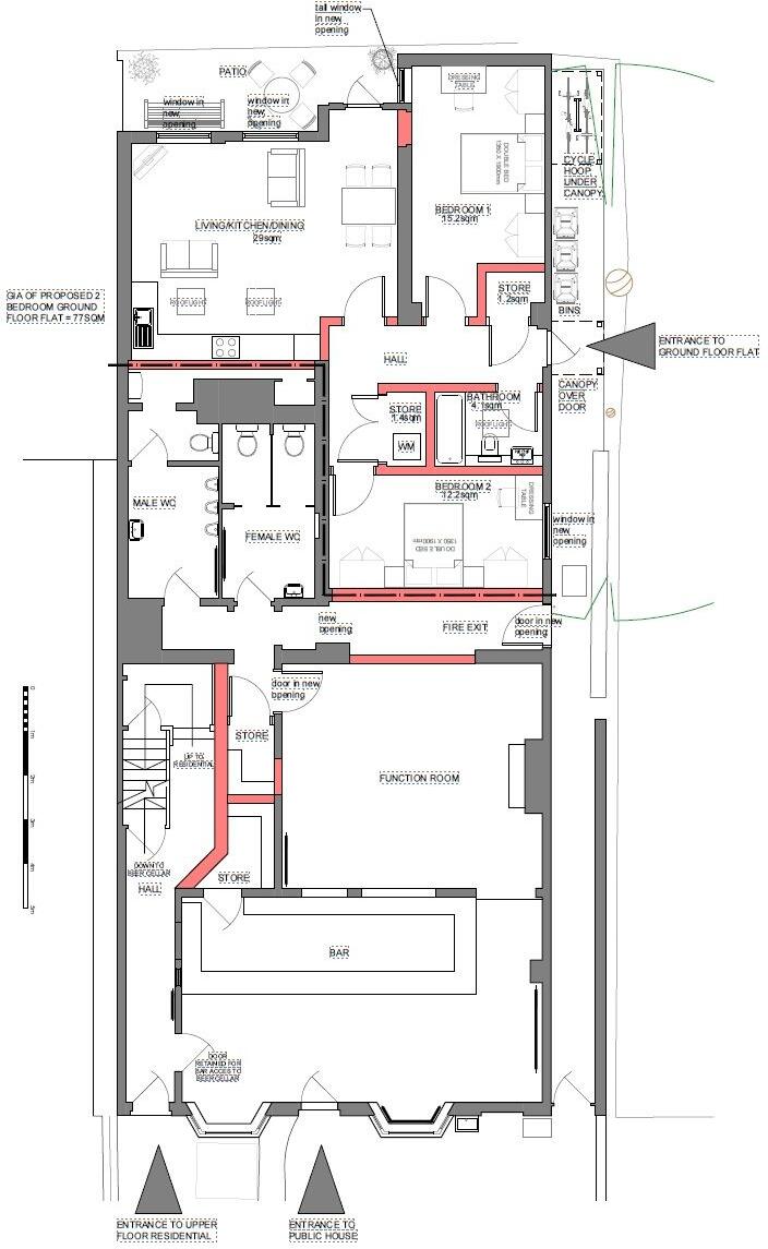
Planning consent for rear function room to become 2-bed apartment
Sold by modern auction; undisclosed reserve and buyer fees apply
Non-refundable reservation fee £10,000 + VAT on auction completion
Freehold advised but title not yet confirmed by vendor solicitor
Urban location: very high deprivation and above-average crime
Compact footprint c.739 sq ft; decent plot but small overall size
Requires full due diligence on condition, licensing and services
An unusual freehold opportunity: a detached Victorian public house with existing income and clear conversion potential. The property currently produces around £42,000 pa from seven rented bedsitting rooms and includes a public bar, snooker room, front seating terrace and three toilets. Planning consent has been granted to convert the rear function room into a two-bedroom apartment, increasing flexibility and potential yield.

This is a sale by modern auction. Bids are subject to an undisclosed reserve price and buyers must pay a non-refundable reservation fee (£10,000 plus VAT) in addition to the purchase price. Interested parties should allow the 56-day completion period set by the auction process and verify freehold title and all legal matters through their own solicitor.

The site offers a decent plot and a compact footprint (c.739 sq ft, approx. 13 rooms) suitable for an investor or developer prepared to manage refurbishment. The property sits in an urban, culturally mixed area with fast broadband and excellent mobile signal, but the locality shows very high deprivation and above-average crime levels—factors that affect lettings, licensing and repositioning costs.

Buyers should carry out thorough due diligence: confirm tenure, check building services and safety/licensing compliance, and inspect condition. The building’s Victorian character and planning consent give clear scope for conversion and value-add, but refurbishment, management of existing tenancies and local market realities will require upfront capital and active asset management.

Property Details

Image Descriptions

Floorplan Description

Rooms

Textual Property Features

Target Audience

AI Tags

Detected Visual Features

Nearby Schools

Nearest Bars And Restaurants

,,,,}

Nearest General Shops

,,}

Nearest Grocery shops

,,}

Nearest Supermarkets

,,}

Nearest Religious buildings

,,}

Nearest Medical buildings

,,,}

Nearest Airports

}

Nearest Leisure Facilities

,,,,}

Nearest Tourist attractions

,,}

Nearest Train stations

,,,,}

Nearest Bus stations and stops

,,,,}

Nearest Hotels

,,}

Tags

Local Market Stats

Similar Properties

Meta

High Res Images

Compatible Images

Low res Images

Thumbnails

Raw Images

High Res Floorplan Images

Compatible Floorplan Images

Low res Floorplan Images

FloorplanImages Thumbnail

Raw Floorplan Images