Freehold plot with full planning for a two-bed bungalow in a quiet, sought-after Waltham cul-de-sac..
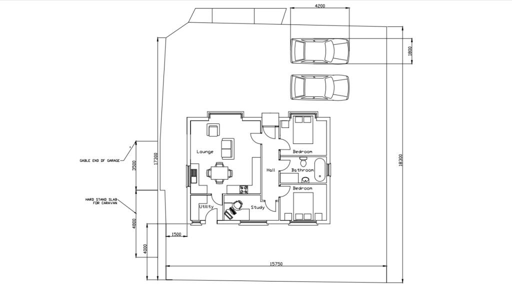
Full planning permission for a two-bedroom detached bungalow (DM/0851/22/REM)
Freehold large plot with mature trees and substantial garden space
Un-serviced plot — buyer responsible for utilities and groundworks
Access via quiet cul-de-sac (Laburnum Close) with garage parking provision
Fast broadband, average mobile signal; very low local crime
Sought-after, affluent area with good local schools and amenities
Requires budgeting for build costs and planning compliance during construction
This generous freehold plot in Laburnum Close offers a rare opportunity to build a two-bedroom detached bungalow in a sought-after Waltham location. Full planning permission (North East Lincolnshire reference DM/0851/22/REM) has been granted for a contemporary bungalow, so purchasers can progress quickly from purchase to build. The setting is a quiet cul-de-sac with mature trees and a large garden area, ideal for low-maintenance, single-storey living.
The plot is un-serviced, so buyers should budget for connection of utilities, groundworks and build costs. Access is straightforward from Laburnum Close and the permission includes provision for garage parking. The area has fast broadband, average mobile signal and very low crime, making it practical as a permanent home or a retirement move.
Local amenities and good schools are within easy reach, and the surrounding neighbourhood is established and affluent. Because the plot is a blank canvas, it suits buyers who want control over design and specification — particularly downsizers seeking a single-level home in a peaceful setting. Be aware that the purchaser will be responsible for all construction and service installations; obtain quotes before committing.
Plot for sale in The Drive, Waltham, Grimsby, Lincolnshire, DN37 — £275,000 • 1 bed • 1 bath • 350 ft²
Plot for sale in The Drive, Waltham, Grimsby, Lincolnshire, DN37 — £265,000 • 1 bed • 1 bath
3 bedroom detached bungalow for sale in Atkinson Lane, Waltham, DN37 — £187,500 • 3 bed • 1 bath • 1100 ft²
Plot for sale in Development Opportunity, Rear Of Grove Farm House, Station Road, New Waltham, Grimsby, DN36 — £399,999 • 1 bed • 1 bath
Plot for sale in Low Road, Hatcliffe, Grimsby, N. E. Lincolnshire, DN37 — £295,000 • 3 bed • 3 bath
Land for sale in Humberston Avenue, Humberston, Grimsby, DN36 — £140,000 • 1 bed • 1 bath


































