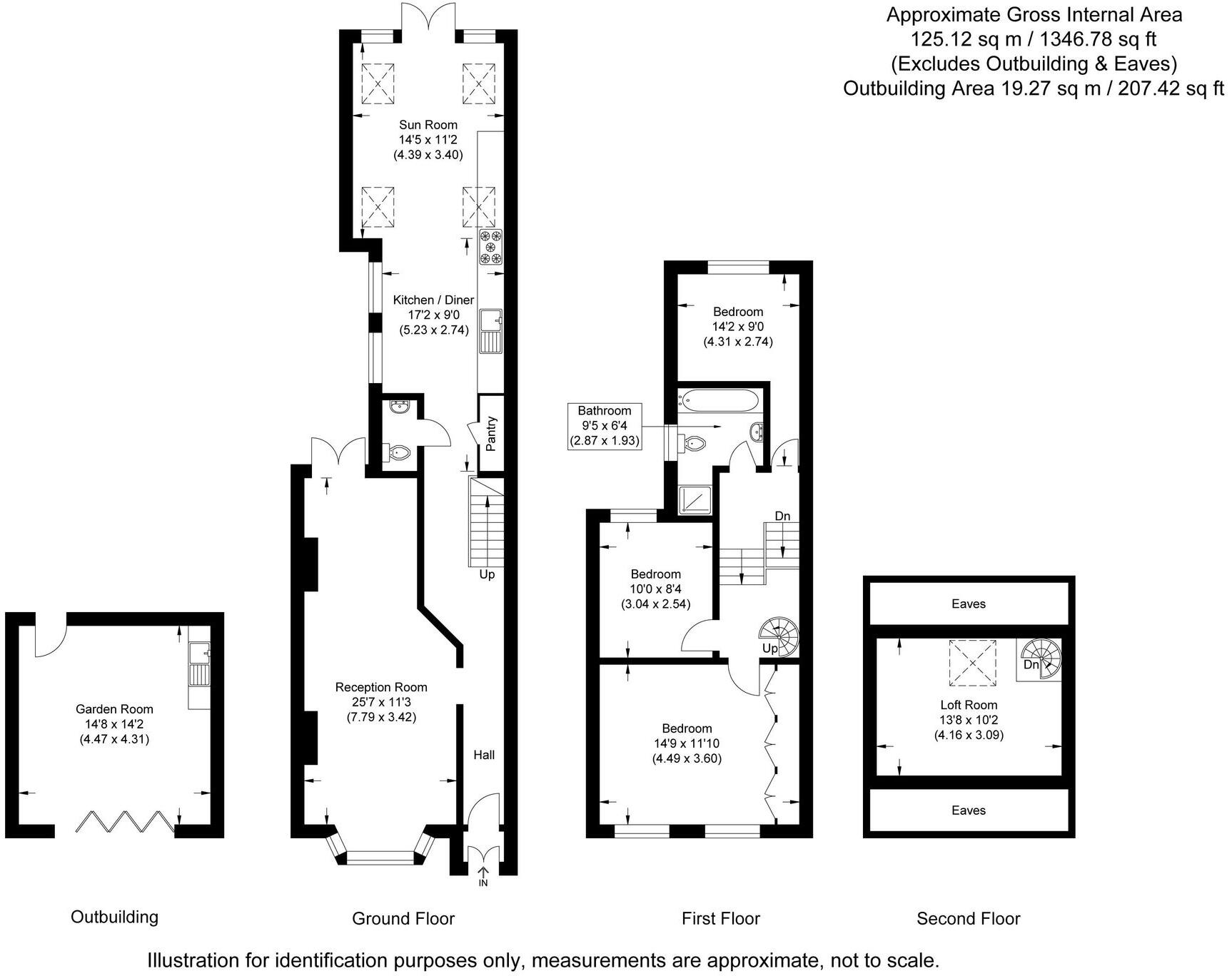
Three double bedrooms, garden room and loft potential in desirable East Molesey..
Three double bedrooms plus usable loft room
Impressive garden room with sink and electrics
Rear extension in place; loft offers further potential
Contemporary bathroom with separate shower
Ground-floor cloakroom for convenience
Sunny, low-maintenance but small garden plot
Single full bathroom may suit smaller families
Freehold; large overall size ~1,554 sq ft
This Victorian terraced home on Pemberton Road blends period character with contemporary updates across approximately 1,554 sq ft. The layout includes three double bedrooms plus a usable loft room, making it flexible for family life or a home office. Practical features such as a ground-floor cloakroom and a modern bathroom with separate shower increase everyday convenience.
A standout is the impressive garden room, fitted with a sink and electrics — ideal for entertaining, a hobby space, or flexible home-working. The property has already been extended to the rear and offers further potential to maximise loft space, subject to necessary consents, for additional living area or storage.
The sunny, low-maintenance garden is private and easy to manage, but the plot is small so outdoor space is compact rather than expansive. There is only one full bathroom, which may be a consideration for larger households. The property is freehold, in a very low-crime, affluent area with fast broadband and good local schools, and the vendor is suited for a smooth sale.
This house suits buyers who want a character-filled home with room to personalise and extend rather than a fully finished project. Its combination of Victorian detail, contemporary touches and clear extension potential make it attractive to families and buyers seeking long-term value in East Molesey.
4 bedroom house for sale in Pemberton Road, East Molesey, KT8 — £950,000 • 4 bed • 2 bath • 1501 ft²
4 bedroom terraced house for sale in Pemberton Terrace, East Molesey, KT8 — £800,000 • 4 bed • 2 bath • 1334 ft²
2 bedroom terraced house for sale in Dennis Road, East Molesey, KT8 — £625,000 • 2 bed • 1 bath • 687 ft²
3 bedroom semi-detached house for sale in Dennis Road, East Molesey, KT8 — £850,000 • 3 bed • 2 bath • 1065 ft²
2 bedroom semi-detached house for sale in Avern Road, West Molesey, KT8 — £599,950 • 2 bed • 1 bath • 950 ft²
3 bedroom semi-detached house for sale in Dennis Road, East Molesey, KT8 — £975,000 • 3 bed • 2 bath • 1503 ft²






















































































































