PH7 4DH - 2 bedroom park home for sale in South Bridgend, Crieff, PH7

View on Property Piper

2 bedroom park home for sale in South Bridgend, Crieff, PH7

Summary - 5B, SOUTH BRIDGEND PH7 4DH

2 bed 2 bath Park Home

Fully furnished 2-bed lodge with riverside deck — leasehold, 30 years remaining.
Riverside deck with attractive views over the River Earn
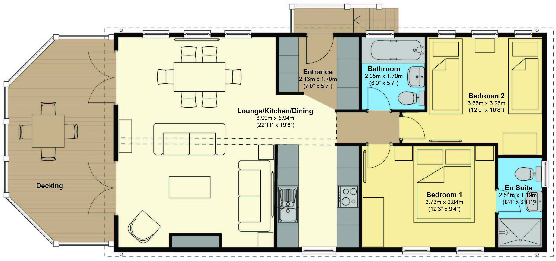
Set on the River Earn, this fully furnished 2-bedroom luxury park home offers bright, open-plan living with a riverside deck and year-round use. The lodge measures approximately 40ft by 20ft and includes double glazing, gas central heating, and built-in kitchen appliances — ready for immediate occupancy or holiday letting.

Both bedrooms are spacious and comfortably furnished, and the property includes a full bathroom and en-suite. Two sets of French doors open from the lounge/dining area onto a charming deck with river views, creating a relaxing spot for entertaining or quiet evenings. Off-street parking and maintained landscaping add low-effort outdoor appeal.

Buyers should note important ownership and running-cost considerations: the lodge is leasehold with 30 years remaining (lease end 26/06/2055) — many mortgage lenders may decline lending on this term. Annual service charges/ground rent are £4,314, which is above average, and broadband speeds are slow despite excellent mobile signal. There is no council tax liability.

This property suits someone seeking a low-maintenance riverside retreat, a holiday-base, or a downsizer wanting single-level living. The short lease and high ongoing charges make it essential to check finance options and long-term site rules before committing.

Property Details

Image Descriptions

Floorplan Description

Rooms

Textual Property Features

Target Audience

AI Tags

Detected Visual Features

Nearest Bars And Restaurants

,,,,}

Nearest General Shops

,,}

Nearest Grocery shops

,,}

Nearest Supermarkets

,,}

Nearest Religious buildings

,,}

Nearest Medical buildings

,,,}

Nearest Leisure Facilities

,,,,}

Nearest Tourist attractions

,,}

Nearest Train stations

,,,,}

Nearest Bus stations and stops

,,,,}

Nearest Hotels

,,}

Tags

Local Market Stats

AirBnB Data

Similar Properties

Meta

High Res Images

Compatible Images

Low res Images

Thumbnails

Raw Images

High Res Floorplan Images

Compatible Floorplan Images

Low res Floorplan Images

FloorplanImages Thumbnail

Raw Floorplan Images