Spacious family home with garden and parking near town amenities.
Close walk to Tring High Street and local amenities
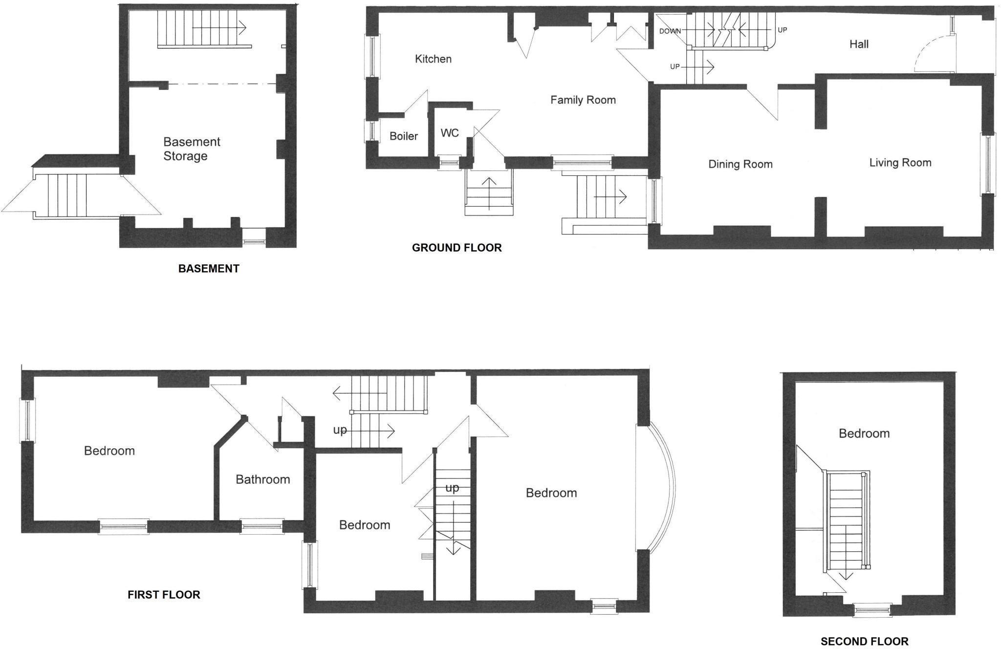
Set a short stroll from Tring High Street, this substantial period semi offers versatile four-storey family living with genuine scope to personalise. Period features and bay windows give character, while generous reception rooms provide clear zones for day-to-day family life and entertaining.
Accommodation includes three reception rooms, a kitchen-adjacent family room, and four well-proportioned bedrooms across the upper floors. A useful basement adds excellent storage or conversion potential, and the private rear garden plus rare off-road parking close to the town centre are significant practical benefits. The sale is offered with no onward chain for a quicker move.
Practical considerations are straightforward: there is a single family bathroom, double glazing installed before 2002 and solid brick walls that are likely uninsulated. These factors mean modest updating—insulation, glazing, and bathroom improvement—would both modernise the home and improve running costs. Council tax is above average for the area.
For families seeking space, flexible layout and a convenient town-centre setting, this property delivers immediate usability with clear potential to increase comfort and value through straightforward sympathetic refurbishment. Early viewing recommended to appreciate the scale and setting.
3 bedroom terraced house for sale in Chapel Street, Tring, HP23 — £495,000 • 3 bed • 1 bath • 1141 ft²
4 bedroom semi-detached house for sale in Goldfield Road, Tring, HP23 — £690,000 • 4 bed • 2 bath • 1325 ft²
4 bedroom detached house for sale in Grove Gardens, Tring, HP23 — £875,000 • 4 bed • 2 bath • 1539 ft²
2 bedroom semi-detached house for sale in Mill Gardens, Tring, HP23 — £425,000 • 2 bed • 1 bath • 793 ft²
4 bedroom semi-detached house for sale in Windmill Way, Tring, HP23 — £895,000 • 4 bed • 2 bath • 1857 ft²
4 bedroom semi-detached house for sale in Tring, HP23 — £700,000 • 4 bed • 2 bath • 1367 ft²


















































































































































