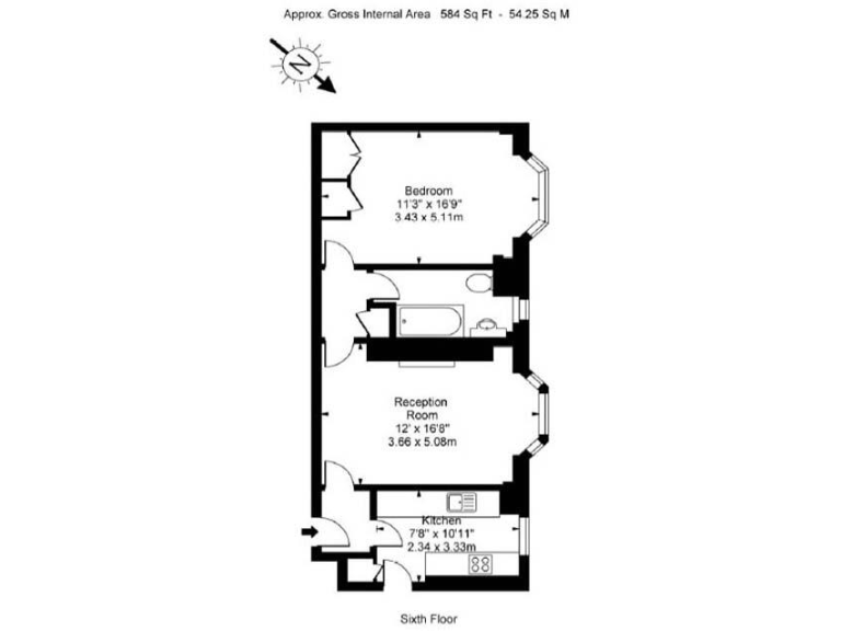
**Standout Features:**
- One double bedroom and one bathroom in a well-regarded block
- Bright reception room with modern bay windows
- Fully fitted kitchen with functional layout
- Located in prime Chelsea with 24-hour porter and lift
- Approx. 584 sq ft (54 sq m) of living space
**Notable Concerns:**
- Above-average service charge of £7,188
- Higher council tax band F
- Average-sized rooms typical for urban apartments
- Crime rate above average in the area
Nestled in the heart of Chelsea, this well-appointed one-bedroom flat offers an urban haven with modern elegance. Situated on the fifth floor of Cranmer Court, residents benefit from 24/7 security and a lift, ensuring both convenience and peace of mind. The expansive bay windows in the reception room flood the space with natural light and offer glimpses of the vibrant cityscape. The thoughtful layout maximizes the 584 sq ft, providing a comfortable living environment suitable for young professionals or couples seeking a chic city lifestyle.
While positioned in a lively area with quick access to amenities—ranging from dining spots to fitness centers—potential buyers should consider the property's service charge and council tax. This exclusive Chelsea flat presents an inviting opportunity for those who appreciate urban living with a touch of sophistication. With outstanding schools just around the corner and excellent transport links nearby, it’s an ideal choice for future-minded buyers wishing to enjoy the essence of London living. Don't miss out on this unique gem; properties in this coveted area move quickly!
2 bedroom flat for sale in Cranmer Court, Whiteheads Grove, Chelsea, London, SW3 — £1,345,000 • 2 bed • 1 bath • 829 ft²
2 bedroom flat for sale in Cranmer Court, Whiteheads Grove, Chelsea, London, SW3 — £1,750,000 • 2 bed • 2 bath • 958 ft²
1 bedroom apartment for sale in Cranmer Court, Chelsea, SW3 — £995,000 • 1 bed • 1 bath • 623 ft²
1 bedroom flat for sale in Cranmer Court, Whiteheads Grove, Chelsea, London, SW3 — £1,100,000 • 1 bed • 1 bath • 560 ft²
2 bedroom flat for sale in Whiteheads Grove, London, SW3 — £895,000 • 2 bed • 1 bath • 950 ft²
1 bedroom flat for sale in Whiteheads Grove, Chelsea, SW3 — £500,000 • 1 bed • 1 bath • 385 ft²










































