Large restored country estate ideal for multi‑generational living or holiday lets.
Four individual homes totalling 13 bedrooms across the estate
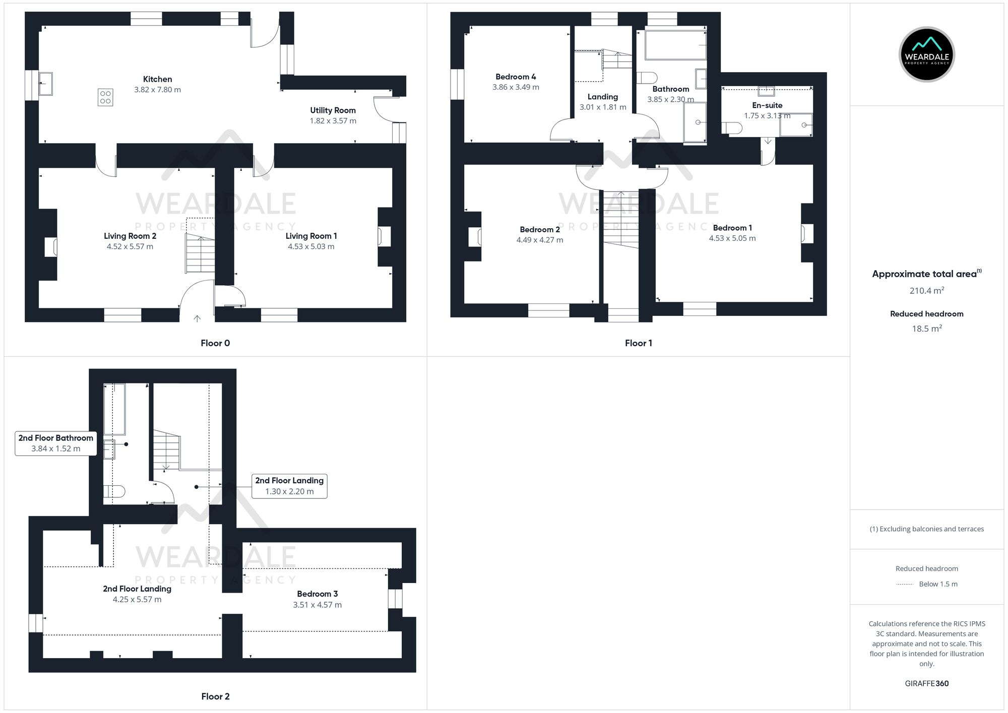
Eliza Farm is a sympathetically restored 9.6-acre estate on the edge of the North Pennines, comprising four individual homes that together provide 13 bedrooms and extensive outbuildings. The buildings were refurbished to a high standard, retaining character features such as exposed stone and beams while delivering modern kitchens and bathrooms. The site is well suited to multigenerational living or a premium holiday-let operation, with private gardens, two wood-fired hot tubs and wide outdoor parking.
Externally the estate offers 8.5 acres of flat, easily managed grazing land, a 30m × 10m block-built barn and a quadruple garage with indoor parking for up to six vehicles. The location is rural and peaceful, close to Derwent Reservoir and with good road links to Durham and Newcastle for commuting. Broadband speeds are very slow despite excellent mobile signal, which should be considered if internet-dependent use is planned.
While many buildings are newly renovated and ready to occupy, any significant change of use or expansion (for example developing a multiple-dwelling holiday-let business) would require the appropriate planning consents. The hamlet setting brings low crime and privacy but limited local services; buyers should budget for ongoing estate maintenance and the practical management of multiple dwellings on a single freehold.
4 bedroom farm house for sale in The Old Stables, Eliza Farm, DH8 — £850,000 • 4 bed • 2 bath • 572 ft²
4 bedroom detached house for sale in Eliza Farm House, Eliza Farm, DH8 — £1,300,000 • 4 bed • 3 bath • 2265 ft²
Equestrian facility for sale in New House Farm, Ingleton, Darlington, DL2 — £950,000 • 5 bed • 5 bath • 4123 ft²
6 bedroom detached house for sale in Stanhope, DL13 — £1,800,000 • 6 bed • 6 bath • 4036 ft²
4 bedroom country house for sale in Hole House Farm, Eastgate, Bishop Auckland, DL13 — £1,250,000 • 4 bed • 3 bath • 2088 ft²
4 bedroom country house for sale in Glenholme Farm, Hamsterley, County Durham, DL13 — £1,200,000 • 4 bed • 3 bath • 2989 ft²


















































































































































































































































































































