BS31 3EJ - 3 bedroom house for sale in High Street, Saltford, Bristol,…

View on Property Piper

3 bedroom house for sale in High Street, Saltford, Bristol, BS31

Summary - 55 HIGH STREET SALTFORD BRISTOL BS31 3EJ

3 bed 1 bath House

**Standout Features:**

- Charming three-bedroom house in a picturesque village setting
- Spacious living area with a wood burner and characterful details
- Generous kitchen diner ideal for social gatherings
- Beautiful views from the second-floor bedroom
- Private, well-maintained garden with patio, entertainment deck, and bar
- Proximity to the Bristol to Bath cycle path
- Freehold tenure and chain-free sale

**Potential Downsides:**

- Some maintenance required for the garden
- Property constructed before 1900, minor updates may be necessary

Nestled in the heart of the quaint village of Saltford, this charming three-bedroom house combines historic character with modern comforts, making it an ideal home for families and first-time buyers alike. The spacious living area, highlighted by a cozy wood burner, invites relaxation and entertaining, while the large kitchen diner is perfect for family gatherings. Each bedroom offers peaceful retreats, and the second-floor room features stunning views. The outdoor space is a true gem with a private garden that boasts a patio and a raised entertainment deck, complete with a bar, perfect for summer gatherings.

Situated conveniently near the Bristol to Bath cycle path, you'll enjoy both tranquillity and access to local amenities. With its unique charm and potential for personalization, this property represents a rare opportunity in a sought-after area. Don’t miss out on this lifestyle choice that combines beauty, comfort, and future potential.

Property Details

Brochure Descriptions

Image Descriptions

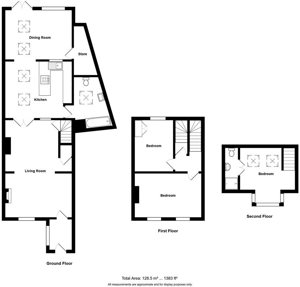
Floorplan Description

Rooms

Textual Property Features

Detected Visual Features

EPC Details

Nearby Schools

Nearest Bars And Restaurants

,,,,}

Nearest General Shops

,,}

Nearest Grocery shops

,,}

Nearest Supermarkets

,,}

Nearest Religious buildings

,,}

Nearest Medical buildings

,,,}

Nearest Airports

}

Nearest Leisure Facilities

,,,,}

Nearest Tourist attractions

,,}

Nearest Train stations

,,,,}

Nearest Bus stations and stops

,,,,}

Nearest Hotels

,,}

Tags

Local Market Stats

AirBnB Data

Similar Properties

Meta

High Res Images

Compatible Images

Low res Images

Thumbnails

Raw Images

High Res Floorplan Images

Compatible Floorplan Images

Low res Floorplan Images

FloorplanImages Thumbnail

Raw Floorplan Images