Period charm meets a huge garden and extended kitchen, moments from Wanstead High Street..
- Large rear garden with raised patio and separate storage shed
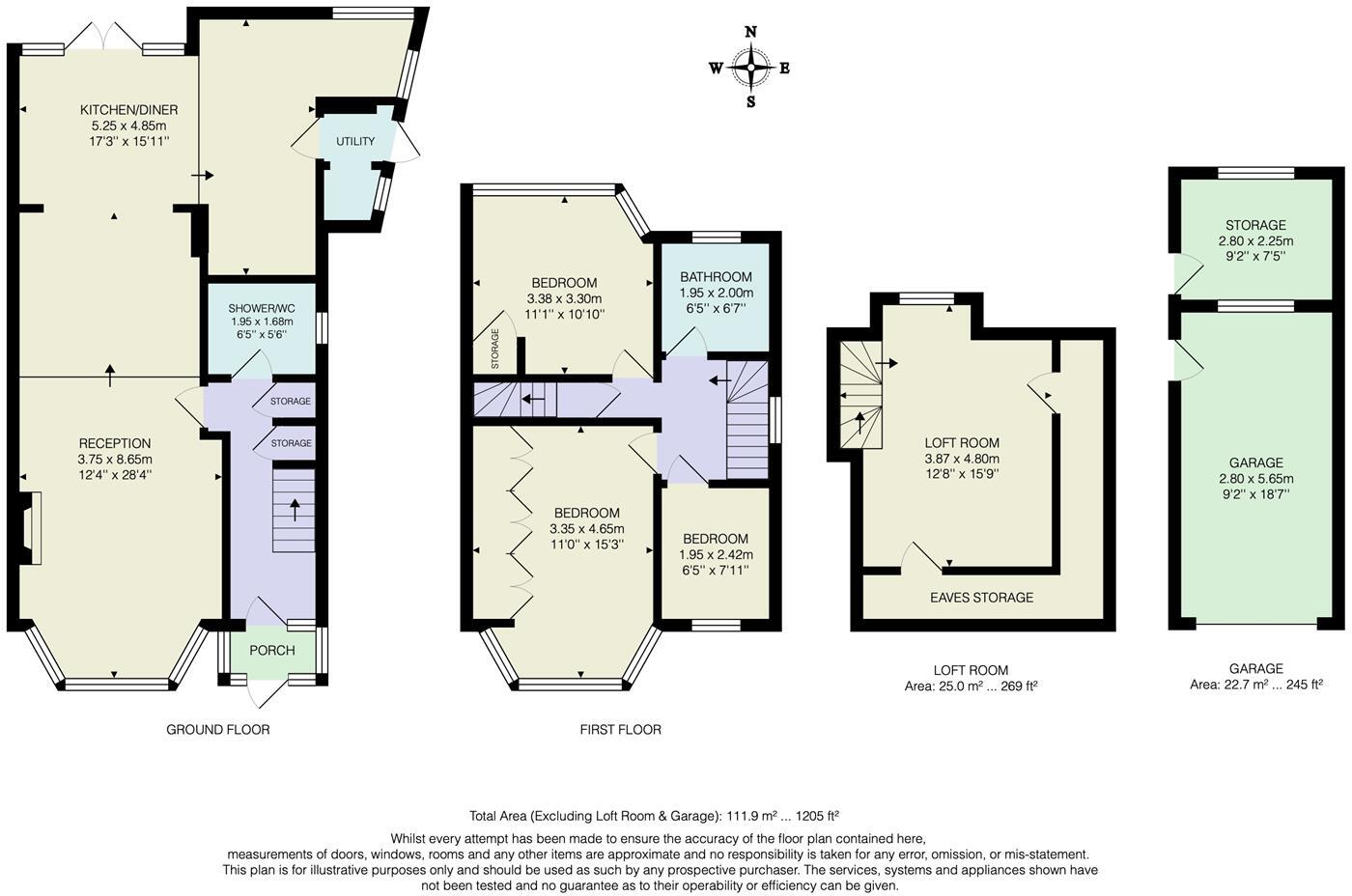
- Extended kitchen-diner with island and utility room
- Garage plus wide driveway for off-street parking
- Loft room provides flexible fourth bedroom or office
- Solid brick construction; walls assumed without insulation
- Double glazing installed pre-2002; potential window upgrades
- Two bathrooms; ground-floor shower room and upstairs family bath
- Council tax banded as expensive
This semi-detached 3-bedroom family home in Wanstead combines period charm with contemporary living. The property’s extended kitchen-diner and open-plan reception create a bright, sociable ground floor ideal for family life and entertaining. A substantial rear garden, garage, off-street parking and separate storage shed add practical outdoor space and storage options.
Upstairs are two double bedrooms with fitted wardrobes, a third single room to the front and a loft room currently used as a fourth bedroom with eaves storage — flexible space for a home office, playroom or guest room. Two bathrooms and a useful utility room off the kitchen increase everyday convenience for a busy household.
Key practical points: the house was built c.1900–1929 with solid brick walls (no added wall insulation assumed) and double glazing installed before 2002. Heating is mains gas via boiler and radiators. These details mean there is scope for energy-efficiency improvements and selective updating for long-term running-cost savings. Council tax is noted as expensive.
Location is a strong selling point: a short walk to Wanstead High Street’s shops and cafés, local green spaces including Leyton Flats and Wanstead Park, and around 15 minutes’ walk to Snaresbrook station with rapid Central line links into central London. The neighbourhood is affluent and family-oriented, with several well-rated primary and secondary schools nearby.
4 bedroom semi-detached house for sale in Lorne Gardens, Wanstead, E11 — £900,000 • 4 bed • 2 bath • 1726 ft²
4 bedroom house for sale in Cowley Road, Wanstead, E11 — £900,000 • 4 bed • 2 bath • 1202 ft²
2 bedroom semi-detached house for sale in Halstead Road, Wanstead, E11 — £850,000 • 2 bed • 1 bath • 894 ft²
4 bedroom house for sale in Woodcote Road, Wanstead, E11 — £1,150,000 • 4 bed • 3 bath • 1761 ft²
3 bedroom terraced house for sale in Elmcroft Avenue, Wanstead, E11 — £850,000 • 3 bed • 1 bath • 1130 ft²
3 bedroom terraced house for sale in Rectory Crescent, Wanstead, E11 — £695,000 • 3 bed • 1 bath • 983 ft²






























































































































