Compact two-bedroom city base with allocated parking and long lease.
Bright open-plan living and kitchen with large windows
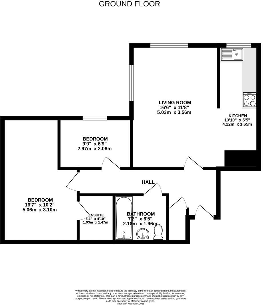
A bright first-floor two-bedroom apartment in Trinity Wharf, presented as a practical city-centre home ideal for first-time buyers or investors seeking a low-maintenance base. The open-plan living and kitchen area benefits from generous glazing and neutral finishes, while the principal bedroom includes a private en-suite for everyday convenience.
The development offers an allocated off-street parking space and a paved communal courtyard, useful extras in a central location. The flat is modern in build (circa 2003–2006) with double glazing and a long lease (229 years), giving security for owners and investors alike. Service charge and ground rent are modest but recurring costs to allow for communal upkeep.
Buyers should note material local-market facts: the immediate area is a cosmopolitan, student-dominated neighbourhood with comparatively high crime levels and very high area deprivation. The property also sits in a medium flood-risk zone and uses electric room heaters rather than mains gas central heating — factors to consider for insurance, running costs and future resilience.
Overall this is a compact, sensible city apartment that suits someone wanting central access, good connectivity and low upkeep. It will particularly appeal to first-time buyers wanting a ready-made home or investors targeting rental demand from students and city professionals, provided they accept the locality considerations and ongoing service costs.
2 bedroom apartment for sale in Trinity Wharf, Hull, HU1 — £110,000 • 2 bed • 2 bath • 862 ft²
2 bedroom apartment for sale in High Street, Hull, East Yorkshire, HU1 — £95,000 • 2 bed • 2 bath • 900 ft²
2 bedroom apartment for sale in Trinity Wharf, 52-58 High Street, Hull, East Riding of Yorkshire, HU1 1QE, HU1 — £110,000 • 2 bed • 2 bath • 805 ft²
2 bedroom apartment for sale in Liberty Lane, Hull, HU1 — £140,000 • 2 bed • 2 bath • 786 ft²
2 bedroom flat for sale in Wincolmlee, Hull, HU2 — £90,000 • 2 bed • 2 bath • 624 ft²
2 bedroom flat for sale in Trinity Wharf, Hull, HU1 1QE, HU1 — £65,000 • 2 bed • 2 bath • 800 ft²






























































