Two-bedroom single-storey living minutes from Blue Flag beach.
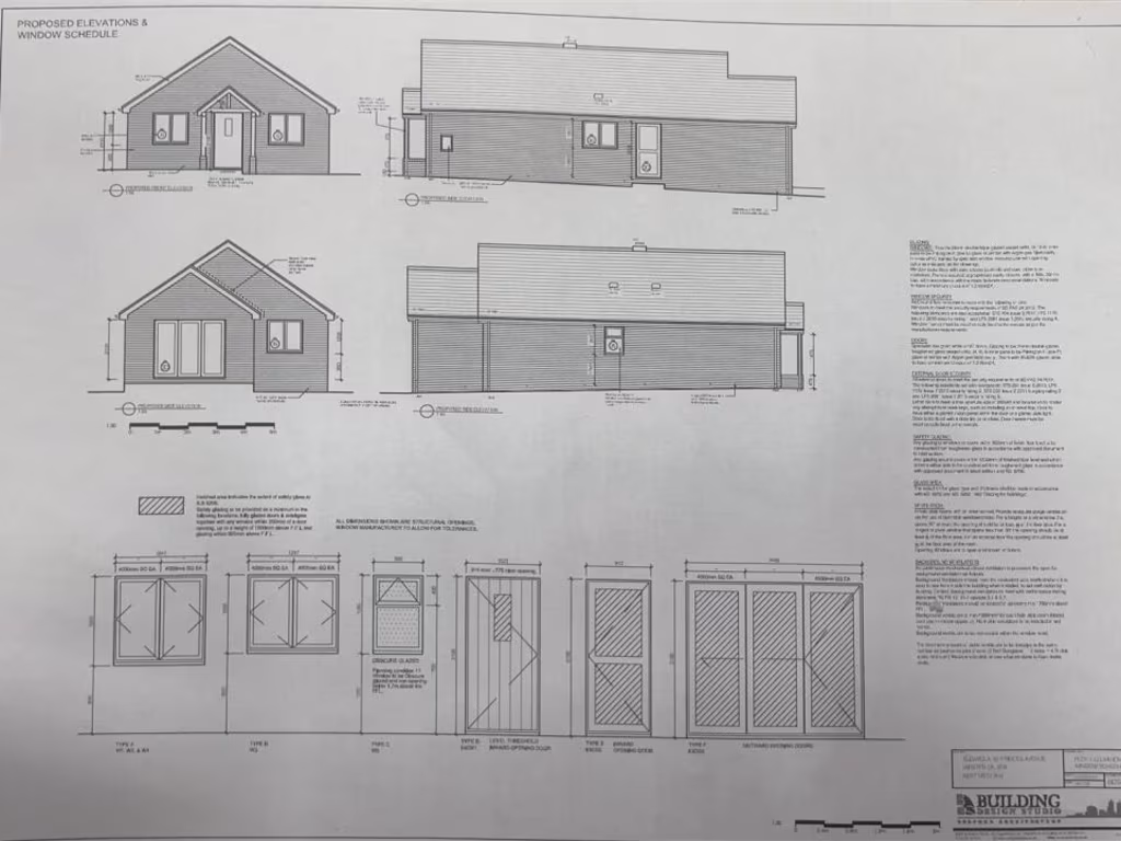
New-build 2 bedroom detached bungalow, completion November 2025
A newly built two-bedroom detached bungalow in Minster on Sea, designed for easy single-storey living close to the coast. The layout includes two double bedrooms, a master en suite and generous living space, all finished to contemporary standards with modern glazing to maximise light. The property is due for completion November 2025 and comes with a 10-year build warranty and freehold tenure.
The location is a major draw: a three-minute walk to the Blue Flag beach and a short stroll to village shops and basic amenities, offering a quiet seaside lifestyle. The plot is described as large for a bungalow and the scheme indicates parking/garage provision, useful for owners with vehicles or visitors.
Buyers should note the property is currently a new build shown as architectural plans and brochure visuals. The images and descriptions are indicative—exact finishes, landscaping and external details may vary from the brochure. The footprint is modest, making the home particularly suitable for downsizers or buyers wanting low-maintenance single-storey accommodation rather than those needing extensive internal space.
With very low local crime, fast broadband and strong mobile signal, the home combines coastal calm with modern connectivity. This is a straightforward, turn-key option for someone seeking a comfortable seaside bungalow with new-build assurances, provided they are comfortable buying a property before physical completion.
2 bedroom bungalow for sale in Willow Close, Chequers Road, Minster on Sea, Sheerness, ME12 — £375,000 • 2 bed • 2 bath • 724 ft²
3 bedroom bungalow for sale in Augustine Road, Minster, ME12 — £360,000 • 3 bed • 1 bath • 1185 ft²
2 bedroom bungalow for sale in Seathorpe Avenue, Minster on Sea, Sheerness, Kent, ME12 — £290,000 • 2 bed • 1 bath • 1409 ft²
3 bedroom detached bungalow for sale in Darlington Drive, Minster On Sea, Sheerness, ME12 — £350,000 • 3 bed • 1 bath • 1103 ft²
3 bedroom bungalow for sale in Southsea Avenue, Minster, ME12 — £430,000 • 3 bed • 1 bath • 1379 ft²
3 bedroom bungalow for sale in Willow Close, Chequers Road, Minster on Sea, Sheerness, ME12 — £425,000 • 3 bed • 2 bath • 861 ft²






