Large four-bedroom home with big garden and easy Bath commute.
Spacious living room with wood‑burning stove and conservatory garden outlook
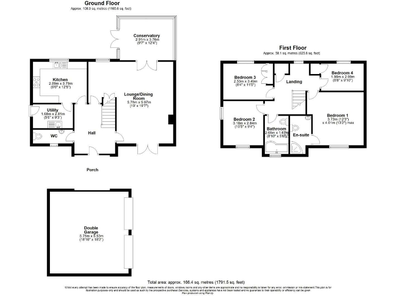
Set on a large private plot in a quiet cul‑de‑sac, this four‑bedroom detached house offers generous family living and easy commuting to the City of Bath. The ground floor flows from a roomy living area with wood‑burning stove into a substantial conservatory that overlooks an enclosed, mature garden — a comfortable, light‑filled space for family life and year‑round entertaining.
Practical features include a double garage, driveway parking, utility room, cloakroom and an en‑suite to the principal bedroom. Gas boiler central heating, UPVC double glazing and an Energy Rating of C give better running costs than many older houses. The property is freehold and sits in a very affluent area with low crime and good local schools nearby — suited to growing families wanting space and local convenience.
The house was built in the 1980s, so while it is well presented throughout, some internal fittings and finishes may reflect that era and could benefit from modern updating to suit contemporary tastes. Council Tax is band E, which is above average for some buyers. There is no flood risk and the home benefits from fast broadband and excellent mobile signal for remote working or streaming.
Overall, this is a roomy, well‑located family home with sizeable outdoor space and practical parking — attractive for buyers seeking comfortable, move‑in accommodation with clear potential to personalise over time.
4 bedroom detached house for sale in Brunel Way, Frome, BA11 — £575,000 • 4 bed • 3 bath
4 bedroom detached house for sale in Ivy Walk, Midsomer Norton, Radstock, BA3 — £575,000 • 4 bed • 2 bath • 2305 ft²
4 bedroom detached house for sale in Bluebell Rise, Midsomer Norton, BA3 — £485,000 • 4 bed • 2 bath • 1500 ft²
4 bedroom detached house for sale in Bath Old Road, Radstock, BA3 — £825,000 • 4 bed • 3 bath • 2151 ft²
4 bedroom detached house for sale in Church Hill, Writhlington, Radstock, BA3 — £650,000 • 4 bed • 3 bath • 1962 ft²
4 bedroom detached house for sale in Parkway, Midsomer Norton, Radstock, BA3 — £625,000 • 4 bed • 3 bath • 1810 ft²


































































































































