BN27 1EF - 4 bedroom detached house for sale in Conquest Drive, Hailsh…

View on Property Piper

4 bedroom detached house for sale in Conquest Drive, Hailsham, East Sussex, BN27

Summary - Conquest Drive, Hailsham, East Sussex, BN27 BN27 1EF

4 bed 2 bath Detached

Modern, chain-free four-bedroom home with double garage and low-maintenance garden.
Chain free four-bedroom detached house on corner plot
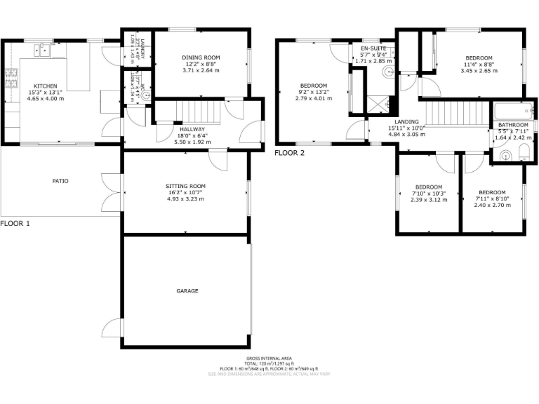
A well-proportioned, chain-free four-bedroom detached family home on a corner plot in North Hailsham. Built c.2007–2011, the house feels modern and well maintained, with neutral decor, double glazing and gas central heating throughout. The ground floor offers a double-aspect living room, separate dining room, a fitted kitchen with utility area and direct access to a low-maintenance patio garden — practical for family life and easy upkeep.

Internal layout suits families who value separate reception spaces and storage: four first-floor bedrooms (one with en-suite) plus a family bathroom give flexible sleeping arrangements, while the integral double garage and private driveway add secure parking and extra storage. Broadband speeds are fast and mobile signal is excellent, supporting home working and connected family routines.

Location strengths include nearby primary schools rated Good, an affluent local area and no flood risk. Notable negatives to factor in: council tax is above average and one nearby secondary school is rated Inadequate. The rear garden is low-maintenance and modest in size rather than large — good for convenience but limiting if you want extensive outdoor space. Overall this is a sensible, modern family home that will appeal to buyers wanting ready-to-live-in accommodation with straightforward running costs and secure parking.

Property Details

Brochure Descriptions

Image Descriptions

Floorplan Description

Rooms

Textual Property Features

Target Audience

AI Tags

Detected Visual Features

EPC Details

Nearby Schools

Nearest Bars And Restaurants

,,,,}

Nearest General Shops

,,}

Nearest Grocery shops

,,}

Nearest Supermarkets

,,}

Nearest Religious buildings

,,}

Nearest Medical buildings

,,,}

Nearest Leisure Facilities

,,,,}

Nearest Tourist attractions

,,}

Nearest Train stations

,,,,}

Nearest Bus stations and stops

,,,,}

Nearest Hotels

,,}

Tags

Local Market Stats

AirBnB Data

Similar Properties

Meta

High Res Images

Compatible Images

Low res Images

Thumbnails

Raw Images

High Res Floorplan Images

Compatible Floorplan Images

Low res Floorplan Images

FloorplanImages Thumbnail

Raw Floorplan Images