Bright family house with garden, park access and strong transport connections.
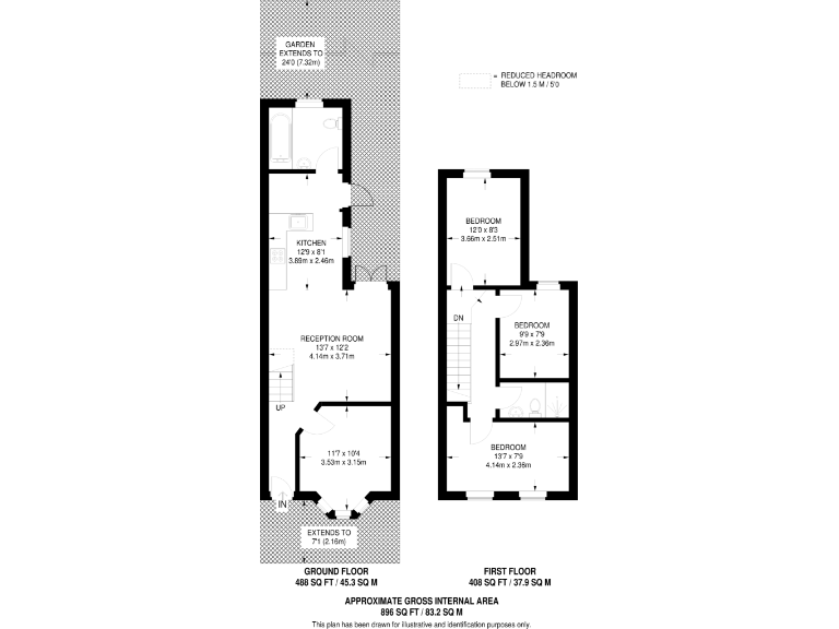
Three bedrooms over two floors
Private rear garden, small plot
Freehold; 896 sq ft total internal area
Modern kitchen, double glazing fitted post-2002
Single bathroom only
Solid brick Victorian walls; likely no cavity insulation
Excellent mobile signal and fast broadband
Close to Plashet Park, stations and highly rated schools
This Victorian mid-terrace offers three bedrooms across two floors with well-proportioned rooms and a private rear garden. Positioned moments from Plashet Park and close to Forest Gate and Stratford amenities, it suits families or first-time buyers who prioritise outdoor space and good transport links.
The property is freehold and extends to about 896 sq ft, with a modern-style kitchen, double glazing fitted after 2002, mains gas central heating and fast broadband and excellent mobile signal. Nearby schools include several highly rated options, and Woodgrange Park and East Ham stations are within easy reach.
Buyers should note the single bathroom and compact plot size, and that the property is a solid-brick Victorian build with assumed no wall insulation — there may be scope and cost needed for thermal upgrades. The local area scores as deprived, so long-term value will depend on how buyers invest in improvements.
Overall this home offers immediate practical living with clear potential to add value through targeted refurbishment. It will appeal to those seeking a characterful terrace near parks and transport, willing to update for comfort and energy efficiency.
 3 bedroom house for sale in Portway, Stratford, London, E15 — £580,000 • 3 bed • 2 bath • 1110 ft²
 3 bedroom house for sale in Portway, Stratford, London, E15 — £580,000 • 3 bed • 2 bath • 1110 ft² 3 bedroom end of terrace house for sale in RECTORY ROAD, Manor Park, London, E12 — £480,000 • 3 bed • 2 bath • 1172 ft²
 3 bedroom end of terrace house for sale in RECTORY ROAD, Manor Park, London, E12 — £480,000 • 3 bed • 2 bath • 1172 ft² 3 bedroom semi-detached house for sale in Worcester Road, Manor Park, London, E12 — £450,000 • 3 bed • 1 bath • 642 ft²
 3 bedroom semi-detached house for sale in Worcester Road, Manor Park, London, E12 — £450,000 • 3 bed • 1 bath • 642 ft² 3 bedroom terraced house for sale in Reginald Road, London, E7 — £700,000 • 3 bed • 1 bath • 1594 ft²
 3 bedroom terraced house for sale in Reginald Road, London, E7 — £700,000 • 3 bed • 1 bath • 1594 ft² 3 bedroom terraced house for sale in South Esk Road, Forest Gate, E7 — £550,000 • 3 bed • 2 bath • 1800 ft²
 3 bedroom terraced house for sale in South Esk Road, Forest Gate, E7 — £550,000 • 3 bed • 2 bath • 1800 ft² 3 bedroom end of terrace house for sale in Dacre Road, Plaistow, London, E13 — £550,000 • 3 bed • 1 bath • 1546 ft²
 3 bedroom end of terrace house for sale in Dacre Road, Plaistow, London, E13 — £550,000 • 3 bed • 1 bath • 1546 ft²


















































































