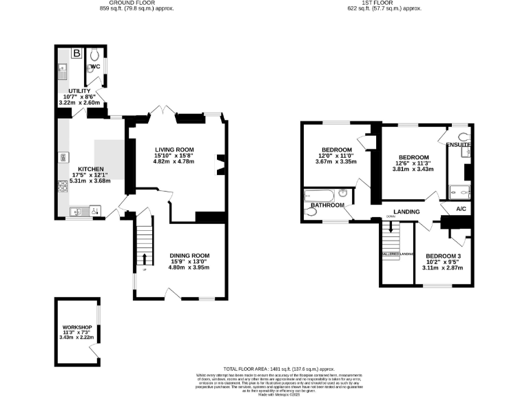
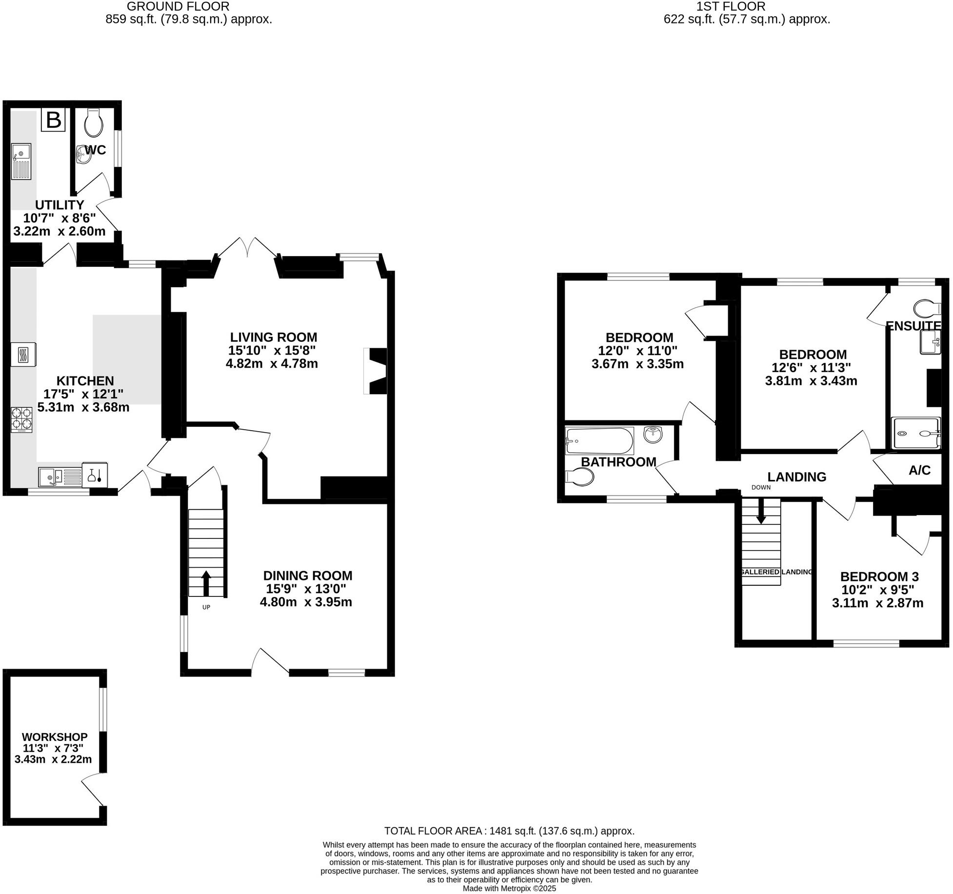
Characterful three-bedroom cottage with workshop and parking in tranquil Polden Hills village..
- Converted former stable with exposed beams and oak doors
- Three double bedrooms; principal bedroom with modern en suite
- Contemporary kitchen with island and integrated appliances
- Spacious living and dining rooms with period fireplace
- Enclosed, low-maintenance rear garden (mainly gravel and patio)
- Stone-built workshop, log store and parking for three cars
- Freehold, no flood risk; total size approx. 1,481 sq ft
- Average mobile and broadband coverage may limit remote working
Nutbeam Cottage is a thoughtfully converted former stable in the heart of Cossington, combining rural character with contemporary comforts. Exposed beams, oak doors and quality floor coverings sit alongside a modern shaker-style kitchen with island and integrated appliances, creating a home that feels both warm and practical. The principal bedroom includes a modern en suite and two further double bedrooms offer built-in wardrobes — suitable for family life or flexible home working.
Outside, the property benefits from private off-street parking for three vehicles, a stone-built workshop and a low-maintenance enclosed rear garden laid mainly to gravel and paved patio. The plot is a decent size overall, but the rear garden is designed for ease rather than extensive gardening. Broadband and mobile signals are described as average, which may affect those needing robust remote-working connectivity.
Positioned in a sought-after Polden Hill village, the cottage sits close to village amenities, countryside walks and good road links (M5 Junction 23 about 4 miles). Offered freehold with no flood risk, Nutbeam Cottage will particularly suit families seeking characterful, move-in-ready accommodation in a quiet rural setting, or buyers looking for a comfortable, low-upkeep countryside base.
4 bedroom detached house for sale in Trivetts Way, Cossington, TA7 — £349,950 • 4 bed • 2 bath • 1240 ft²
3 bedroom semi-detached house for sale in High Street, TA11 — £500,000 • 3 bed • 1 bath • 1751 ft²
3 bedroom detached house for sale in Manor Road, Cossington, Nr. Bridgwater, TA7 — £339,950 • 3 bed • 1 bath • 1098 ft²
3 bedroom cottage for sale in Washford, TA23 — £335,000 • 3 bed • 1 bath • 1600 ft²
3 bedroom semi-detached house for sale in Knutscroft Lane, Thurloxton, Taunton, TA2 — £350,000 • 3 bed • 2 bath • 649 ft²
5 bedroom detached house for sale in Manor Road, Cossington, Bridgwater, Somerset, TA7 — £650,000 • 5 bed • 2 bath • 2640 ft²


















































































