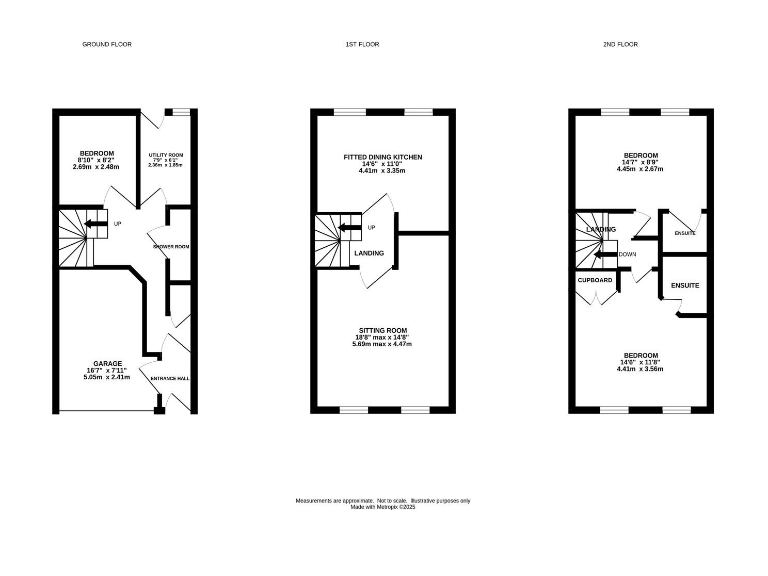
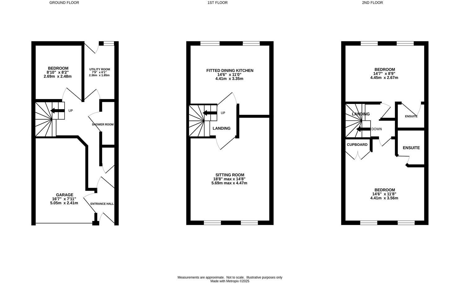
Quiet end-mews townhouse with garage, parking and three bathrooms..
Chain-free three-storey end mews with flexible three-bedroom layout
Two/three-car driveway plus single integral garage with internal access
Three bath/shower rooms including two en-suites, useful for families
Enclosed rear garden overlooking communal green space to the side
Average internal size circa 848 sq ft — modest living space
Leasehold tenure — check remaining term and service charges
Good local schools, very low crime, convenient commuter links
Average broadband speeds; gas central heating and double glazing
This three-storey end mews house offers practical family living close to Whaley Bridge town centre and commuter links. Bright reception spaces and a generous living/dining kitchen make daily life easy, while two double bedrooms with en-suites and a ground-floor bedroom/office give flexible sleeping and working arrangements.
Externally the property benefits from driveway parking for two to three cars, an integral single garage with internal access, and an enclosed rear garden that backs onto communal green space. The position at the end of a quiet cul-de-sac adds privacy and a feeling of space within the small development.
Built in the early 1990s and presented in good order, the house has gas central heating, double glazing and useful loft storage. Practical nearby amenities include good primary and secondary schools, shops, cafés, canal-side walks and rail/bus links towards Manchester.
Notable points to consider: the home is leasehold, the overall internal area is modest (approximately 848 sq ft), and broadband speeds are average. These are straightforward factors to weigh alongside the property’s convenient location, parking and flexible three-bathroom layout.
4 bedroom end of terrace house for sale in Cotton Close, Whaley Bridge, High Peak, SK23 — £315,000 • 4 bed • 2 bath • 1158 ft²
4 bedroom terraced house for sale in Cotton Close, Whaley Bridge, High Peak, SK23 — £289,995 • 4 bed • 2 bath • 935 ft²
2 bedroom mews property for sale in Wharf Road, Whaley Bridge, High Peak, Derbyshire, SK23 — £285,000 • 2 bed • 2 bath • 894 ft²
4 bedroom detached house for sale in Cotton Close, Whaley Bridge, High Peak, SK23 — £575,000 • 4 bed • 3 bath • 2800 ft²
3 bedroom semi-detached house for sale in Taxal Mews, Macclesfield Road, Whaley Bridge, High Peak, SK23 — £247,000 • 3 bed • 2 bath • 761 ft²
4 bedroom mews property for sale in Cotton Close, Whaley Bridge, High Peak, SK23 — £310,000 • 4 bed • 1 bath










































































