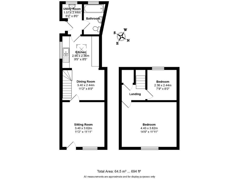
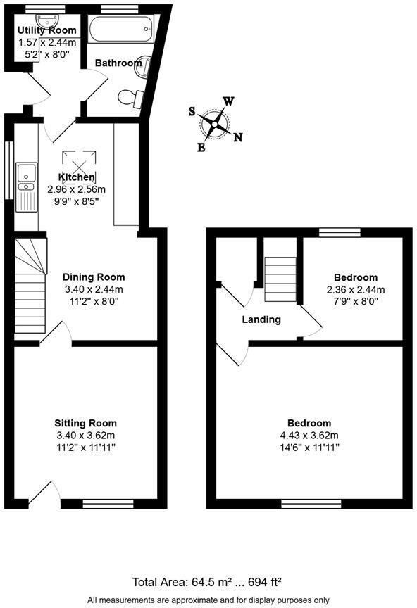
**Standout Features:**
- Classic Victorian terraced house
- Two bedrooms with a cozy living room
- Spacious kitchen/diner with potential for modernization
- Small garden with rear access, perfect for outdoor relaxation
- Ideal for first-time buyers or investors
- Low crime area and proximity to amenities
**Concerns:**
- Boiler likely needs replacement
- Presence of damp at the front of the property
- Renovation needed for modernization
Experience the charm of Victorian living in this delightful two-bedroom terraced house located on Ipswich Road, near the bustling high street of Needham Market. With a cozy living room featuring a fireplace, a spacious kitchen/diner perfect for gatherings, and a serene rear garden, this property provides a warm ambiance and an inviting outdoor space for relaxation or gardening.
While it offers character and comfort, the home does require some updates, including a likely needed boiler replacement and addressing damp issues at the front. This presents an excellent opportunity for buyers to personalize their new home or for investors looking to add value through renovations.
With convenient access to amenities and a low-crime environment, this property appeals to first-time buyers seeking affordability and charm in a community-oriented town. Don't miss out on this unique opportunity—schedule a viewing today and envision the potential that awaits!
2 bedroom terraced house for sale in Stowmarket Road, Needham Market, IP6 — £165,000 • 2 bed • 1 bath • 624 ft²
4 bedroom house for sale in High Street, Needham Market, Ipswich, IP6 — £490,000 • 4 bed • 1 bath • 2225 ft²
2 bedroom semi-detached house for sale in Park Road, IP6 — £230,000 • 2 bed • 1 bath • 547 ft²
2 bedroom terraced house for sale in Brooks Hall Road, Ipswich, IP1 — £210,000 • 2 bed • 1 bath • 829 ft²
2 bedroom terraced house for sale in Sirdar Road, Ipswich, IP1 — £160,000 • 2 bed • 1 bath • 697 ft²
2 bedroom terraced house for sale in Hutland Road, Ipswich, IP4 — £205,000 • 2 bed • 1 bath • 879 ft²














































