**Standout Features:**
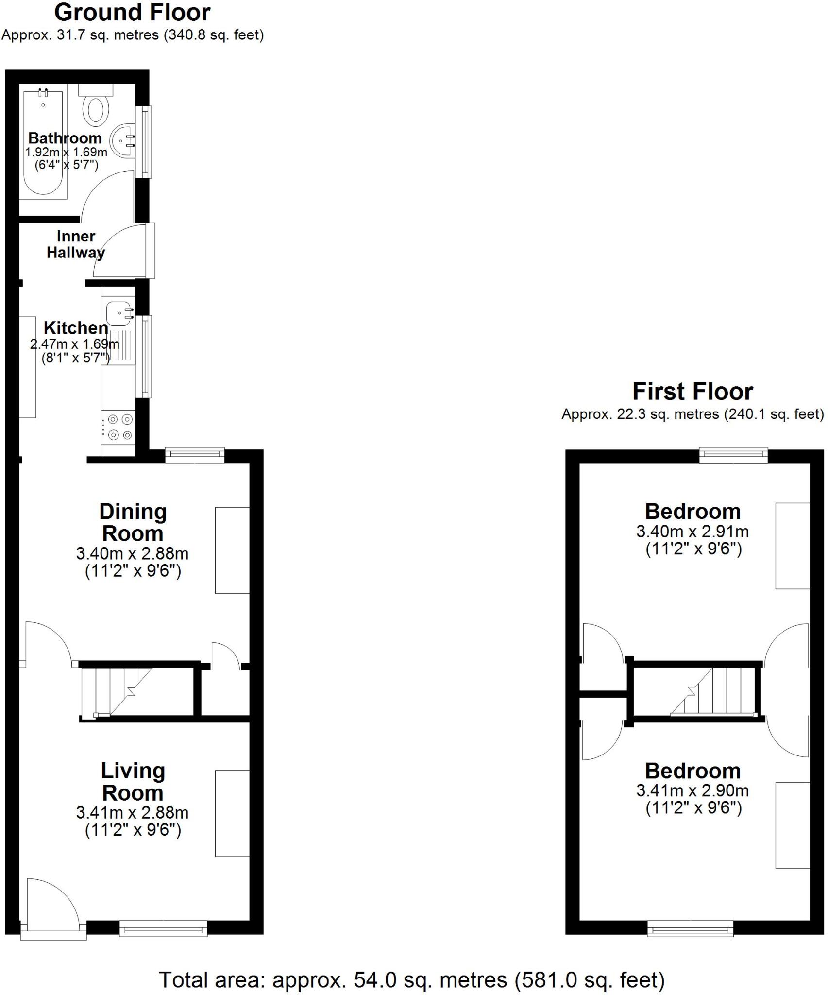
- Charming two-bedroom Victorian terraced house.
- Modern downstairs bathroom and galley-style kitchen.
- South-facing secluded garden with rear access.
- Chain-free sale for a quick and smooth transaction.
- Excellent transport links to A2/M25 and proximity to Swanscombe and Ebbsfleet International Railway Stations.
- Close to Bluewater Shopping Centre and numerous good schools.
- Affordable council tax rate.
**Summary:**
Embrace the charm of this delightful two-bedroom terraced house in the heart of Swanscombe. With its classic Victorian brick facade and characterful interiors, this property offers a cozy living room and dining area, alongside a modern galley kitchen and a clean tiled bathroom. Upstairs, find two inviting double bedrooms, perfect for your family or guests. The rear south-facing garden provides a tranquil retreat, ideal for entertaining or relaxing in privacy.
Enjoy the benefits of a chain-free sale and a well-connected location, with easy access to the A2/M25, nearby rail stations, and the vibrant Bluewater Shopping Centre. This property is surrounded by fantastic schools, making it a prime choice for families or those seeking to start a home in a nurturing environment. While the property may need minor updating, its potential is limitless. Don’t miss out on this opportunity to own a slice of Victorian charm—schedule your viewing today!
2 bedroom terraced house for sale in Stanhope Road, Swanscombe, Kent, DA10 — £252,000 • 2 bed • 1 bath • 844 ft²
2 bedroom terraced house for sale in Swanscombe Street, Swanscombe, Kent, DA10 — £270,000 • 2 bed • 1 bath • 721 ft²
2 bedroom terraced house for sale in Stanhope Road, Swanscombe, DA10 — £260,000 • 2 bed • 1 bath • 678 ft²
2 bedroom terraced house for sale in Stanhope Road, Swanscombe, Kent, DA10 — £260,000 • 2 bed • 1 bath • 613 ft²
3 bedroom terraced house for sale in Castle Street, Swanscombe, Kent, DA10 — £315,000 • 3 bed • 1 bath • 710 ft²
2 bedroom terraced house for sale in High Street, Swanscombe, Kent, DA10 — £290,000 • 2 bed • 1 bath • 657 ft²


















































