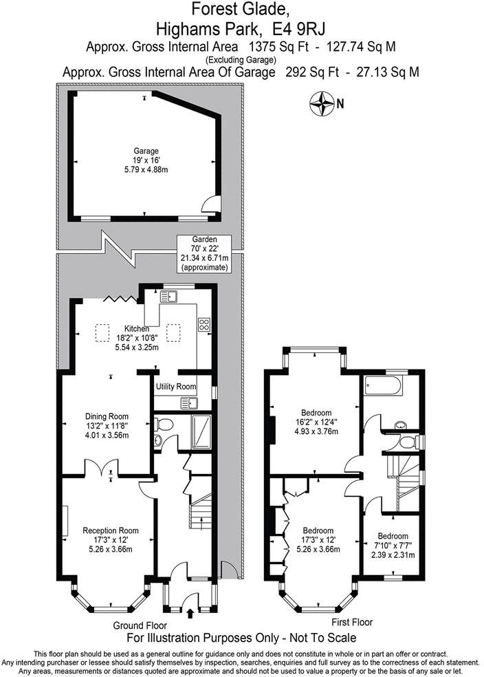
**Standout Features:**
- **Spacious Interior**: Approx. 1,375 sq ft with three bedrooms and interconnecting reception rooms.
- **Modern Amenities**: Extended kitchen with dining area, utility room, ground floor shower, and double glazing.
- **Outdoor Space**: Approximately 70ft rear garden with paved and decked areas, plus a garage.
- **Renovation Potential**: Opportunity for a loft conversion (subject to planning consent).
- **Desirable Location**: Set in the tranquil Highams Park area near amenities and quality schools.
Experience the charm of this well-presented Edwardian semi-detached house in the sought-after neighborhood of Highams Park. Offering an impressive 1,375 square feet, this spacious home features three bedrooms, a modern extended kitchen with dining area, and interconnecting reception rooms perfect for family gatherings. The ground floor boasts additional convenience with a shower room, while the first floor includes a family bathroom and generous bedrooms, including a primary with fitted wardrobes.
Step outside to enjoy a serene 70ft rear garden, ideal for outdoor activities, complemented by a garage for added convenience. The property benefits from double glazing and gas central heating, ensuring comfort year-round. Its prime location near Highams Park offers picturesque views, vibrant shopping, and excellent schools, making it perfect for families. With the added potential for a loft conversion and a peaceful environment, this home is a rare find that won’t last long on the market. Act quickly to secure your future in this desirable setting!
4 bedroom semi-detached house for sale in Nightingale Avenue, Highams Park , London. E4 9RG, E4 — £850,000 • 4 bed • 3 bath • 1185 ft²
5 bedroom semi-detached house for sale in Sheredan Road, Highams Park, London. E4 9RW, E4 — £985,000 • 5 bed • 2 bath • 1396 ft²
3 bedroom semi-detached house for sale in Keynsham Avenue, Woodford Green, IG8 — £800,000 • 3 bed • 1 bath • 1401 ft²
3 bedroom end of terrace house for sale in Winchester Road, Highams Park, E4 — £650,000 • 3 bed • 1 bath • 870 ft²
4 bedroom semi-detached house for sale in Forest Glade, Highams Park, London, E4 — £1,100,000 • 4 bed • 2 bath • 1444 ft²
3 bedroom terraced house for sale in Selwyn Avenue, Highams Park, E4 — £600,000 • 3 bed • 1 bath • 1008 ft²














































































































