**Standout Features:**
- Converted 1923 Dutch barge on the River Thames
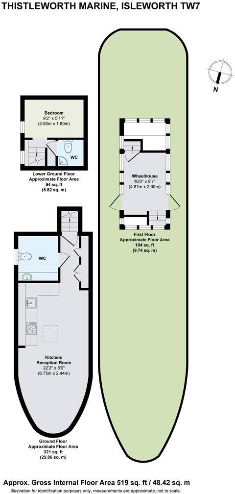
- Spacious size: 65 ft x 12 ft with a total area of 519 sq ft
- One bedroom with en suite shower room
- Open-plan kitchen/reception/diner and additional flexible use cabin
- Stunning collapsible teak wheelhouse with views of the River Thames
- Residential mooring in a resident-owned marina
- Low mooring and maintenance fees of approximately £250/month
- Located in a low-crime area with good schools nearby
- Council tax band A, very affordable
**Summary:**
Experience an extraordinary lifestyle on the water with this rare opportunity to own a converted 1923 Dutch barge in Thistleworth Marine, Isleworth. At 65 feet long, this residence offers a cozy, yet spacious living environment complete with a charming open-plan kitchen and lounge area that boasts scenic river views. The one-bedroom layout features an en suite shower, making it perfect for singles or couples looking for a unique home. 
This floatable sanctuary not only provides tranquility with its idyllic riverside setting amid lush greenery, but it also includes the exclusive benefit of a low-cost residential mooring. For those seeking a peaceful retreat without sacrificing proximity to London, this property presents an ideal balance of convenience and comfort. With a share in the resident-owned marina, the investment aspect is solid, catering well to those looking to embrace a relaxed waterfront lifestyle. Don’t miss the chance to claim this captivating home; unique offerings like this won’t last long!
 2 bedroom house boat for sale in Lots Ait, Brentford, TW8 — £130,000 • 2 bed • 2 bath • 1115 ft²
 2 bedroom house boat for sale in Lots Ait, Brentford, TW8 — £130,000 • 2 bed • 2 bath • 1115 ft² 3 bedroom house boat for sale in Lots Ait, Brentford, TW8 — £200,000 • 3 bed • 3 bath • 1873 ft²
 3 bedroom house boat for sale in Lots Ait, Brentford, TW8 — £200,000 • 3 bed • 3 bath • 1873 ft² 2 bedroom house boat for sale in Penton Hook Marina, Chertsey, KT16 — £85,000 • 2 bed • 3 bath
 2 bedroom house boat for sale in Penton Hook Marina, Chertsey, KT16 — £85,000 • 2 bed • 3 bath 2 bedroom house boat for sale in Lammas Drive, Staines, Surrey, TW18 — £200,000 • 2 bed • 1 bath • 1000 ft²
 2 bedroom house boat for sale in Lammas Drive, Staines, Surrey, TW18 — £200,000 • 2 bed • 1 bath • 1000 ft² Marine property for sale in  Shepperton, Middlesex, TW17 — £150,000 • 1 bed • 1 bath • 864 ft²
 Marine property for sale in  Shepperton, Middlesex, TW17 — £150,000 • 1 bed • 1 bath • 864 ft² 3 bedroom house boat for sale in Towpath, Waterside Drive, Sunbury-On-Thames, Surrey, KT12 — £295,000 • 3 bed • 1 bath • 2095 ft²
 3 bedroom house boat for sale in Towpath, Waterside Drive, Sunbury-On-Thames, Surrey, KT12 — £295,000 • 3 bed • 1 bath • 2095 ft²






































































































