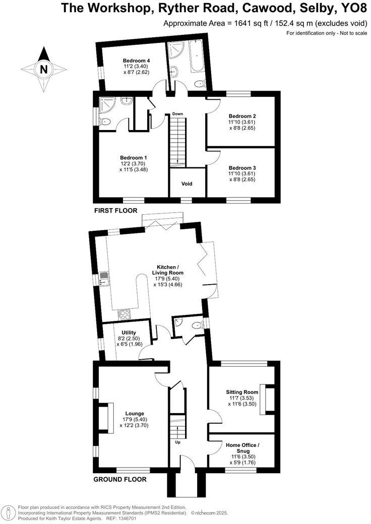
Spacious four-bedroom home on c.4 acres in picturesque Cawood village.
- Individually designed detached house with quality finishes throughout
- Four double bedrooms and two well-appointed bathrooms
- Stunning kitchen with bi-fold windows and integrated appliances
- About 4 acres of mature gardens and grounds, very private
- Space for up to six cars and large detached garage
- Heating: air source heat pump plus oil boiler and radiators
- Parts of the land seasonally hold river water; EA access applies
- Large grounds require ongoing maintenance and landscaping work
Set back behind a gated drive in the historic village of Cawood, this individually designed detached house combines contemporary fittings with traditional character. The home offers four double bedrooms, two bathrooms and three reception rooms arranged over two floors, plus a striking handcrafted green oak porch and a large detached garage. The kitchen is a real feature — a well-equipped, light-filled room with bi-fold windows to two elevations and fully integrated appliances, ideal for open-plan family living and entertaining.
The property occupies approximately four acres of mature gardens and grounds, unusually large for a village setting. The grounds provide privacy, room for outdoor activities and scope for landscaping or small-scale equestrian/amenity uses, while generous parking for up to six vehicles and a gated entrance add convenience and security. Heating is modernised with an air-source heat pump alongside an oil-fired boiler and radiators, and there are two log burners for additional ambiance.
Buyers should note a few practical points: parts of the land can seasonally hold river water and form part of the village flood defence, and the Environment Agency has a right of access to maintain that system. The plot’s size brings ongoing maintenance responsibilities. Council Tax and EPC ratings are listed as TBC for this new build; a 10-year NHBC warranty is in place. Overall, the home will suit families seeking a substantial, high-quality house in a peaceful, well-served village location.
4 bedroom detached house for sale in Rythergate, Cawood, Selby, YO8 — £450,000 • 4 bed • 1 bath • 2372 ft²
7 bedroom detached house for sale in Riverside Court, Cawood, North Yorkshire YO8 — £624,995 • 7 bed • 5 bath • 2207 ft²
4 bedroom detached house for sale in Great Close, Cawood, YO8 — £440,000 • 4 bed • 3 bath • 1572 ft²
4 bedroom detached house for sale in Old Road, Cawood, YO8 — £390,000 • 4 bed • 2 bath • 1600 ft²
4 bedroom detached house for sale in 'Wayside Cottage', Thorpe Lane, Cawood, YO8 — £500,000 • 4 bed • 2 bath • 1111 ft²
6 bedroom town house for sale in 6 Market Place, Cawood, Selby, YO8 — £425,000 • 6 bed • 3 bath • 2559 ft²


























































































































