OX18 4QF - Commercial property for sale in 92 High Street, Burford, OX…

View on Property Piper

Commercial property for sale in 92 High Street, Burford, OX18

Summary - 92 HIGH STREET BURFORD OX18 4QF

2 bed 2 bath Commercial Property

**Standout Features:**
- **Prime Location:** Situated on Burford's iconic High Street, a hub of period properties and individual retail establishments.
- **Mixed Use Potential:** Includes a retail space and residential accommodations, perfect for owner-occupiers or investors.
- **Historic Charm:** Grade II listed Georgian building showcasing classic stone architecture and high ceilings.
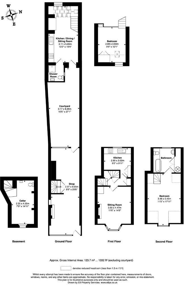
- **Expansive Space:** Total of 1,332 sq ft with a ground floor retail area and two separate living spaces (one-bedroom flat and a courtyard studio).
- **Affordability:** Priced at £475,000 with council tax bands providing a low-cost advantage.

**Concerns:**
- **Listed Status:** May present challenges for renovations or alterations.
- **Single Access Point:** Shared access could limit privacy for residential leasers or occupants.
- **Condition Assessment Required:** Services have not been tested, requiring due diligence for potential maintenance issues.

**Summary:**
Explore this rare mixed-use opportunity in the heart of Burford, a captivating Cotswold town where quaint charm meets modern convenience. This Grade II listed Georgian property offers approximately 1,332 sq ft of well-maintained space featuring a prominent shopfront, a cozy one-bedroom apartment above, and a delightful courtyard studio—perfect for providing rental income or a creative workspace. Although it features some limitations, including shared access and listed status, its potential for renovations and flexibility for diverse uses is considerable, catering to both families and savvy investors alike.

This unique offering is not just a property; it’s a gateway to an enviable lifestyle in a vibrant community known for its rich heritage and tourist appeal. Don’t miss your chance to own a piece of Burford's history—schedule a viewing today and envision the possibilities!

Property Details

Brochure Descriptions

Image Descriptions

Floorplan Description

Rooms

Textual Property Features

Detected Visual Features

EPC Details

Nearby Schools

Nearest Bars And Restaurants

,,,,}

Nearest General Shops

,,}

Nearest Grocery shops

,,}

Nearest Supermarkets

,,}

Nearest Religious buildings

,,}

Nearest Medical buildings

,,,}

Nearest Leisure Facilities

,,,,}

Nearest Tourist attractions

,,}

Nearest Train stations

,,,,}

Nearest Bus stations and stops

,,,,}

Nearest Hotels

,,}

Tags

Local Market Stats

AirBnB Data

Similar Properties

Meta

High Res Images

Compatible Images

Low res Images

Thumbnails

Raw Images

High Res Floorplan Images

Compatible Floorplan Images

Low res Floorplan Images

FloorplanImages Thumbnail

Raw Floorplan Images