**Standout Features:**
- Modern third-floor studio apartment
- Open-plan living space
- Affordable housing scheme with 100% ownership at 70% market value
- Prime city center location near amenities and transport
- Off-street parking and residents' parking scheme
- Low council tax and average service charge
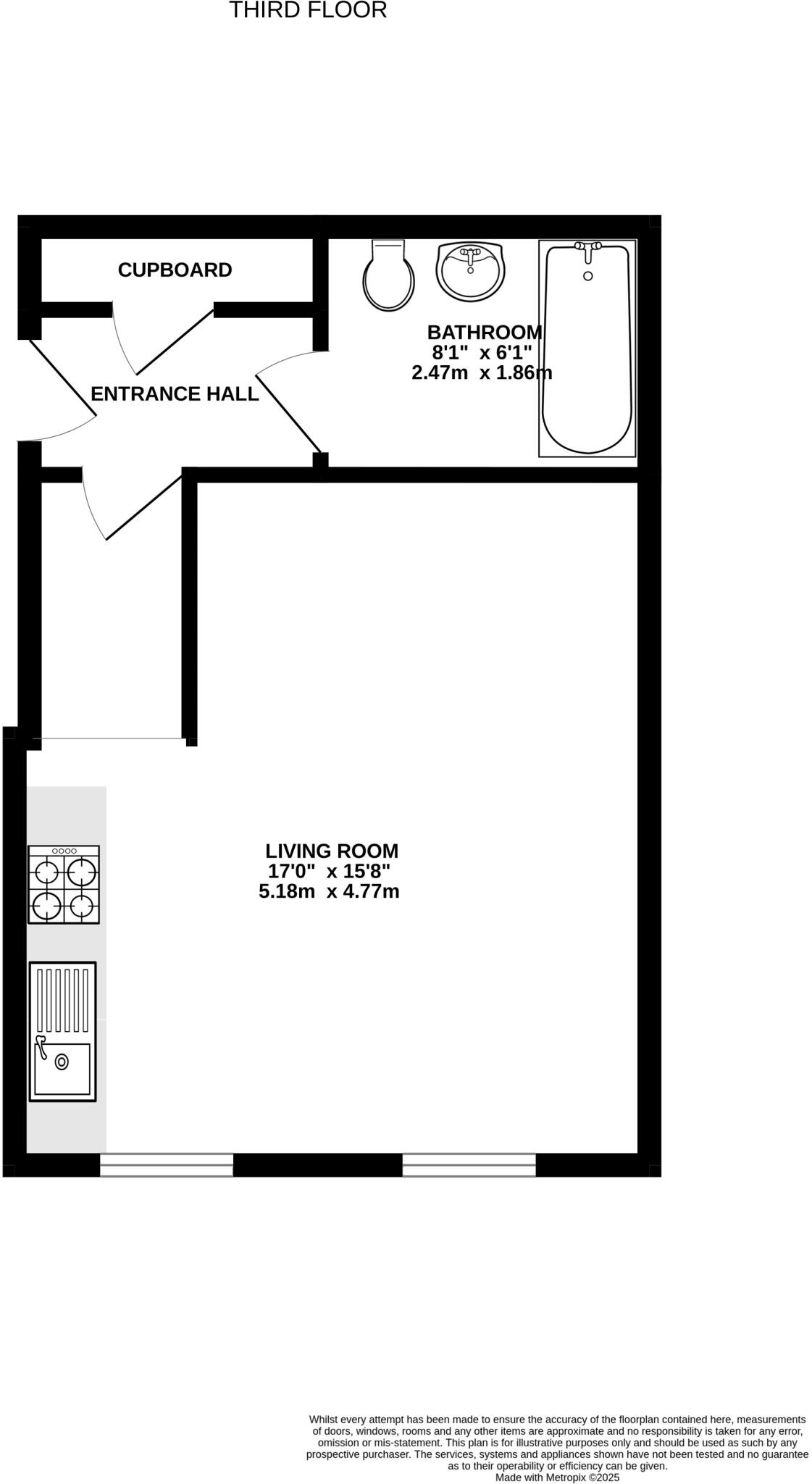
**Overview:**
This modern third-floor studio apartment offers a unique opportunity for first-time buyers or those eligible for the Affordable Housing Scheme. This stylish space features an inviting open-plan layout that seamlessly merges the living, bedroom, and kitchen areas, creating a cozy yet functional home. With a spacious bathroom and practical amenities including double glazing and gas central heating, this property is ready to move into.
Situated in a bustling city center, you’ll be within walking distance of Chester's vibrant attractions, the Shropshire Union Canal, Waitrose supermarket, and the railway station. The low purchase price of £70,000 allows you to own 100% of this property under a scheme designed to help individuals with a local connection who may struggle to enter the housing market.
While it is important to note that the property is not available for investors aiming to rent it out, there’s a significant chance to embrace city living at an exceptional value. With a manageable service charge of £1,619 per year and very cheap council tax contributing to overall affordability, this property is perfect for those seeking comfort, convenience, and community in a cosmopolitan neighbourhood. Capture this rare opportunity to secure your slice of Chester—available properties like this don't last long!
2 bedroom flat for sale in Black Diamond Park, Chester, CH1 — £128,600 • 2 bed • 2 bath • 585 ft²
1 bedroom apartment for sale in Queens Road, Chester, CH1 — £105,300 • 1 bed • 1 bath • 433 ft²
2 bedroom apartment for sale in Black Diamond Park, Chester, CH1 — £129,000 • 2 bed • 1 bath • 488 ft²
Studio flat for sale in Homedee House, Garden Lane, Chester, Cheshire, CH1 — £34,950 • 1 bed • 1 bath
1 bedroom apartment for sale in The Square, Seller Street, Chester, CH1 — £125,000 • 1 bed • 1 bath • 692 ft²
1 bedroom flat for sale in Lower Bridge Street, Chester, CH1 — £150,000 • 1 bed • 1 bath






























