**Standout Features:**
- Three well-proportioned bedrooms and two elegant bathrooms
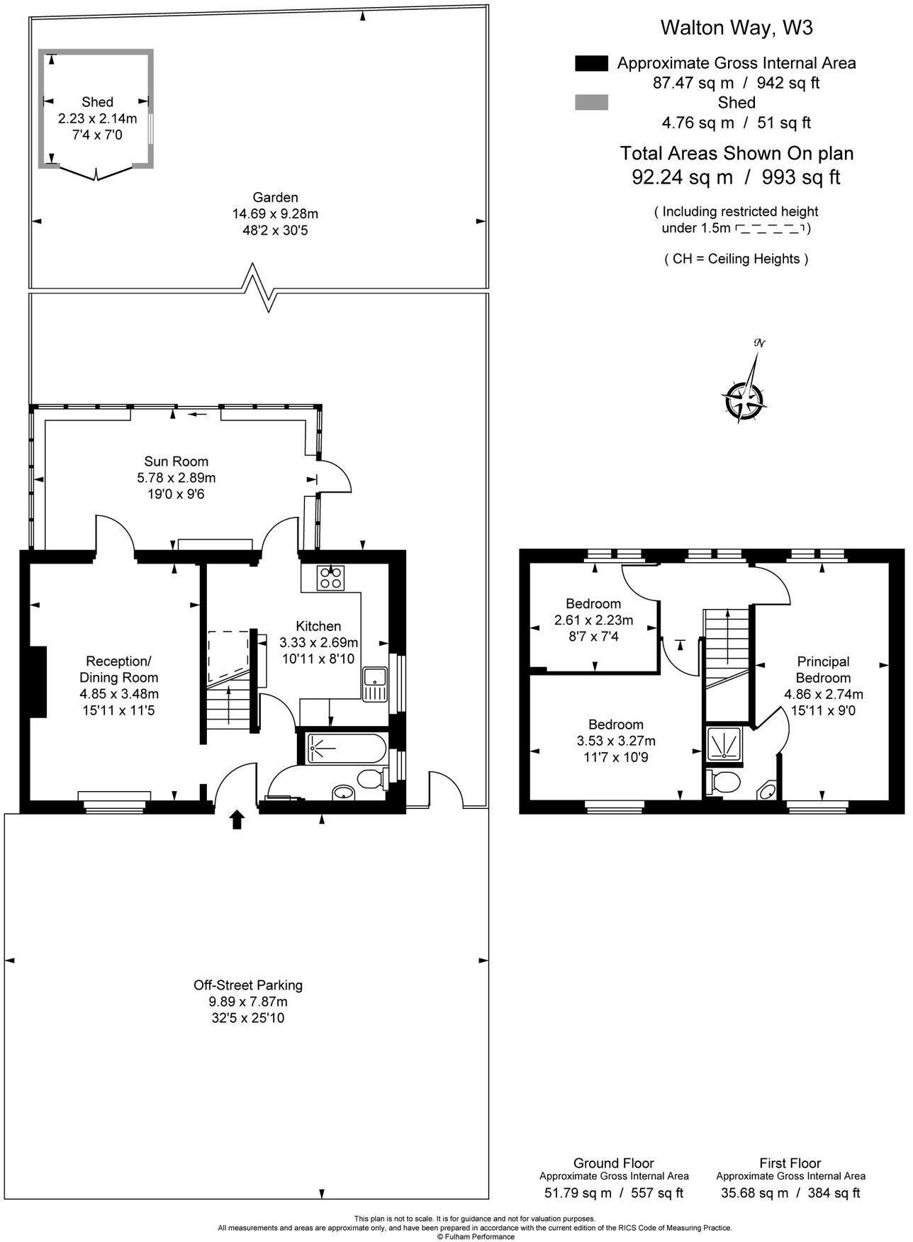
- Off-street parking for multiple vehicles
- Beautifully maintained, large hedged garden
- Strong extension potential (STPP)
- Excellent transport links (West Acton & Acton Main Line stations nearby)
- Fantastic nearby schools (including highly-rated primary and secondary options)
- Freehold tenure, chain-free sale
Nestled in the serene Walton Way of Acton, this three-bedroom semi-detached home offers an ideal blend of comfort and potential, perfect for families, first-time buyers, or investors looking for a valuable addition. The property features a beautifully maintained hedged garden, creating a tranquil outdoor retreat, complemented by a spacious driveway accommodating multiple vehicles. Inside, the home boasts a practical layout with a modern kitchen and a contemporary living space that floods with natural light.
Possessing solid construction with a hardwood subfloor for reduced noise, this residence promises both durability and a peaceful atmosphere. The insulated loft offers additional storage or an exciting opportunity for future conversion, subject to planning permission. Outstanding transport links make commuting effortless, placing you within easy reach of West Acton and Acton Main Line stations, while ample local amenities are just a short walk away.
With a complete chain, this beloved family home is ready for its next chapter. Don’t miss out on the chance to make this property your own and explore its remarkable expansion possibilities to tailor the space to your lifestyle. In a desirable location renowned for its community and convenience, this home is a rare find—act quickly to secure this excellent opportunity!
3 bedroom semi-detached house for sale in Walton Way, West Acton, London, W3 — £770,000 • 3 bed • 2 bath • 1099 ft²
3 bedroom semi-detached house for sale in Saxon Drive, West Acton, London, W3 — £799,995 • 3 bed • 2 bath • 1292 ft²
3 bedroom semi-detached house for sale in Moat Place, West Acton, W3 — £725,000 • 3 bed • 1 bath • 708 ft²
3 bedroom terraced house for sale in Allan Way, Acton, W3 — £700,000 • 3 bed • 1 bath • 1102 ft²
3 bedroom semi-detached house for sale in Glendun Road, Acton, W3 — £875,000 • 3 bed • 1 bath • 1400 ft²
3 bedroom semi-detached house for sale in Kathleen Avenue, London, W3 — £799,950 • 3 bed • 1 bath • 1092 ft²










































































