Chain free and freehold with no flood risk
Close to M4 junction, public transport, schools, and shops
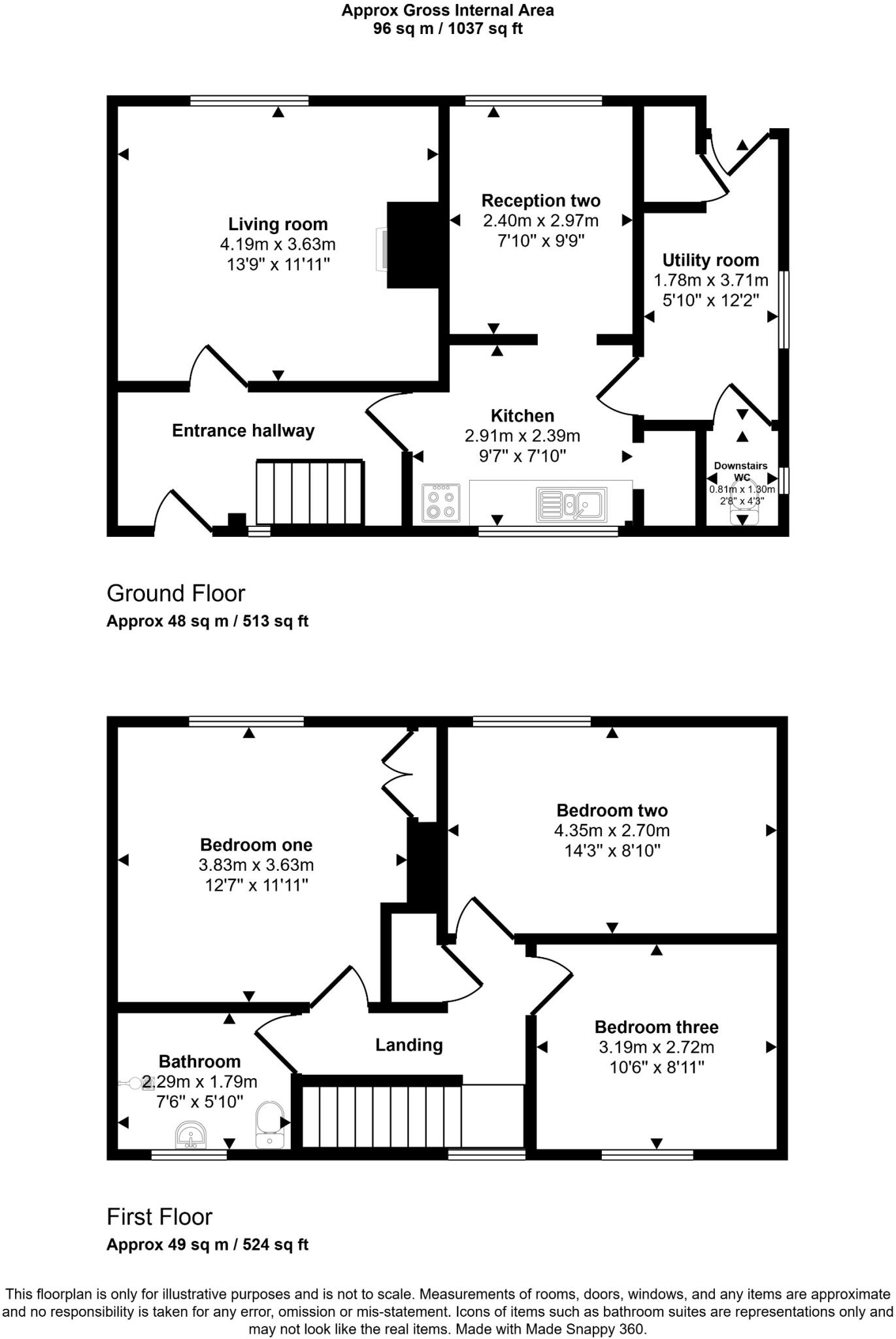
Approximately 1,037 sq ft, traditional 1950s‑60s layout
Single bathroom currently accessible but in need of modernisation
Small plot with overgrown rear garden and cracked paving
On-street parking; potential to add driveway with planning permission
Above-average local crime and very deprived wider area
Fast broadband and excellent mobile signal
This three-bedroom end-of-terrace offers an accessible, chain-free entry to homeownership in Llanishen. Set close to the M4 corridor and within walking distance of public transport, local shops and schools, the house suits first-time buyers or young families seeking convenience and connections.
Inside, the traditional layout provides a living room, second reception room, kitchen with pantry, utility area and a ground-floor WC. Upstairs are three bedrooms and a single bathroom currently adapted for accessibility; the bathroom and some finishes would benefit from modernisation. The property is gas‑heated with a combi boiler and uPVC double glazing.
Outside space is modest: a small front garden with paved finish and an enclosed, overgrown rear garden with cracked paving that needs landscaping. On-street parking is standard; with relevant planning permission the front could be converted into a driveway for two cars, as neighbouring properties have done.
Be aware of local context: the area records above-average crime rates and higher levels of deprivation, which may concern some buyers. Positives include no flood risk, freehold tenure, good digital connectivity (fast broadband and excellent mobile signal), and a footprint of about 1,037 sq ft offering scope to improve value with sympathetic refurbishment.











































































